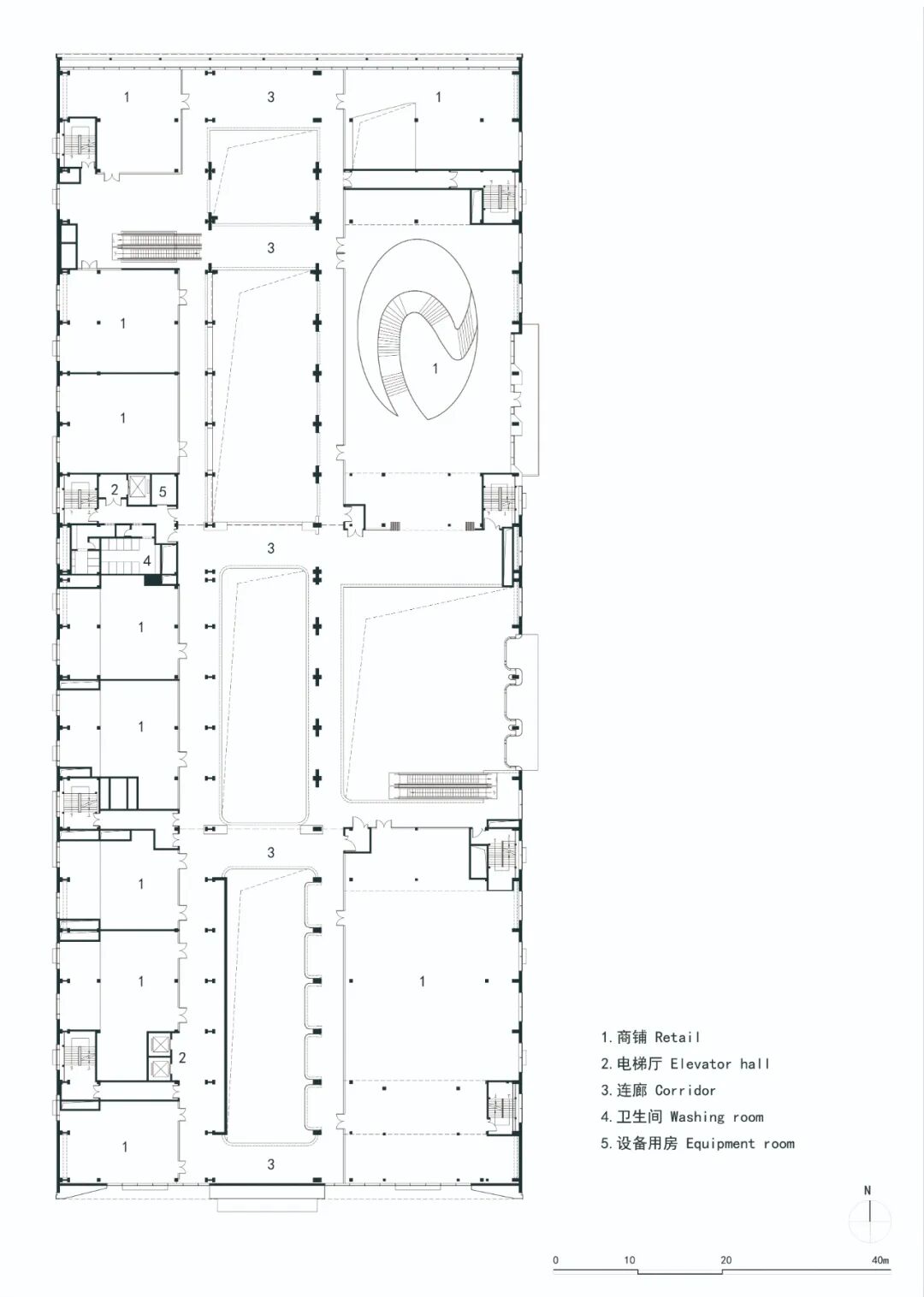
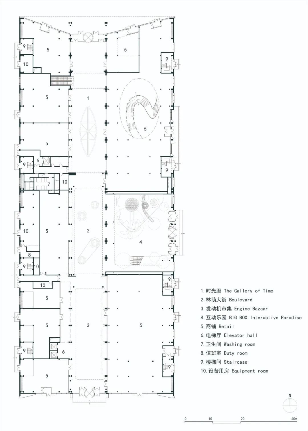
作品集2023-07-20 老厂房改造 | 长春拖拉机厂1958铸光仓 南立面夜景 @ 金伟琦 01.背景 长春拖拉机厂 1961 年建成,2006 年宣布破产并关闭。整个园区(厂房区域)包括 6 栋大型厂房,建筑用地约 14 万平方米。2020 年万科对原拖拉机厂进行重新规划,#3厂房“铸造车间”是第一个改造的厂房。它既是一个文保建筑,同时也希望能成为一个活跃的文化商业综合体,激活社区,加速整个园区改造的步伐。这就要求设计师冲破狭义的建筑视角,以人的活动为出发点,整合空间,景观,艺术,商业策划等资源,创造出一个真实的,具有持续活力的“城市客厅”。 西北角鸟瞰 @ 金伟琦 改造前鸟瞰 @ VANKE #3改造前现状 @ E+UV 02.改造策略 1.叠加 控制文物保护与活化使用之间的微妙平衡,通过新旧物件的叠加,形成一种混搭,对比的张力。建筑设计的留白,给后续的使用者提供参与再创造的可能性,使建筑成为不断丰富的沉积物,不断进化的生命体。 厂房现状结构分析 @ E+UV “叠加”概念草图 @ E+UV 南立面 @ YUAN STUDIO 北立面 @ 金伟琦 2.“切片”| Slice 建筑是凝固的时空。我们希望设计可以跨越英雄式的思维,和自上而下的纯粹审美。尽量保留历史使用的痕迹,叠加当下的活动印记,使当下改造的结果作为一份历史切片,反映当下的社会状态及人的需求。 “切片”示意图@E+UV 南广场俯瞰 @ YUAN STUDIO 03.建筑立面 北立面作为面向城市的亮相,在原有建筑轮廓基础上,2602 片体现机器美学的紫铜叶片,从下至上旋转 43 度,寓意长拖 43 年的历史。南面朝向公园,大面积玻璃幕墙,结合银灰色钛锌板,呈现工业感与文艺气质相结合的界面。东西立面对原有砖墙进行了修复处理,木构方格窗更换成大面铝合金窗。插入的新模块--包括入口,阳台以及项目标志--都以灰色钛锌板为统一材料,展示新旧叠加对比。 东立面 © 金伟琦 东立面 © 金伟琦 东立面 © 金伟琦 04.空间规划 整个平面由一条 145 米的中轴串联。为了完整地展示原有厂房的桁架结构,我们执意保留了简洁的直线动线。通过营造不同的空间特色和光线变化,打破直线的单调感,形成空间的节奏。从北向南缓缓展开的是一幅时光长卷。 长轴剖面透视 @ E+UV 第一幕-时光廊:历史重现 从主入口进入,第一段“时光廊”展现的是原铸造车间的历史氛围,保留厂房老旧红砖墙,混凝土梁柱,桁架天窗,重现了当年的生产车间。地面暗埋了两副 21 米长的原装混凝土桁架,如历史化石般对人们诉说这里曾经的故事。 时光廊效果 @ 金伟琦 二层人视 @ YUAN STUDIO © YUAN STUDIO © YUAN STUDIO © YUAN STUDIO 艺术品“火之洗礼·光之物语” @ UAP 地面预埋绗架 @ E+UV 第二幕-林荫大街:绿色生活 在项目的中央,我们把厂区里承载集体记忆的中央大街,引入到室内空间里。四棵9米高的榉木,是空间的主角。在这个空间,混凝土绗架序列继续向前,但天窗变成透明玻璃。我们把原来的砖墙刷成清新的白色,配合银白色的栏板和玻璃栏杆,展现出和第一空间完全不一样的清新效果。 林荫大街效果 @ 金伟琦 二层透视 @ 金伟琦 @ 金伟琦 @ YUAN STUDIO @ YUAN STUDIO @ YUAN STUDIO 第三幕-发动机市集:未来·朋克 在发动机市集,银色流线形的镀锌钢板模拟发动机的外壳,弧形玻璃包厢极具未来感。这个空间同时也被设计成一个弹性使用空间,可以作为周末市集,快闪活动。二层两侧的包厢将会是绝佳的观演角度。 以银色为基调的市集大厅 @ 金伟琦 @ YUAN STUDIO 第四幕-BIGBOX:互动乐园 中央大厅“BIGBOX”拥有 28 米大跨,14 米净高。我们希望保留这种震撼的空间感,尽量彰显原来的大跨混凝土绗架结构。空间留白成为一个公共广场,而和原来坚硬,粗犷的建筑做了一个强烈的对比,我们在中间插入了一个软性的,具有幽默感的大型互动游乐装置“魔法熔炉“,让孩子们在游乐过程中对厂房的历史记忆形成独特的沉浸式体验。 魔法熔炉 @ 金伟琦 @ 金伟琦 @ 金伟琦 05.一次非典型的改造尝试 用商业设计的手法改造厂房空间,是我们的一个新的尝试。在这里,狭义的建筑美学让位与对人的活动的关注,和对场景营造的重视,以及对未来新陈代谢的弹性预期。铸光仓是整个长拖 1958 改造的第一次亮相,让历史照进现实,展现充满激情的未来场景。 43东南角鸟瞰@金伟琦 项目图纸 总平面图 一层平面图 二层平面图 北立面图 南立面图 东立面图 剖面图 剖面图 剖面图 项目名称:拖拉机厂新生——长拖1958•铸光仓 建筑设计:易加·UV 项目:2021年12月 建筑面积:13,000㎡ 项目地址:长春市 二道区 东新路 万科蓝山F区东北侧 主创建筑师:周奕奕 委托方:长春万科 摄影版权:金伟琦,YUAN STUDIO 本文来自微信公众号“景观设计小学徒”(ID:laxxt2013)。大作社经授权转载,该文观点仅代表作者本人,大作社平台仅提供信息存储空间服务。 TAGS: 厂房建筑改造空间 相关文章Kleoniki Andr…这是大王Day.281获奖作品《2020最佳图书…精选头像|搞怪来袭!安东尼奥·布埃诺 作品配色清新梦幻的场景插画,充…美国Jennifer Mc…【小鹏设计】设计小改/动力…【首发】地点空间丨打破空间…谢商家不坑之恩!只骗有钱人…