你一定听过这扩初、施工、和深化这几个概念,但是,他们到底是什么意思呢?
本期我们将分别从这3个图纸体系,来深入解读他们的用法及使用区别。
扩初图
一、扩初图是什么?
1、扩初图就是在方案的基础上,扩大初步设计的图纸,这个阶段的内容、体系不要求100%完整。
2、整体流程:方案手绘稿 → 手稿转化cad图纸/模型/效果图。如下图:
▲方案手绘稿
▲转化为cad平面图
3、以上设计阶段,统称为“扩初图设计”。
二、扩初图需要设计师提供哪些内容?
当出图程度到达扩初图之后,设计师需要提供这3方面的内容:
1、方案部分:
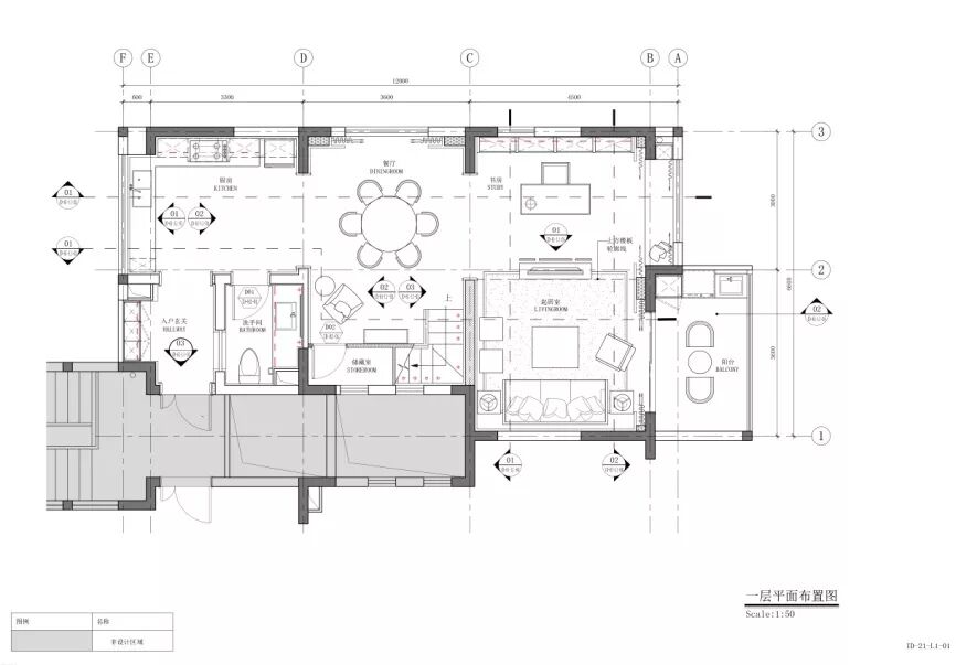
a.平面布置图
▲平面布置图
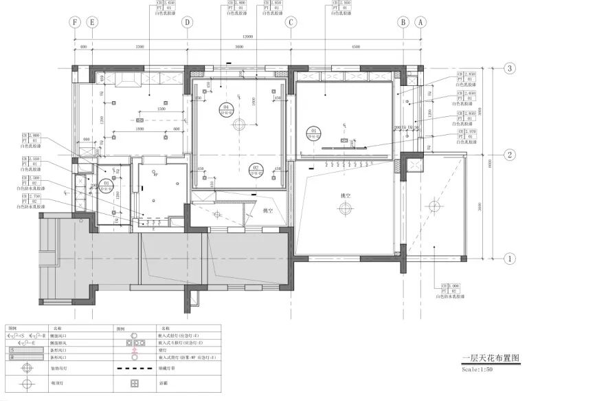
b.天花布置图
▲天花布置图
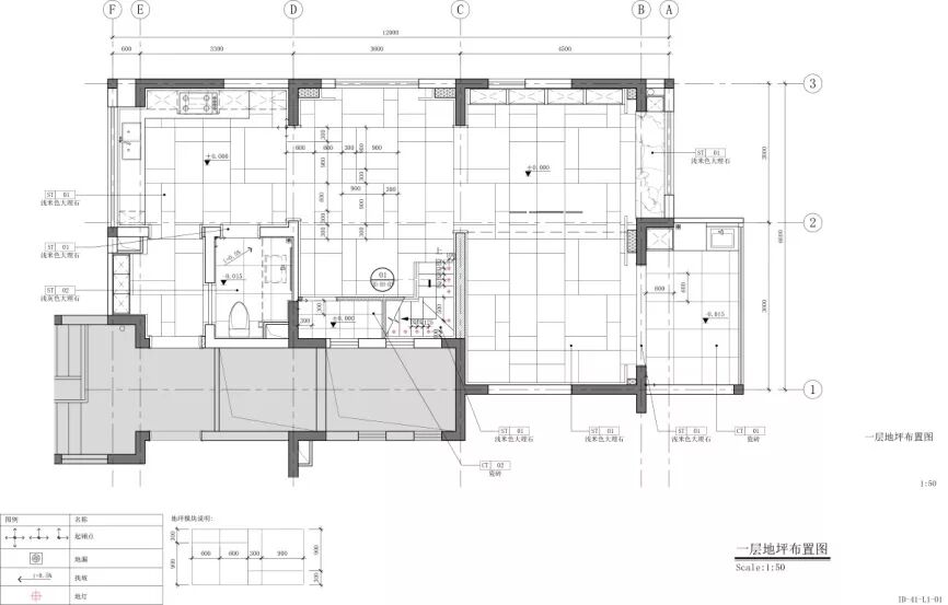
c.地坪布置图
▲地坪布置图
2、辅助表现部分:
a.设计方案模型(通常以SU、3D模型为主)
b.效果图
▲效果表现
3、资料部分:
a.材料表
▲材料表
b.建筑资料
▲扩初设计需提供的内容
三、扩初图的用途是什么?
上面我们了解了扩初图的主要内容,那么它主要是用来干什么的呢?
1、对方案的可实施性与设计要点进行补充论证。如:空间标高、过道距离、人体工学等等。
▲空间标高
2、对方案的落地做更细致的准备。
四、扩初图的深度标准是什么?
对于扩初图来说,它需要完成方案图纸、表现、建筑资料、材料等等,那它绘制的深度标准是什么?我们可以从以下三个方面来表达:
1、图纸体系确认:
检查图纸内容是否全面,是否满足扩初表达的要求。
2、法律规范基本满足:
在满足法律规范和安全的前提下进行设计。
3、标高初步复核:
符合标高等数值是否正确,以便之后的深入设计。
当完成以上3个方面后,如果对方仍要求增加深度。那就要求出图时间和对应报价需要相应的调整,此阶段我们只做到扩初的程度。
▲扩初图的定位
施工图
一、施工图是什么?
1、施工图是在方案设计和扩初图的基础上绘制的一套图纸。
2、内容和体系相对完整,符合相关法律规范。
二、怎样才能开始画施工图?
在绘制施工图之前,我们需要有一些准备,主要可以分为以下两个方面:
1、图纸方面:扩初图 ;
2、资料方面:
a.物料清单;
▲物料清单
b.其他专业资料。如:机电、灯光、声学等资料。
三、施工图的用途是什么?
1、满足招投标要求:
施工图是业主招投标施工单位的重要依据,因此需要我们提供一份完整的施工图。
2、满足相关部门的审批要求:
我们的施工图只有满足了国家相关部分的审批要求,才能够进行施工,需要满足相应的审批要求。如:消防规范等。
▲建筑防火规范
3、能够指导施工:
我们画的图纸需要工人能够看懂,只有我们对施工图的表达的全面了,后面施工才能顺利进行。
四、施工图的深度标准是什么?
对于施工图来说,是简单示意性的表达完成面关系,还是精细的表达工艺做法呢?其实这里我们可以从以下三方面来进行深度的表达:
1、标准工艺做法确定
如:天、地、墙的做法。
▲天花的做法
▲地坪的做法
2、墙体、完成面定位准确
如:什么类型墙体?面层用什么材料?
▲墙体类型标注
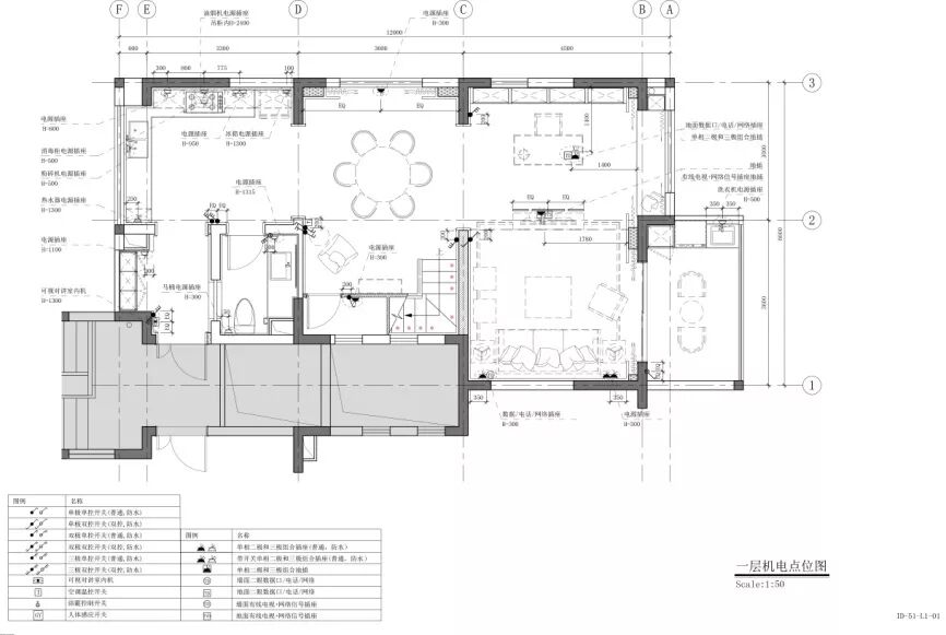
3、和装饰有关的机电点位整合到位
▲机电点位图
深化图
一、深化图是什么?
1、深化设计是结合了建筑结构机电等专业设计资料,所进行的更深层次的施工图设计工作。
2、深化设计的用途:
在施工图阶段,有些内容还不完善,为了项目落地,还需要更深层次的设计工作,所以它的用途是一种对所有层面的合理性和落地性进行更深层次的论证。
二、深化设计都需要做哪些工作?
对于深化设计来说,具体需要做哪些工作呢?我们可以从以下四个方面来看:
1、资料整合
2、设计协调
▲和各专业的协调
和各专业的顾问进行设计协调,根据专业建议进行调整,整合出一套深化设计图纸。
3、图纸制作:
深化设计的图纸,是在施工图的基础上,针对没有表达到位的地方,进行完善深入的表达。
4、做深化设计的前提:
a.具备一定的规模和复杂程度:
项目体量大、工艺施工复杂,才能进一步开展深化设计,如施工图阶段能解决,就不需要引出深化设计。
b.多个单位、顾问团队协同工作:
当项目规模足够大,会细分出很多专业,会有各个方面的顾问来配合参与。
c.相关设计资料的完成度和精准度达到一定程度
三、深化图和施工图有什么区别?
深化图和施工图在对图纸表达的深度上是不同的,那它们之间到底有什么区别呢?
接下来我们以一张具体的图纸,从三个方面来分析他们的不同点:
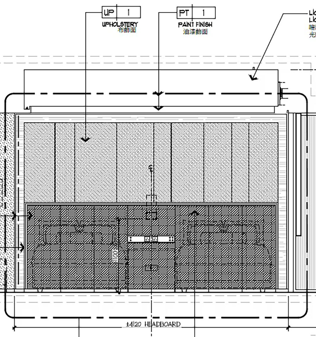
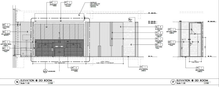
▲施工图
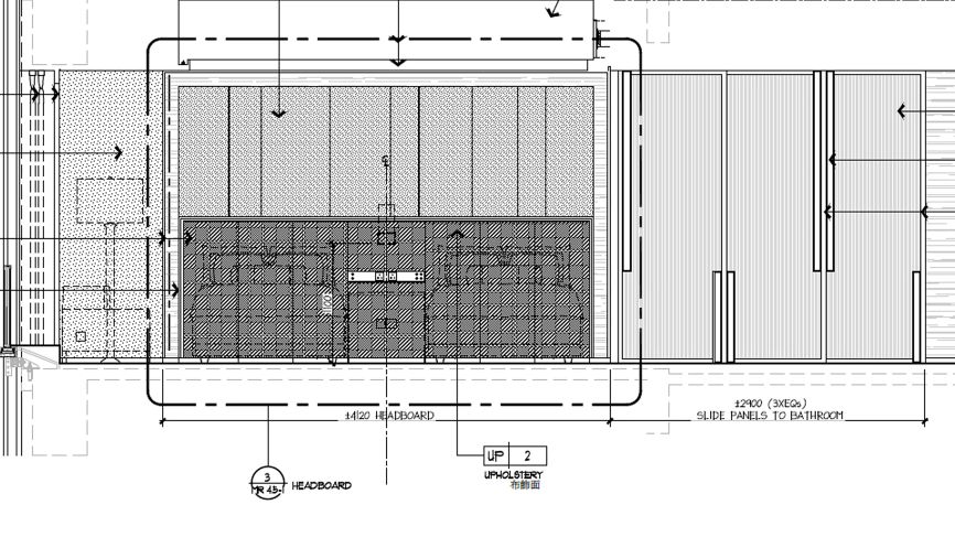
▲深化图
1、对衣柜的总长及三扇门的标注:
▲a.施工图是±2900
▲b.而深化图是±2755,在标注上结合了平面尺寸的变化进行调整。
2、床头板的尺寸:
▲a.在施工图中,没有对床头板的尺寸进行表达,只有索引。
▲b.而在深化图中,立面对床头板尺寸表达细致。
3、开关:
▲a.施工图立面,没有索引说明。
▲开关的详细描述
▲开关的详细描述
b.深化图中有对开关的详细描述。▲圈三
好了,今天就给大家分析到这,今天我们了解了扩初是一种初步设计,施工图是相对完整的表达,深化图是和各专业配合单位的深入设计。还想学习更多关于施工图纸的问题,都可以在我们的《施工图内训营初阶班》的升级版本里得到解决噢~
其实在我们深化施工图纸的过程中,或多或少的会遇到些问题,如:装饰图纸出完,水电、暖通、照明等出问题怎么办?分不清图纸好坏,在错误道路上越走越远?只知道标准节点,却搞不懂底层逻辑?等等,这一系列的问题,小伙伴们也别发愁,在我们内训营里都可以得到解决~
从内训营4.0开始,我们的整个线上课程的服务模式,将由原本的「营期制」全面升级为「终身学习制」
也就是说,这一次,除了课程体系升级外,我们还要搭建dop的深化设计成长社群。在这里,内训营课程结束后,才是终身学习的开始。
本文来自微信公众号“dop设计”(ID:dopdesign)。大作社经授权转载,该文观点仅代表作者本人,大作社平台仅提供信息存储空间服务。










