同一空间的千面多变
设计手法是引子,心境来造境。
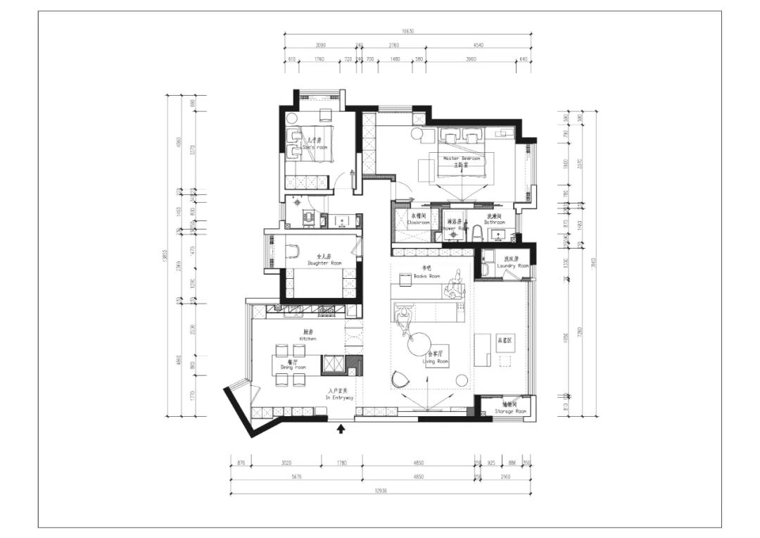
这个150㎡的平层住宅住着一家四口,有两个上学的孩子,爸爸上班,妈妈主要负责小孩的生活起居,一家四口其乐融融的生活是空间想营造的主题氛围。
环绕式岛台、让整个空间动线更加合理、餐厅与客厅可封闭可开放,让空间有更多种可能性。
进门区域端景岛台一体化,端景可以区分入户进门见灶的尴尬,也形成一个独立的入户玄关。
客厅是完全开放的,拥有开阔的视野,大落地窗,层高的优势也拥有极好的采光。
沙发后整面墙的展示收纳书架,不仅构成了一处完整的阅读区域,也串联起了一家人的生活圈,无论是孩子们的照片,妈妈的书籍,爸爸的收藏都能找到最合适的位置摆放。
品茗区天花及地面用实木材料,色彩上更能融入这里的暖色灯光。同时,品茗区与客厅不同的天花造型跟地坪分割,也营造出空间的轴线位置,区别层次与使用机能。
项目名称:轴线
项目地点:湖南.吉首
设计公司:湘西李勇室内设计事务所
主创设计:杨倩
项目面积:150平米
设计时间:2020年9月
完工时间:2021年6月
项目主材:木饰面 不锈钢 石材 艺术涂料 瓷砖 地板 硬包 玻璃
摄影:湘西青木視覚
杨倩
湘西李勇室内设计事务所
- 欢迎投稿 -
答应我好不好?
无论新老朋友,请让广广看见你的好作品
注:接受建筑、景观、室内设计类的作品(首发新作)投稿,投稿联系请添加广广微信~
【“码”上投新作 】
青春×大咖 | 群星闪耀,直击2021广州设计周超强干货!
青春×有品 | 有颜有料,广州设计周大型好物真香现场!
青春X破圈|2021广州设计周40+主题策展,怎么这么好看
青春×开幕 | 谁是2021广州设计周最美展位?
点击【阅读原文】进入2021广州设计周照片直播
本文来自微信公众号“广州设计周”(ID:GZ_DesignWeek)。大作社经授权转载,该文观点仅代表作者本人,大作社平台仅提供信息存储空间服务。










