建筑位于越南的一处村庄,住宅设计旨在营造更为贴近自然的居住生活。
望歸山
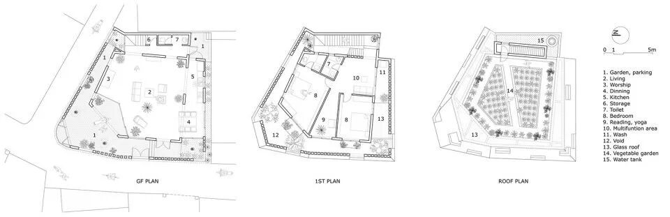
基地位于街角,形状是梯形,为了不浪费面积,建筑紧贴基地布置,形成梯形的轮廓。
望歸山
边界的每条边向内偏移不同的距离,根据空间使用功能的需要,控制各个部分的面积,形成互相嵌套的空间。
望歸山
在最外圈设置绿植,是内外的缓冲空间。
望歸山
根据功能面积需求,确定建筑高度。
望歸山
外墙上端向内偏移,丰富建筑体块。这一操作减少建筑对街道的压迫感,也使得建筑获得较大的采光面积。
望歸山
根据街道和内部功能分区确定2个建筑入口位置
望歸山
建筑立面开设的洞口与镂空的红砖交替布置,形成虚实对比,丰富立面。
望歸山
转角处的洞口弱化建筑体积感,洞口用钢材制作镂空图案装饰填充,既起到遮阳的作用又增加住宅的私密性。
望歸山
一层客厅布置在中心
望歸山
街角处作为入口空间
望歸山
其余三个角作为庭院
望歸山
东侧布置交通空间
望歸山
南侧为厨房和餐厅
望歸山
餐厅部分采用玻璃进行围合增加空间通透性
望歸山
确定一层层高,根据功能开设门窗洞口
望歸山
L形的玻璃窗切出与街角的缓冲空间,可作为停车空间。
西侧为主入口
望歸山
二层延续一层平面轮廓,向上拉起1层围墙,偏移平面轮廓划分主卧和次卧空间
望歸山
主卧紧邻交通空间一侧划分出卫生间
望歸山
根据功能需要开窗
望歸山
2个卧室分别挑出一个阳台增加空间丰富性,与自然亲密接触。
望歸山
平面形成的L形公共区域改善室内通风。
望歸山
南侧挑出一平台建立与餐厅的视野关系。
望歸山
向上拉起2层围墙形成女儿墙,屋顶通过种植蔬菜和绿植解决屋顶保温问题。
望歸山
盒子顶部之间用玻璃封面,创造良好的室内环境。
望歸山
本文来自微信公众号“建筑手记”(ID:DongXiXiaoYuanStudio)。大作社经授权转载,该文观点仅代表作者本人,大作社平台仅提供信息存储空间服务。










