“土间”,是日本传统建筑中的一种空间设计形式,它通常与屋外相连,整体低于屋内其他空间,在过去,这个空间可放置农业劳作的工具,甚至被手工业者当做一个小型的工作场所使用;而现代民宅建筑里,土间已经缩小为一个类似“玄关”的概念,成为进、出之间的一个过渡。不久前,KiKi建筑设计事务所和TAKiBI在日本神奈川县镰仓市完成的住宅项目,通过特定的设计手法,再次探讨和延展了“土间”在当代住宅中存在的形式,以及它与自然、城市、居住之间的关系。
生活的方向,总是伴随着一些既简单又复杂的内、外因素而发生转变,对于这栋住宅的主人而言,也是如此。带着疫情之下的思考,他最终决定与家人一起搬离都市,希望可以像“孩子”一样去生活,重拾真实与轻松。距离东京仅1小时车程的镰仓市,成为了他们的目的地。那里拥有迷人的海岸线和悠久的历史,生活节奏相对较慢,充满令人向往的愉悦和自由,而这崭新的一章生活,将由一所特别的房子来承载——土间之家。
房子的地块,位于距离海边很近的安静巷子里,前后各有一条街道,并具有一定的坡度高差。在勘测现场时,由南面拂来的海风,启发了建筑师们对空间的想象——这所房子需要与自然、街巷形成互动。它不是完全封闭的,独立的,而是由内向外连续打开,呈现一种游动的状态。于是,传统的“土间”概念被设计师重视和演化,它开始穿插于室内和户外的体块之间,创造出更多生活的契机。
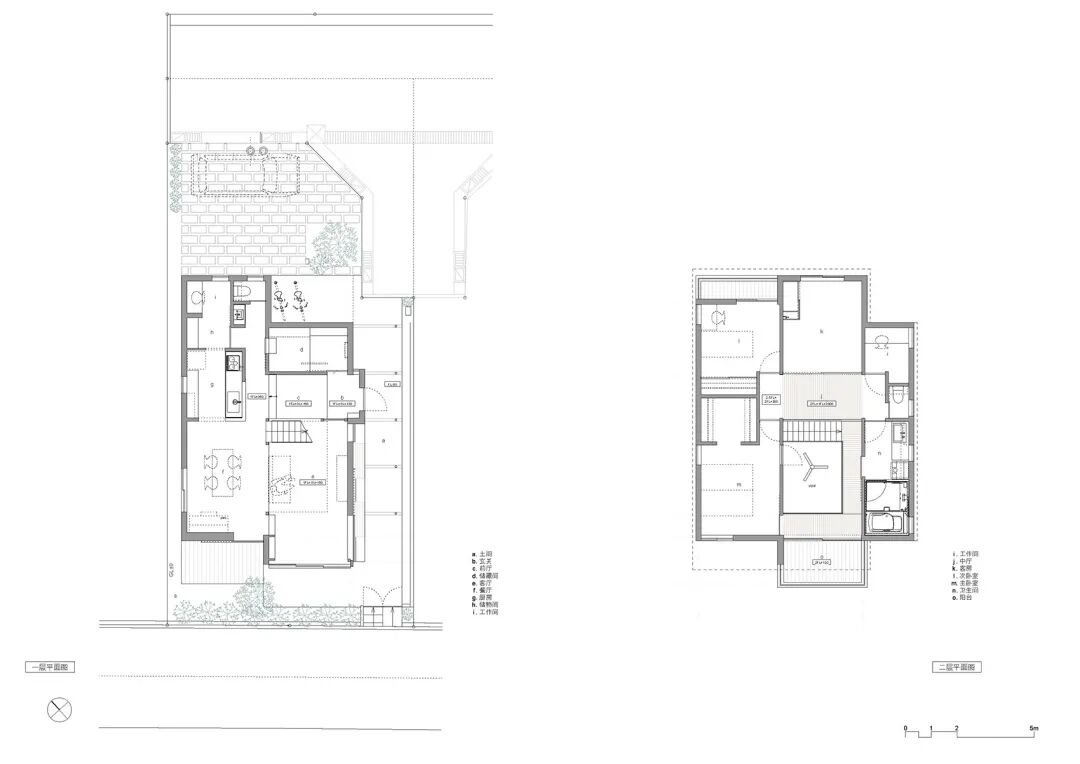
为了满足一家三口的起居生活,这栋双层住宅将一层空间设定为开敞式的活动区域,包含前后庭院、半户外廊、客厅、餐厅、厨房,这也是“土间”概念被最大化的体现,从半户外一直延伸至室内客厅;二层在回形动线的基础上,设置了卧室和浴室,中心的挑空处为房子引入更多阳光与良好通风。而每一层在地面台阶、天花上的微妙高差变化,也让整个住宅生成了自己的立体序列,更富趣味和层次。
建造方面,住宅以最节约成本的方法,采用混凝土地基与日式传统木结构相结合的形式,由经验丰富的工匠负责把控,他们将所有材料进行编号、组合,在2天的时间里即可完成主体的搭建。整个外观呈现出简约的状态,外立面被灰色的水泥外壁板覆盖,如同一颗自然界的石头般,有着优美的肌理。传统的“人字形”屋顶,借由巧妙的双层屋檐收口,被隐藏于视线之中,与周围的房子形成有趣的对比。
▲施工过程
室内空间中,大量应用了木元素,例如一层的地面铺设了可调节温度的亲肤软木地板,二层的回廊区域以木格栅取代了常见的楼板,以及设计了大面积的平推木门,共同营造出房子温馨质朴的一面。此外,为了加固房屋,一些结构部件也以更简洁的外露形式出现,例如玻璃钢网格立面、十字钢线等,它们被统一于轻盈的白色之下,更具装饰性与现代感。而这些细节的构造,也让空间产生了许多“几何空隙”,制造出多孔的层次,让光与风穿行其中,活跃于家的每个角落。
探索,是设计师留给居住者的命题。无形的土间,开启了新的邻里关系与相处模式;没有护栏的楼梯,可以帮助年龄段适宜的孩子,启动自我身体判断与反馈的觉知;生活的内容与重心正悄悄改变,也让每一位家庭成员都找到了新的乐趣。邻里间,孩子们的交流互动日益增多,他们收获了半户外的游乐场地和“抄近道”的乐趣;男主人开始接触冲浪户外运动,客厅里也常常出现女主人阅读与练习瑜伽的身影。这栋住宅为生活带来盎然生机,也激发了街区的活力,让更多的人将“家”的一部分,开放给邻居与城市。就在不久前,街区的另一位邻居也已经展开计划,希望在道路连接的地方加设一条新的通道,欢迎大家常来常往。
项目信息
本文来自微信公众号“Trends Plus”(ID:Trends-Plus)。大作社经授权转载,该文观点仅代表作者本人,大作社平台仅提供信息存储空间服务。










