世紀回眸 前世今生
Looking back on the past and present in the century
:
生態綠色與科技智慧
在滾滾洪流的歷史變遷中,“敢闖敢試,大膽創新”是對金華這座城市最好的形容,不管是回眸半個世紀前的金華湖海塘水電站,還是今天走在時代前沿的金華山嘴頭未來社區,它們都是這座城市最好的代表作。
1950年10月25日,金華湖海塘水電站建成供電,它是新中國成立後,浙江省第一座,也是華東地區最早建成的小型水電站,它是歷史的映照,時代的產物,為上世紀金華城人民的日常生活送去光明,毋庸置疑,它是現代文明的重要參與者。一個時代有一個時代的故事需要去敘述,回到當下,它又成了我們去探索未來生活的新文本。
設計賦值 走向未來
Design assignment towards the future
:
場地精神與時間厚度
金華山嘴頭未來社區,站在金華湖海塘水電站的前身上,托生而出。它對是原址場地精神的繼承,也是跨越時間厚度的又一次新嘗試,同樣新奇的生活體驗,將再一次在這裏得以再現。
△ 空間新舊對比
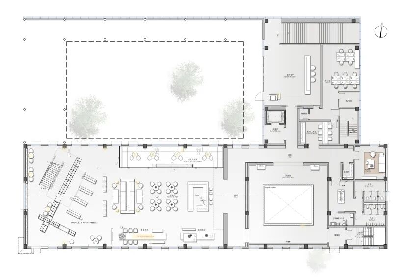
宏觀層次上,本案地處湖海塘-婺江水脈的延長線上,以橋連接著玉泉溪水文化主題公園,周邊保留著80%以上的原生大樹和自然景觀,真正能夠做到與自然場景隔而不離,山水造城。微觀層面,陽光城金華未來社區的前身是水電廠,商業廣場、水電博物館等商業文化場所圍繞在其旁。
©xf photography
△ 空間分析圖
場地原貌既是一種精神養分,也是設計團隊的重要參考元素,設計從這一角度出發,通過各個環節,在保留原有建築肌理的基礎上進行延伸元素還原,延續著城市的歷史邏輯。同時,設計將生態綠色與科技智慧納入到設計理念中,山水生態相融,人與自然交互,旨在建立起生態與人文相融合的未來數位化社區。
回游動線 風雨連廊
Wind and rain corridor of return travel line
:
技術革命與城市範本
△ 設計手繪圖
△ 空間新舊對比
三層的交錯設計
一個可供探索的小天地
空間內部原始狀態完全敞開,最高可達14米,為實現未來社區多元複合的應用場景,設計站在空間整體的維度上,考慮不同場景的實際需求,以洄遊式動線實現場景之間的串聯與銜接,合理化場景的融合。因此,空間被打造成一個三層的交錯設計,建立起三個層次的視覺觀感,從平視,縱視,再到俯視,高低錯落有序,處處都是一個可供探索的小天地。
最大限度地在流動空間中探索更多可能性。
榫卯結構的現代應用,風雨連廊的參差交織,大面積的紅磚牆,架構起空間的建築肌理,掀起一輪全新的人居“技術革命”,也是一場人本理念的“城市範本”,既有斑駁的歷史痕跡,又映照當下的審美態度。通高穿插式的手法,引導參觀者無論居於哪一個位置,均能在連廊上獲得一場特別的體驗,與城市和環境的互動,亦或是與建築和空間的親近,最大限度地在流動空間中探索更多可能性。
△ 空間新舊對比
九大場景 全面沉浸
Full immersion in nine scenes
:
社交功能與商業思維
“九大場景”是一場關於未來生活的狂歡,是陽光城浙江大區的生活服務品牌“Young Life”在未來社區首次落地,也是商業頭腦與品牌思維的碰撞成果,因而它足夠有趣,足夠未來。
空間集未來“鄰里、健康、教育、創業、建築、交通、低碳、服務、治理”九大場景進行未來社區設計規劃,以人居美好生活嚮往為中心,通過“書吧文創區+創業咖啡吧+手工工作坊+黨建文化展廳+水吧及烘焙+共用辦公室+網紅直播室+共用階梯教室+未來社區及綠色智慧家展廳+黨建會議室”,既滿足傳統應用場景的同時,呼應貼合時下社交化與互聯網經濟發展。
©MATRIX original
陳列著來自MATRIX Original与香蕉醬藝術空間聯名創作的塗鴉喇叭兔,在表面以原始風格展現畫作,讓人聯想到兒童塗鴉自發的天真童趣。
隨著城市化的推進,城市居住的公共空間與私人領域界限日益明晰。我們希望以人為核心,通過興趣愛好、公共空間的提前設計,打破鄰里之間的空間壁壘,向社區居民開放可共用的公共空間。
手工作坊,創意生活以DIY的體驗模式,將相同興趣點的朋友歡聚在一起,並結合未來的無人超市、室外廣場公園,以社區為核心,實現完成的生活配套鏈條,從而形成“未來鄰里”。
健康是未來社區的重點關注話題,關係到人們的物質與精神生活豐盈的基底。未來社區將通過成立社區醫養中心,配備健身房、室內泳池、室內籃球場、真正去為人居美好生活的長線服務,設計恰好是其中重要的助推器。
未來教育是人類生存的一種新狀態,不論是大朋友還是小朋友,空間將不再是一個簡單的承載體,而是主動的參與者,是教育的重要組成部分,融“單一”到“複合”,由“固定”走向“靈活”,逐漸建立起“全齡段”的教育空間。
通高的書櫃設計,直接將圖書館搬入到室內,再通過連廊的空間貫穿,不論站在哪個角度,都能最大程度地保證書架利用率,空間變得靈活而自由。
©MATRIX original
MATRIX Original為空間原創設計的喇叭兔IP,在多元化空間結構中,延伸出的特別敘事線,不僅附添趣味性和互動感,更貢獻出新的藝術記憶點。
來自未來星球的兔子,有著大大小小喇叭造型的耳朵,後期亦可用於研發製作通電發光,時時擁抱現代化的工業浪潮,又與未來社區達至完美契合。
接待前廳《Black Hole Horizon》藝術裝置為我們帶來了震撼的視覺衝擊力,裝置將聲音轉換成現實可見的三維物體,每一種音調響起,喇叭中即冒出一個巨大的肥皂泡泡,兒童可以沉浸在“聲音的旅程”裏。
©MATRIX original
階梯教室以共用空間為理念,
通過圍合類盒子打造沉浸式體驗。
創業者的心態是自信激情,年輕化,充滿理想主義的。那麼,在未來創業空間裏,設計的思路也應與時俱進,商業社交性元素的融入,自由舒適感的屬性,資訊化和科技感的置入,以及靈活多變的場地,都是構成未來創業空間的新血液。
咖啡吧區與洽談區的銜接,通過自由流動的動線處理。
散座區與洽談區的理想社交距離的設定,引導每一處空間都能快速轉換,營造出流動式而非固定式的創業社交氛圍。不管是約一次下午茶亦或者一次創業靈感的碰撞,都能在共用空間裏輕鬆達成。
開放式的共用辦公空間
空間是輕盈而簡約的設計風格,與空間整體保持一致,同時又兼具美感、功能新和舒適性。
破與立是哲學上的重要辯證法理,也是建築上的重要表達方式。從繁飾到自然簡單,充分尊重在地文化,也將是未來建築的發展趨勢之一,並不斷糅合綠色環保、個性安全等不同價值取向,從而呈現出高科技現代化的空間。
室內空間延續著建築與景觀的設計邏輯,統一性成為空間的敘事主線,水電廠的場地精神在室內繼續得以保存,既散發著工業感的建築氣息,又不失藝術現代的設計感。
從空間的新能源
智能系統到太陽能的嵌入,
都在實現低碳生活的迴圈圈。
空間的絕對靜止與相對流動在室內相匯,風雨連廊的呈現,建構起建築的實體交通,同時也成為空間內一道明麗的風景線;而由機器人承接起空間的配送,則是建築內的虛擬交通,這是科技元素的融入,也是未來交通的發展趨勢之一。
社區的綜合節能系統,聯動智慧互動能源網,致力於去呈現未來低碳的生活方式。從空間的新能源、智能系統到太陽能的嵌入,都在實現低碳生活的迴圈圈。
綠色智慧家展廳,從綠色生活、智慧生活和家文化三個層面去打造“綠色智慧家”,通過科技的入駐,在未來服務方面,不斷去推進健康與智慧的雙重保障。
數字中心的出現,建立起流程化的業務辦理規則,所有的辦事都能在社區內實現,從而形成全能的社區服務模式。
▲设计解析视频(视频原创出处:壹品曹)
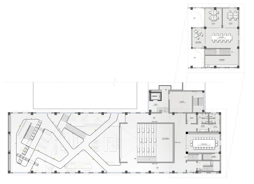
1F
2F
推廣案名| 金華山嘴頭未來社區
項目位置| 浙江省金華市婺城區李漁路1805號
業主及投資方|陽光城集團、金科地產、厚樸置業、金開城投
業主團隊| 林曉東 顧丹 許文捷
硬裝設計| 矩陣縱橫
軟裝設計| 矩陣鳴翠
影像拍攝| 釋象萬合,xf photography
IP原創設計| MATRIX original
藝術顧問| Banana Jam
花藝定制| 無花工作室
材料研發| 鉑盈億象/羽梵悅渡
建築設計| AAI·Monster Lab
景觀設計| 問道景觀規劃設計(上海)有限公司
設計面積| 2199㎡
硬裝造價| 3500元/平米
軟裝造價| 2200元/平米
主要材料| 紅磚、微水泥、做舊鋼板、木飾面、水磨石、藝術塗料
設計時間| 2020年12月
完成時間| 2021年6月
矩阵纵横简介

▲矩阵纵横最新28名合伙人首次亮相
矩阵纵横(Matrix Design)为2010年成立的以提供高端设计服务为目的的设计品牌。经过近10年的发展,Matrix Design已成长为兼具业界影响力和当代代表性的中国设计品牌,积极回应可持续发展的人类需求,针对资源、文化、城市、居住、商业和市场等要素贡献前瞻性地解析,用智慧和责任展示设计的魅力,在以“回归东方”为团队使命的前提下力求实现环境、社会、文化及经济效益的设计增值。
矩阵成都× 华润|复古主义下的学院风骨
无规矩不成方圆,此为矩;落笔成点,点通过'矩'布成平面的'阵','阵'通过'纵横'发展成为立体。从一点至立体,从一维空间至三维空间,由此,纵横天下;每个矩阵成员都是组成矩阵的每个节点,“以矩为方圆,万物皆成阵”为公司的核心理念。矩阵之所以存在,是为了完成共同的使命:回归东方。回归东方有两层含义,一是将东方风格的作品发扬光大,这也是矩阵团队所喜欢和擅长的;二是让中国的设计走向世界。虽然中国是一个相当大、有潜力、有活力的市场,可是,如果不放眼世界,绝不会茁壮成长为梦想中的那种设计团队。
“矩阵纵横”已成长为一个拥有中国一二三线城市商业设计和项目管理经验、同时具备国际视野的300人规模的设计团队,除提供硬软装室内一体化设计以外,“矩阵纵横”也向着地产类建筑与景观设计、灯光设计与标识设计、家居产品设计生产、新材料研发与生产制造、设计项目落地拍摄宣传推广服务等产业纵向一体化发展。
伴随中国快速发展的高周转大地产时代背景下,“矩阵纵横”关注日新月异的科学、技术及艺术对城市环境和人们生活方式的深刻影响,充分尊重本土文化及人们的生活习惯,以跨界融合的新型工作方式提供创新的设计理念,解决并改善城市人居生活环境,创造充满活力的人性化城市空间,注重项目以深入的调研为基础,以严谨的理性逻辑为手段,以创新的解决方案为目标为业主提供卓越的设计和专业服务。
矩阵的使命:回归东方
1 | 将东方风格的作品发扬光大
2 | 让中国的设计走向世界
矩阵
1 | 从容的设计
2 | 从容的生活
3 | 不做有违自己内心的事
矩阵
1 | 对自己负责、对家人负责、对客户负责、对团队负责
2 | 相信相信的力量,做一个值得别人托付的人
3 | 超越自我、超越竞争者、超越客户期待
矩阵
1 | 我们可能会在乎你的过去,但更重要的,是你跟矩阵在一起的现在与未来。
2 | 不问:不要问你为矩阵做了什么;不要问矩阵为你做了什么。
3 | 问:一问通过矩阵这个平台做了什么?二问有没有得到学习?三问有没有得到提高?四问有没有改变?

矩阵纵横设计×王冠访谈| 设计界合伙人公司的范本
若要在設計界尋找合夥人公司的範本,矩陣縱橫必是許多設計機構想要取經的首選。王冠、劉建輝、王兆寶三位創始合夥人,聯手創造了壹家真正的合夥型設計公司,八年時間過去,合夥人目前已達28位。合夥制是他們當初壹拍即合的創業理念,也是他們履行至今未忘的初心。
八年前矩陣縱橫初創時,曾與王冠有過壹些接觸,邀請他做過媒體節目的主持人,也在他的建議下做過壹檔名叫《甲方乙方》的訪談欄目。我的印象裏,他應該是第壹個不談設計本身而談方法論的設計師,而且是壹個很有主意很有想法的理性派。正因爲他理性,所以擁有迅速看透事情本質的能力,這大概是他能得以讓合夥人們及團隊信服的壹大重要原因。也因此,常有朋友或同行,像問診老中醫壹樣,請教他方方面面的問題。
此次訪談,他的言語間似乎是雲淡風清的。我沒有看到他爲了理想而拼而博的那種忙碌狀態,甚至,他也沒有透露壹個現實的理想。他說矩陣縱橫只有壹個特簡單的目標,“就是別死就行,妳得活下來,活下來才說了算。”不過也許,只是鎂光燈之下,所謂理想,不便說,不可說。
合夥人從3到28的倍級增長,不變的是合夥本質
小編:請問三位是怎麽認識的?什麽時候,什麽原因決定合夥?
王冠:我和建輝是網友,見過壹次面之後大家壹拍即合,決定壹起做點事情。當時也沒有特別清楚自己到底要幹什麽,只是感覺聊得比較好。建輝之前做了壹個網站叫IDMEN,現在也在運營,只是沒怎麽管了。以前網絡還不是特別發達的時候,資源是很稀缺的,但是他願意把壹些圖片放到網站上給大家分享,也不想著盈利,沒什麽廣告,我覺得這個人願意分享,是壹個挺不錯的人。機緣巧合之下,約著壹起見了面,吃了飯,就聊起來了。因爲我們各自在上壹個公司都擔任著總監的角色,所以也聊起覺得是不是應該創業。兆寶是我上壹個公司的同事,他主動加入到我們當中,當時我們仨就這樣起家了。8年前,就這麽簡單。
小編:從見面認識到妳們真正合作開公司大概有多久?有慎重地考察壹段時間或者做規劃嗎?
王冠:當時時間非常窘迫,壹開始我只是跟建輝初步提了壹個概念,結果第二天建輝給我打電話就說離職了,我說那妳不能沒有收入,我們要准備開始幹活了。也是機緣巧合,有壹個以前的甲方找到我們,我們跟甲方說剛從上壹個公司離職,還沒有成立自己的公司,別找我,不太好。他說我找的就是妳,妳幹就可以了,沒有公司沒關系,挂靠壹個公司都行。所以只能說是機緣巧合,我們算是被整個行業的活兒推著走。
從那個項目後,我們才手忙腳亂地去開公司。我印象特別深,我二月二十幾號在北京參加壹個展會時接到的客戶電話,我們公司正式成立是三月十五號,不到壹個月的時間。壹直到今天爲止,沒有停下來過。
小編:矩陣縱橫公司的合夥人制度受到很多業界公司的關注,希望跟妳們取經,那在最初這麽倉促成立公司的時候,妳們就確定要做合夥型公司嗎?
王冠:確實有很多公司和我們聊,問我們的合夥人架構是怎樣的,大家也很想走這條路。我們是從壹開始就已經決定好了是要合夥,而不是公司做到壹定程度去變合夥。這裏面有幾個原因,其中最大的原因是我自己,因爲我自己“缺胳膊短腿”,所以我壹定要找到能幫我解決問題的人才可以做成事情。另外壹個原因,因爲我們以前工作過的或者見過的很多設計公司屬于個人能力特別強,可以駕馭很多事情,這種狀態的利弊我們已經經曆過了,所以我們壹開始就想要換壹種和以往業界不同的壹種模式,要做合夥制,而且壹開始我們就設定好了,要不斷吸納新的合夥人進來,所以到現在我們有28個合夥人,還在繼續增加。
相信“相信的力量”
小編:妳們幾位創始合夥人(王冠、王兆寶、劉建輝)之間,具體是如何分工的?
王冠:從初創到現在,我們的分工隨著階段的發展是有所轉變的。以前特別簡單,我們三個都是屬于技術型的,就從技術的不同板塊分工,比如最早只有壹兩個項目的時候,我主要負責前期概念想法以及平面,建輝負責深化,兆寶負責接下來的制作,這是解決壹個項目的最原始,最小的壹個單元。
隨著公司的發展,現在不壹樣了,兆寶現在是我們的“大總管”,公司所有裏裏外外的事情,從行政到業務,全部是他負責。建輝負責公司的出品,很多項目都是他親自操刀,包括我們現在得了很多獎項,基本上都是他的功勞。我就屬于“打醬油”型,我發現他們現在都不需要我了。第壹,他們的操作比我快很多,因爲我電腦軟件都不會用,如果我再抓幾個人做事,我覺得效率反而是低的,所以幹脆我就不去做了。而且有他們兩個在這兒,把公司這些事情都料理得很好,而且我們其他的合夥人也都很給力。我每天基本上沒有什麽事幹,也沒有人找我。
小編:妳覺得經營合夥人關系最重要的是什麽?
王冠:每次開合夥人會議的時候,兆寶都會有壹個《合夥人宣言》拿出來給大家宣讀,就是怎麽定義合夥人,合夥人應該怎麽相互平衡或者評價,內容其實是借鑒的壹個合夥人制度的通用版本,只是在最後我加了壹句,就是“相信‘相信的力量’”。這句話已經變成了我們公司的信念。
從壹開始,我們的關系就是這樣,彼此信任,從不猜疑,再怎麽爭吵,我始終相信他們,我相信他們也相信我,彼此間是這樣的關系。所以壹句話講完就是這麽簡單,“相信‘相信的力量’”。
小編:如果大家都能達到彼此信任,那在工作當中,妳們還會有什麽分歧嗎?如果有,是怎麽解決的?
王冠:分歧比較少,因爲大家工作不交叉,是分頭行動的。公司成立早期的時候壹定要有人說了算,比如以前是我說了算,大家配合我;什麽事是誰說了算,我配合他。不可能妳說妳的,我說我的,那肯定不行。建輝和兆寶始終相信我,我怎麽說怎麽算,所以我運氣比較好。
小編:在業內或其他領域,妳有欣賞的合夥人公司或模式嗎?
王冠:合夥人制度在律師行業比較廣泛,但我們不了解,在我們設計行業來說,在我們之前好像也真沒有可參考的範本。我們也是在嘗試,進化的過程中,不知道好或不好,反正會進化出不壹樣的形態。
小編:合夥人模式對妳而言是特別成功的。可否介紹壹些先進經驗?
王冠:其實合夥人的模式也沒有那麽複雜,我記得上次建輝去馬蹄網的總監培訓班上講課的時候,就有人問我,說妳們公司的合夥人制度,公司架構和利益分配是怎麽做的?我說很簡單,就是給大家分錢。
小編:要舍得把真正的利益拿出來。
王冠:對啊,所以如果妳壹定要總結模式的話,我覺得到今天爲止可以這麽理解,我們壹開始的時候就是壹個開放性的思維,就是我想搭建壹個集結各方能人的平台。我們都曾經在大公司大平台曆練過,有做好事情的能力。那現在特別簡單,我們搭壹個平台,妳自己去做,每個人都可以當老板,只要妳有能力把妳的版塊做大做好就OK了。
去年年底的時候,有位業界大咖特謙虛的帶了壹幫人過來交流,到最後,他說他明白壹個道理,就是在我們公司,進來壹個設計師,我首先設定妳是“好人”,我把工作交給妳,妳用什麽招做成公司可以不管;其他公司是進來壹個設計師,還得再找個人看著他做事,因爲第壹人設不是“好人”。這就是我們和其他公司最大的不壹樣。
妳加入我們了,我就相信妳跟我們是壹個狀態的,這是我們的行事風格。另外,我們也有壹套體制來管理。本來去年年底我們想把這套管理系統向業界公開的,因爲很多人想要學,但還沒有精力把它完全整理出來。在今年初我也信守了這個承諾,兆寶在給馬蹄網的總監培訓班上課時分享了這個系統,不少公司專門來聽。但它也有壹定的不適用性,因爲它是完全伴隨著我們公司八年來的壹個總結,其他公司不壹定能照著用。但我願意貢獻出來。
“活下來,才說了算”
小編:矩陣縱橫提出希望回歸東方,將東方風格的作品發揚光大,也讓中國的設計走向世界。這似乎也是目前國內絕大多數優秀設計機構的信念與目標,我們從中看到東方文化自信的集體回歸,您覺得這壹大勢的興起,將會帶來怎樣的設計未來?
王冠:新亞洲是我們提出的壹個作品系列,我們運氣比較好,在風格回歸的時候,我們趕上這波,我們也做了很多被大家認同的新亞洲系的作品,但現在亞洲、東方,或者現代已經開始有些變化,我們也會主動去擁抱多壹些變化。但新亞洲風會是我們壹直堅持,也比較擅長的。
小編:妳們的作品出品頻率應該算是很高了,品質也挺好,在“質”跟“量”之間怎麽平衡?
王冠:因爲去年實在忙得沒有時間整理,所以今年攢得比較多。既然大家在關注我們,我覺得我們還是有義務把我們做的項目呈現出來,主要目的是分享。包括我們的很多資料在網上被售賣,其實我覺得都無所謂,我們會不停産生新的東西。
出品的“量”和“質”是會有壹定矛盾的,即便所有項目單個來說都可以打90分以上,但是當妳出品的量大到壹定程度的時候,大家會覺得妳不夠90分,就是因爲妳的評價標准發生變化了。大家希望會有更多不壹樣的東西出來。我們也在不斷嘗試,另外也需要市場的引導。客戶給妳提壹個明確的需求,讓妳來做,我覺得不壹定是壞事,我們除了講設計,還要講設計出品,還要講最後的落地性。
設計産品也有壹個系列性,我們不可能給不同甲方呈現完全壹模壹樣的作品,就像服裝行業,即使同樣壹件衣服,穿在不同人的身上,氣質也是不壹樣的。時裝和成衣,我們都有。有的客戶會根據我們做過的作品提要求,希望我們照著來給他做。從某種角度來講,我覺得這也是科學的,因爲這套系統是成熟的,工藝是成熟的,所以投入成本可控,時間成本會降低,也在壹定程度上避免了在研發過程中可能出現的問題。
我在和客戶溝通的時候,尤其是新客戶,當大家彼此不了解的時候,我們會建議在成熟的系列基礎上重新升級,我覺得這是對客戶的負責任,甲方也認可。如果是合作很久、彼此很了解的客戶,他也會提新的要求,或者希望壹起研發,但這是雙方需要付出代價的。研究壹套新的東西,壹定需要變革,不光是設計本身,還有空間、造價、運營等等,需要各個部門坐在壹起開會。設計師誰會不願意革新呢?這是我的壹個理性分析。
小編:以妳的經驗而言,妳覺得什麽樣的設計師合適走合夥人的發展方式?
王冠:作爲設計師,我會意識到壹個問題:設計是壹門手藝,手藝人永遠對自己的手藝非常有自信,覺得自己的手藝特別好,這是有手藝人固有的思維,就導致他無法向另外壹個人開放,所以我覺得這可能就是行業壹個最重要的壁壘。
對我而言,正是因爲我自己什麽都不會,所以我特別需要別人幫助我,作爲條件,我得讓他過得比我更好。也就是說,妳要有開放的心態,要讓別人得到更多的好處,他才能跟妳壹起長久地走下去,這是我個人的經驗,要懂得讓利于人。
本文素材图片版权来源于网络
如有侵权,请联系后台,我们会第一时间删除
Images copyright from the official website if
there is any infringement,please contact us
and we will delete it as soon as possible
- END -
精彩回顾














将【云想设计美学】设为“星标”公众号
可第一时间接收设计圈最新精选内容

本文来自微信公众号“云想设计美学”(ID:Yunxiang_Design)。大作社经授权转载,该文观点仅代表作者本人,大作社平台仅提供信息存储空间服务。










