该项目位于北京东城的老城区,本次的设计工作是翻新沿街现有的明代老建筑及内部改造为私人宅院。
Located in Dongcheng district in the ancient city of Beijing, the project consisted in the construction of a private courtyard house including the refurbishment of an existing Ming's dynasty building along the street.
在设计过程中,重要的是对新旧的事物进行清晰的解读,同时在一个连贯的建筑中把两者完整的联系起来。地块周围的砖砌围墙和老建筑的结构被保留下来,并增加了两座平行的建筑,以创造连续的三个院子。新建建筑以周围老建筑为参考,以现代的方式重新诠释:传统瓦片的双坡屋顶被保留下来,但坡度更低,屋檐更长,传统的木结构被薄钢结构和木椽的组合所取代。
In the design process, it was important to give a clear reading of the old and the new while connecting both in a coherent architecture. The brick fence wall surrounding the plot and the old building's structure was kept untouched and two parallel buildings were added to create succession of three courtyards. These new constructions take reference from the surrounding architecture and reinterpret it a contemporary way: the double pitch roof of traditional tiles is preserved but with lower slopes and longer eaves and the traditional wooden structure is replaced by a combination of a thin steel structure and wooden rafters.
▲入户庭院
这组庭院依动线由外至内进行了私密度递增的布局。宅院的客房及起居生活空间都围绕在第一个庭院,而第二及第三个庭院则是完全私密的卧室和书房。
Theseries of courtyards will provide different degrees of privacy increasing while progressing inside the building. The guest room and living spaces of the house will be organized around the first courtyard while the second and third patios will be totally private with bedrooms and study room.
▲入户庭院
▲起居室
▲客卧
这三个建筑由一个超薄的黑色钢制顶棚连接在一起,用以隐藏结构的同时,自然形成了宅院的入口,并在三个庭院间创建了连廊。这条水平线也为现有建筑和新建筑的无框玻璃窗创造了一个共同的界限,并为南面的外墙提供了一个日晒保护。
The three buildings are connected together by a black steel canopy, made as thin as possible with its structure hidden from the observer. It generates the entrance and creates covered passages between different buildings. This horizontal line also creates a common limit for the glass frameless windows for both existing and new architecture and creates a sun protection for the south facades.
▲混凝土框架卧室
整个体系中添加了三个混凝土元素:其中两个封闭“盒子”构建的浴室如插件般嵌入建筑,另一个以混凝土框架形式在起居室后新增了一个卧室。
Three concrete elements are then added to the system: two opaque "boxes" hosting the bathrooms are inserted like plug-ins in the architecture and a concrete frame creates a supplementary bedroom behind the living room.
▲混凝土框架卧室
该地块的绝大部分此前未进行过建设,在确定其有创建地下空间的可能性后,我们将泳池及健身房设在此处。它由地块北端的庭院和侧面的线性天窗共同形成自然照明,同时露出结构横梁,为地下空间增加了漫反射照明。
Most of the plot being previously unbuilt, it was possible to create an underground space, where the swimming-pool and gym was set-up. It is naturally lit by a patio on the north end of the plot and by a linear ceiling window on the side that let the structural beams appear and play as light reflectors for the underground space.
▲负一层游泳池
一层和地下层间形成了强烈对比:一层使用了中国传统屋顶的形式谨慎地融合在老城背景中;而地下层则运用了野兽派粗犷的建筑语言,仅凭混凝土一种材料就呈现了极为有趣的光影景观。
A strong contrast is created between the ground floor, merging discreetly in the ancient city context with references to the Chinese traditional roof and the underground expressing a brutalist architecture, where concrete as a single material creates an interesting scenery of light and shadows.
▲负一层健身房视角
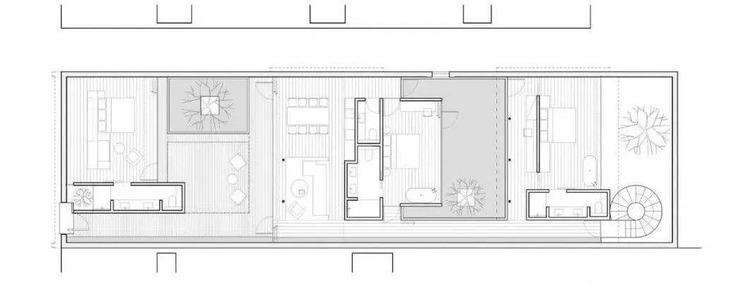
▲整体平面图
▲负一层平面图
▲南北向剖面图
▲项目模型
▲项目模型
▲项目模型
▲项目模型
项目信息
Project Information
项目名称:东城私宅改造
Project Name: Dongcheng Courtyard House Refurbishment
项目地点:北京市东城区
Location: Dongcheng, Beijing
项目类型:建筑设计 / 室内设计 / 景观设计
Project type: Architectural Design / Interior Design / Landscape Design
主持设计师 :Johan Sarvan, Florent Buis
Principle Designer: Johan Sarvan, Florent Buis
面积:660㎡
Project Area: 660㎡
主创建筑师
卓汉 苏文 Johan Sarvan (左)
建筑师
2006年毕业于法国马恩拉瓦莱国家高等建筑和城市规划学院
2009年于北京创立卓汉苏文建筑事务所
Florent Buis (右)
建筑师
2010年毕业于法国马赛-卢米尼国家高等建筑设计学院
2013年起成为卓汉苏文建筑事务所的合伙人
JSPA Design是一家位于北京的法国建筑设计工作室,从2009年成立至今,形成了建筑设计、景观设计、室内设计及产品设计等全方位的设计服务体系。JSPA Design的设计语言是现代的,又常常是突破常规、具有启迪性的,跳出传统的风格概念,专注于光影、材质与空间之间的动人关系。JSPA Design的优势在于,深入了解当地建筑材料的特性,进行创造性且融入于场地的建筑表现。团队的建筑理念是赋予建筑现代的语言与智慧,但在与当地自然环境和原始建筑风貌融合时又不打破其原有的整体性。JSPA Design极其重视大自然与建筑之间的对话。在设计过程中,团队重点关注如何解决建筑与环境共存的问题,认为各部分的设计都不应该是孤立存在的,甚至大自然也应在建筑中拥有其专属空间,并通过不断地尝试和探索使大自然以最舒适的姿态回归到建筑,实现建筑与自然的完美融合。从设计理念、细节处理再到施工把控,JSPA Design参与到项目的全流程中,以严格的标准来确保项目每一个环节的圆满完成。
延伸阅读
本文来自微信公众号“YOU设计”(ID:YOU-Design2017)。大作社经授权转载,该文观点仅代表作者本人,大作社平台仅提供信息存储空间服务。










