精品咖啡品牌NO NAY受邀,在话梅(HARMAY)重庆解放碑店内打造其西南片区首店。LEL DESIGN studio 与 FLIP studio 联合进行了首店的室内设计,在延续NO NAY以往独特的化学符号及实验室氛围的基础上,通过引入“可移动装置”作为契机,形成空间延伸与场景切换,模糊商业与公共空间界面,实现未来不同可能性,展开一场空间行为实验。
项目外观 ©言隅建筑空间摄影
动态的金属长桌和L型灯箱旋转延伸到内街,店铺与内街立刻被连为一体。伸入内街的长桌与靠墙的活动长椅,使原本狭长的空间,自然形成动静分区。©FLIP studio + LEL DESIGN studio
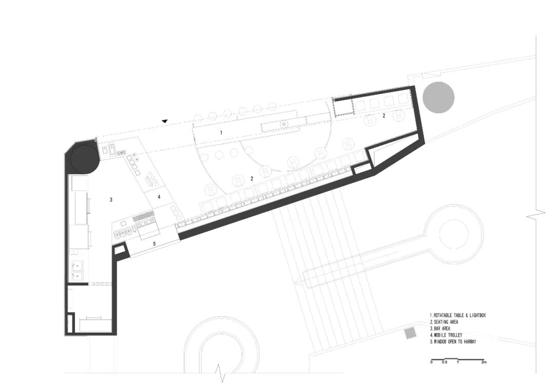
平面布局 ©FLIP studio + LEL DESIGN studio
店铺位于解放碑的国泰广场商业内街,来往解放碑的人群虽多,但商场内街由于较暗的光环境与行人休憩空间的不足,虽位于主力店位置,如果不试图突破传统商业立面的设计手段,将难以真正使人群主动停留。同时,位于话梅的“店中店”,本身空间狭长,对如何有效提高店内坐席区的效率和舒适性都提出了挑战。
沿内街商业外观 ©言隅建筑空间摄影
然而这些限制和挑战也成为设计的出发点:将面向商业内街的界面整体塑造成一组可移动的空间装置,既可向内街借用一部分空间,形成可收缩扩大的外摆区域,同时也可实现空间场景的自由切换,当动态的金属长桌和L型灯箱旋转延伸到内街,店铺与内街立刻被连为一体,而伸入内街的长桌与靠墙的活动长椅,自然地使原本狭长的空间形成动静分区。
店铺室内 ©言隅建筑空间摄影
不同材料的使用也是重点探索的内容,我们对不锈钢的表面处理方式、亚克力的透光率、特别是毛毡的肌理和硬度等做了一系列测试和研究,以求在开敞的店铺空间中,优化环境声学和增加舒适度,塑造真正使人愿意停留、享受咖啡和社交的空间。
不锈钢+毛毡成为空间主要的材料,在声学环境和人体舒适度上都能真正达到使人愿意停留、享受咖啡和社交。©言隅建筑空间摄影
空间中除了可以旋转的灯箱与长桌,所有的室内家具包括长凳、小推车等都可以自由移动,空间布局及场景的灵活变化也更加符合当代年轻人的社交方式。装置是载体,目的是激发多样行为及对内街的适度使用,长桌作为开放式讨论区带来的社交激活都是空间行为实验的一部分,可移动的家具也给使用者根据社交需求来变化室内布局带来可能。
通过一个精心设计的洞口来建立与话梅的双向联系,位于洞口两侧的客人皆可以感知对方空间。©言隅建筑空间摄影
我们通过一个精心设计的洞口来建立与话梅的双向联系。咖啡店一侧,洞口被设置在客人点单的吧台位置,店铺内甚至站在内街,话梅内最具特色的“粉色洞穴”也可透过洞口被咖啡店一侧的客人看见和感知。话梅一侧,洞口以一种谦逊的方式出现在洞壁,预留了未来经营的可能性。
转门灯箱、旋转长桌、金属吧台、带状展柜等一些列的装置,将社交、展陈、和咖啡体验融为一体,戏剧化地以一种不稳定的方式被定格在空间中。©言隅建筑空间摄影
最终,设计在表达NO NAY品牌主题延续性的基础上,以空间装置的互动、不同材料的对话,同时激活话梅及内街两个商业界面。转门灯箱、旋转长桌、金属吧台、带状展柜等一些列的装置,戏剧化地以一种不稳定的方式被定格在空间中,实现了品牌展示、咖啡体验、产品陈列、人的社交之融合。
项目信息
项目名称:NO NAY 精品咖啡西南首店
项目类型:室内设计
设计方(联合设计):FLIP STUDIO × LEL DESIGN STUDIO
项目设计:2022年3月
完成年份:2022年5月
设计团队:FLIP STUDIO:孙凯伦 / LEL DESIGN STUDIO:余快、王一玎、罗赛、于昊良、杨睿豪、张凡、李璐
项目地址:重庆市解放碑国泰广场
建筑面积:50㎡
摄影版权:言隅建筑空间摄影
客户:NO NAY 精品咖啡
材料:不锈钢、毛毡、亚克力
‘FLIP’名字来源于建筑师孙凯伦于2016年联合创⽴的’FLIPPOP’城市空间实践项⽬,即将原来⼀个十平米的沿街商铺根据不同租客需求转变为多功能空间。取名为’FLIP’是因为空间的概念是⼀扇可“翻转”的门,当门开启之时,室内即与街道连通,变成了城市街边的⼀个公共空间。
FLIP相信从个⼈到城市的尺度,由艺术到设计的延展,通过这些转化以及不同领域的碰撞和交流,才能不断拓展建筑学边界,并为之带来维持其先锋性和社会性的活力。FLIP设计工作室的实践内容包括室内设计、建筑设计和城市设计。
对于FLIP来说,建筑是生长的空间,在时间的作⽤下与⼈的活动,城市,周围发⽣关系。设计工作室关注的是如何为这种关系提供⼀个可能性,⼀个场所,围绕发⽣在空间中的行为和事件展开;通过寻找某⼀个契机,有时是⼀个装置,有时是⼀种行为,为空间带来⼀系列化学反应,带来不同场景与体验,形成新型的社交场所。
孙凯伦
FLIP设计工作室主持建筑师
毕业于美国耶鲁大学建筑学硕士, 弗吉尼亚大学建筑学专业理学学士,先后在如恩设计研究室、矶崎新+胡倩工作室工作。参与完成的代表作品包括雪花秀韩国首尔旗舰店,山西省大同大剧院, FLIPPOP城市空间。曾受邀在港大上海中心的春季研讨系列的“政治/艺术与媒介”进行主讲,目前担任交通大学建筑系实践导师。
关于 LEL DESIGN STUDIO
LEL DESIGN STUDIO 于 2015 年在上海成立,是按照合伙人机制运行的以 80 后建筑师为主的建筑设计事务所,目前在上海、成都和莫干山设有工作室。事务所目前有近 20 位设计师,在规划、建筑、室内及家具等不同尺度和领域开展研究和实践,重点关注当代和全球化语境下的传统(Tradition)、风土(Vernacular)与地方(Place)。
本文来自微信公众号“Trends Plus”(ID:Trends-Plus)。大作社经授权转载,该文观点仅代表作者本人,大作社平台仅提供信息存储空间服务。










