竞赛背景情况 日本大洲市位于爱媛县南予地方,它虽然被称为市,但其实十分具有乡间田园的风貌,城市历史更不逊于京都,有着“伊予的小京都”之称,是日本一处著名的旅游胜地。 大洲市市民会馆始建于1968年,自1969年开馆以来,作为该市的文化、艺术中心受到了当地很多市民的喜爱。但是,市民会馆经历半个多世纪的使用,其建筑结构、设备等性能已趋于老化。2021年7月,大洲市提出了《新的大洲市民文化会馆整备基本构想》,制定了对现有建筑进行改扩建的计划,让市民会馆以新的面貌发挥文化设施,服务市民文化生活的作用。 去年11月,大洲市启动了一项设计竞赛,征集新市民会馆建筑的改扩建设计方案。设计方案需要在解决市民会馆所面临的课题的同时,能够在未来灵活、准确地应对多样化、高品质化的市民的文化艺术活动的需求,推进市民的日常交流和文化信息发布等功能。同时,为了实现脱碳目标,减少环境负荷大的公共建筑物的生命周期成本,新市民会馆还应该满足ZEB化(ZEB Ready)的认证。 今年3月23日,在经历了两个阶段的评审工作后,竞赛公布了结果,由株式会社佐藤総合計画赢得了第一名,评委们认为获胜方案是一个高度综合的提案,考虑了与周围具有“大洲特色”的环境之间的和谐。建筑各层的平面布置也考虑到了实用性和便利性,以中庭为核心的日常公共空间也得到了评委们的高度赞赏。此外,与ZEB认证相关的设计措施所体现的技术能力十分有效且具有高度可行性的。评委们对于方案中设计的所谓“大洲走廊”的空间,认为其不一定要着眼于交通的便捷性,扩大公共区域的吸引力可能会更好。此外关于大屋顶,评委们认为这虽然是该方案的一个重要特点,但未来可能会存在成本上的问题。
竞赛获奖情况
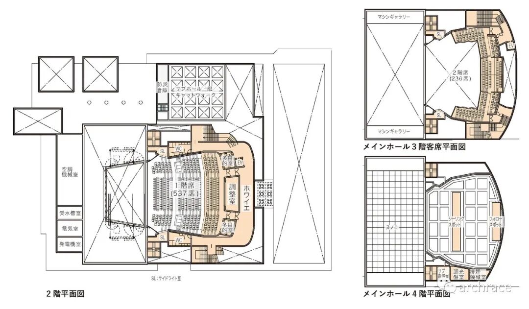
第一名
佐藤総合計画
©佐藤総合計画
第二名
新居千秋都市建築設計
©新居千秋都市建築設計
入围
环境设计研究所(Environment Design Institute)
©环境设计研究所(Environment Design Institute)
入围
NASCA・A&A・i-studio 共同企業体
©NASCA・A&A・i-studio 共同企業体
入围
隈研吾建筑都市设计事务所
©隈研吾建筑都市设计事务所
文字编辑 | 瑞小思
校对审核 | 斯坦
本竞赛信息及文中涉及的图片均来自网络,原始版权属于竞赛主办方和竞赛提案设计师所有。
本文来自微信公众号“archrace”作者:瑞小思(ID:archrace)。大作社经授权转载,该文观点仅代表作者本人,大作社平台仅提供信息存储空间服务。










