竞赛背景情况 去年6月由由圣保罗公司、都灵大学和都灵市政府发起发起了一场国际建筑设计竞赛,竞赛任务是设计、修复和重新功能化位于意大利都灵,在1997年宣布为联合国教科文组织世界遗产的皇家马厩与马术学院(Cavallerizza Reale di Torino)建筑群,目标是在市中心创建一个国际文化中心,通过建立新的文化、培训、酒店、社会和管理功能而获得关注。 通过新设计并与参与该修复工程的其他机构进行合作,Cavallerizza Reale 综合体正准备成为一个能够接待世界各地的观众和举办不同的活动新城市场所,创造出高质量的空间并将现有被打断的路线重新连接起来,首先是 Valdo Fusi 广场和皇家花园之间以及 Castello 广场和 Mole 之间的路线。 今年2月,竞赛结果公布,由意大利著名建筑事务所 Cino Zucchi Architetti 与 Dotdotdot、Tiemme、Torino Stratosferica、Alberto Artioli 和 Valentina Capra合作赢得了竞赛的第一名。圣保罗公司总裁 Francesco Profumo 宣称:“经过一年多的紧张工作,通过与一些知名的国际设计团队的共同合作,我们开始为都灵的 Cavallerizza Reale 大型建筑群书写新的一页。从一开始,我们的主要方向就是为公民提供一个文化、社会和教育中心,在可持续性和实验的框架内展望未来。” 获胜提案首先是尊重过去,在当代的城市结构和旧的历史结构之间保留充足的对话空间,以便从能源和环境方面的新需求出发,从未来的角度解释正在发生的变化领域。
竞赛获奖情况
第一名
Cino Zucchi Architetti
©Cino Zucchi Architetti
获胜提案将项目的基本要素概括为三点:深入了解现有建筑的历史和现状以及连接它们的开放空间;对文物的理解,以当代视角指导这些内容的细分,以适应不断变化的生活方式和价值观;重新诠释现有建筑并植入新元素的作用,将城市体验的强度与对自然和环境的集体承诺相结合。
数字技术将支持和激活整个项目,旨在作为一种工具在访问前后陪伴市民,随着时间的推移在地方、居民和游客之间建立持续的关系。
CZA 的设计通过结合城市体验重新诠释现有建筑,通过一系列精准的干预措施阐明了项目的愿景,就像在城市的身体上进行针灸一样,放大了城市每个部分的特征。
在最重要的历史见证之一的 MOSCA 翼楼,将有一个具有现代、多功能工作区的结构供圣保罗公司使用,东门廊重新开放以容纳自助餐厅,并与教堂和花园连接。中庭、接待处和电梯区将优化所有楼层的分布,并加固了现有的楼梯。另一方面,门廊的西翼由浅色玻璃进行围护,将成为活动室的大型门厅,可以俯瞰邻近的庭院。一楼包含更多的公共功能,而上层将根据圣保罗公司的功能计划进行组织。
在中间走廊的尽头分布了主要的工作空间,在走廊的尽端,设计团队新增了一个悬挑在建筑之外的梯形元素,为楼层增加了一个休闲的观景台,可以看到Mole 和大教堂的壮丽景色。
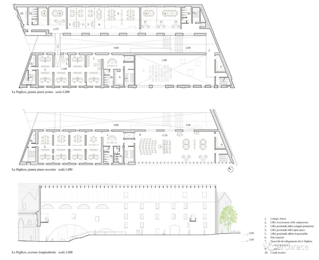
PAGLIERE 建筑的特点是两个平行体的旋转布置,在东端被一场大火严重损坏,因此,这栋建筑将成为更大规模干预的对象,旨在容纳具有文化内容的空间,为当地、意大利和国际上的文化组织提供服务。
CAVALLERIZZA ALFIERIANA 大楼将包含一个剧院/展览空间,而 CORPO DELLE GUARDIE 大楼则完全用于大学机构,将为一个博士学院创建灵活的空间,包括实验室、教室、办公室、联合办公空间和针对不同用户的会议和研讨设施。
新Cavallerizza Reale 综合体将向城市提供一系列的开放空间,这些开放空间将通过一些简单的改造保留其原始特征,新增的石凳、照明元素和树木将为不同的季节举办的各种活动提供服务。
新增的氧化铜半圆形雨棚凸显了各个部分的入口,并将在 Ala del Mosca 和 Pagliere 之间创建一个新的小广场,这将成为花园的入口区,在建筑物之间的凹面空间之间形成过渡和树林间的绿色小径。
总的来说,Cavallerizza Reale 综合体新增的建筑元素,不会试图模仿现有的历史形式,而是以“现代都灵”的连续性、实验性和复杂性,与它们和谐相处,在未来的信任之间建立对话以及提升这座历史名城的环境质量。
因此,Cavallerizza Reale 的重生将代表融入城市的多种功能,交织在一起,为一个能够将千年历史与不断变化的当代社会相结合的温馨场所赋予生命。
第二名
Lacaton & Vassal Architectes
©Lacaton & Vassal Architectes
第三名
Caruso St John
©Caruso St John
第四名
Architecten Jan de Vylder Inge Vinck(AJDVIV)
©Architecten Jan de Vylder Inge Vinck
第五名
Guicciardini & Magni architetti
©Guicciardini & Magni architetti
第六名
Balance Architettura
©Balance Architettura
文字编辑 | 瑞小思
校对审核 | 斯坦
本竞赛信息及文中涉及的图片均来自网络,原始版权属于竞赛主办方和竞赛提案设计师所有,如有版权问题,请联系删除。
本文来自微信公众号“archrace”作者:瑞小思(ID:archrace)。大作社经授权转载,该文观点仅代表作者本人,大作社平台仅提供信息存储空间服务。










