竞赛背景情况 去年8月,芬兰奥卢市为该市的博物馆和科学中心(Oulun museo- ja tiedekeskuksen)的设计组织了一场综合建筑竞赛。竞赛任务包括了需要翻新的主楼和一个较新的科学剧院部分,后者将被一个更大的新建建筑取代。未来展览和活动中心的目标是每年可以接待 200,000 名游客。 新建筑将容纳博物馆和科学中心组织的大部分工作人员,以及 Tietomaa 和 North Ostrobothnia 博物馆,新项目建设计划在 2024-2026 年完成建设,预计将于 2026 年奥卢文化之都年伊始对外开放。据城市经理 Ari Alatossava 介绍,奥卢市将投资约 3000 万欧元用于博物馆和科学中心的建筑群,该项目也是是奥卢历史上最大的文化投资之一。
竞赛共收到95份参赛提案,由芬兰建筑事务所 Arkkitehtitoimisto OPUS 和建筑师 Simon Mahringer 合作赢得了竞赛第一名。评委们认为,获胜方案是对城市状况的巧妙诠释。新博物馆和科学中心的建筑室内外空间形成了一个连贯而有趣的空间组合,在功能安排上也很出色。建筑的外观整体低调沉稳,没有多余的东西。 芬兰建筑事务所 Verstas Arkkitehdit 赢得第二,第三名由英国设计公司 William Matthews Associates 赢得,西班牙建筑工作室 Mendoza Partida Architecture Studio,芬兰事务所 JKMM Arkkitehdit 与意大利设计公司 Andrea Tabocchini Architecture 获得了竞赛提名。
竞赛获奖情况
第一名
Arkkitehtitoimisto OPUS,Simon Mahringer
©Arkkitehtitoimisto OPUS,Simon Mahringer
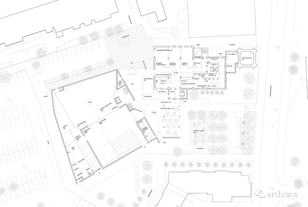
第二名
Verstas Arkkitehdit
©Verstas Arkkitehdit
第三名
William Matthews Associates
©William Matthews Associates
提名
Mendoza Partida Architecture Studio
©Mendoza Partida Architecture Studio
提名
JKMM Arkkitehdit,Andrea Tabocchini Architecture
©JKMM Arkkitehdit,Andrea Tabocchini Architecture
文字编辑 | 瑞小思
校对审核 | 斯坦
本竞赛信息及文中涉及的图片均来自网络,原始版权属于竞赛主办方和竞赛提案设计师所有,如有版权问题,请联系删除。
本文来自微信公众号“archrace”作者:瑞小思(ID:archrace)。大作社经授权转载,该文观点仅代表作者本人,大作社平台仅提供信息存储空间服务。










