良渚博物馆建立在杭州良渚文化区,通过建筑与景观的协同作用,良渚博物馆与周围环境紧密相连。博物馆位于运河畔,运河在这里作为一个人工湖,积极地向建筑渗透。建筑通过一条步行桥梁,跨过运河与河畔公园联系。建筑体量内部形成多个庭院,弱化了博物馆和周围环境的边界。
图源网络
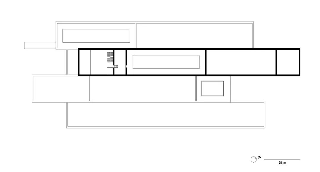
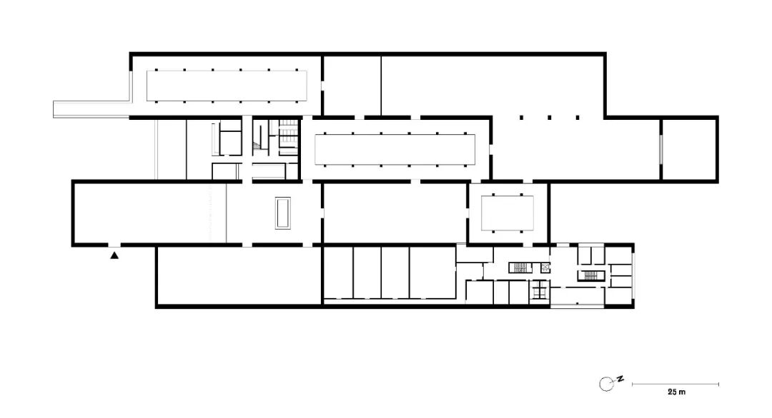
博物馆建筑由四个长方形体量构成,它们宽度相同,长度和高度各异。四个体量之间通过大小、形态各异的庭院转换。博物馆深处的庭院以传统回廊的形式呈现,四面走廊环抱着花园或是池塘,显得尺度亲切。
博物馆入口处庭院则以与外立面一致的石材围合,仅点缀几棵大树,显得开敞、大气。这种对比增强了参观者从室外进入博物馆,从开敞到围合的体验感。
图源网络
博物馆的整体布局虽较为线性,但并不会造成参观线路的过于单调,参观者可通过随处可见的开放式空间,游走于展厅和庭院之间,随时调整自己的观展体验。
图源网络
© 33
© 33
© 视界计划
© 视界计划
© 33
© 33
03
本文来自微信公众号“匠山行记”(ID:gh_d836161f0f54)。大作社经授权转载,该文观点仅代表作者本人,大作社平台仅提供信息存储空间服务。










