Radboudumc的新主楼提供了一个友好和热烈的欢迎。大楼的建成为30多年后向新医疗园区的过渡画上了句号。这座11层楼的建筑--拥有约46,000平方米的建筑面积、充足的日光和周围的景色--创造了一个绿色和有益的环境。互动、共同工作和分享专业知识是关键的品质。这就是Radboudumc的使命所在:可持续的合作,实现有利于公众健康的个性化护理。
由于采用了适应性强的设计,所以面向未来。Radboudumc的使命是成为塑造可持续的、创新的和可负担的医疗保健的领导者。新的主楼完全支持这一目标。特别是与EGM建筑师最近进行的其他改造和新开发项目相结合,新主楼形成了绿色校园的核心,并迎来了一个可持续的、面向未来的时代。
主楼布局清晰,服务和物流的空间被战略性地放置,巧妙地适应视听点,以及综合技术创新,为各种专业提供了必要的自由布局。这种独特的、适应性强的能力构成了建筑的愉快、可持续和持久使用的基础。它也确保了来自不同专业的专家感到受欢迎和舒适。而这也使建筑使用者在现在和将来都能提供和接受个性化的创新护理。
Future-proof thanks to the adaptable design. The Radboudumc mission is to be a leader in shaping sustainable, innovative, and affordable healthcare. The new main building supports that aim perfectly. Especially in combination with other recent renovations and new development by EGM architects, the new main building forms the heart of the green campus and ushers in a sustainable and future-proof era. The clear layout of the main building, with strategically placed spaces for services and logistics, smartly adaptable audio-visual points, and integrated technological innovations, offers the necessary freedom of layout for various specialisms. This distinctive, adaptive capacity forms the basis for the pleasant, sustainable, and lasting use of the building. It also ensures that specialists from various professions feel welcome and comfortable. And that enables the building users to provide and receive personalized and innovative care, now and in the future.
支持和刺激的建筑。新主楼的建筑是对Bossche学校风格的现代诠释,其中明确体现了拉德布德姆的独特品质:人文主义、人的尺度、与自然的联系以及地方的 "特征"(couleur locale)。熟悉和真实的建筑形式支持了拉德布德姆的身份,并与校园内现有的纪念性建筑--博舍学校风格--和谐地融合在一起。克制的设计是基于从黄金分割中得出的理想尺寸。虽然有些楼层有一个足球场那么大,但他们从来没有感觉到巨大,而是平静和熟悉。尺寸设计、清晰的空间构成和流通性有效地促进了医疗机构和病人的福祉和健康。
Architecture that supports and stimulates. The architecture of the new main building is a modern interpretation of the Bossche School style, in which the distinctive qualities of Radboudumc clearly resonate: the humanism, the human scale, the connection with nature, and the ‘character’ of the place (couleur locale). The familiar and authentic form of architecture supports the identity of Radboudumc and blends harmoniously with the existing monumental buildings – in Bossche School style – on the campus grounds. The restrained design is based on the ideal dimensions derived from the golden section. Although some floors are as big as a football pitch, they never feel vast, but rather calming and familiar. The dimensioning, clear spatial composition and circulation contribute effectively to the well-being and health of healthcare providers and patients.
永远明亮,永远有风景。充足的日光、随处可见的庭院花园景观和醒目的景色使每个空间都令人愉悦。在自然光照条件下工作和恢复--整天都是如此--支持生物节律,对身体和精神恢复至关重要。七层楼高的中央中庭将日光引入建筑的中心。成熟的树木和绿色植物将自然引入室内。阶梯式门诊、接待区和餐厅位于玻璃幕墙后面,玻璃幕墙顺利地过渡到玻璃屋顶。这使自然界既可见又有形。动态水平的照明在创造一个愉快和健康的室内气候中起着至关重要的作用。
Always bright, always views. Plenty of daylight, views of courtyard gardens from everywhere, and striking views make every space pleasant. Working and recovering in natural lighting conditions – all day long – supports the biorhythm and is crucial for physical and mental recovery. The seven-floor-tall central atrium draws daylight into the heart of the building. Mature trees and green plants bring nature indoors. Stepped outpatient clinics, reception areas, and the restaurant are located behind a glass facade, which smoothly transitions into a glazed roof. That makes nature both visible and tangible. Dynamic levels of lighting play an essential role in creating a pleasant and healthy indoor climate.
西欧最具可持续性的医院。该设计符合最严格的可持续发展要求,是荷兰第一个获得BREEAM优秀证书的大学医疗中心。除此之外,它还取得了所有医院中的高分。主楼拥有节省材料的主体结构、细长的楼板、大量的预制构件、700平方米的屋顶太阳能板、蓄热装置和节水措施。此外,它不使用化石燃料。此外,还采用了亲生物设计,Radboudumc在可持续性和健康的基础上组织其内部流程和设施采购。综合来看,所有的设计决定和创新使其成为西欧最可持续的医院。
Most sustainable hospital in Western Europe. The design meets the strictest sustainability requirements and is the first university medical center in the Netherlands to the awarded the BREEAM Excellent certificate. On top of that, it achieved the highest score of all hospitals. The main building boasts a material-saving main structure, slender floor slabs, numerous prefabricated components, 700 m² of solar panels on the roof, a thermal-storage installation, and water-saving measures. Moreover, it uses no fossil fuels. In addition, biophilic design has been applied, and Radboudumc organizes its internal processes and facility purchasing on the basis of sustainability and health. Taken together, all design decisions and innovations make this the most sustainable hospital in Western Europe.
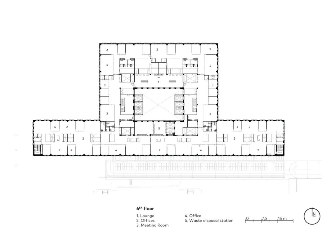
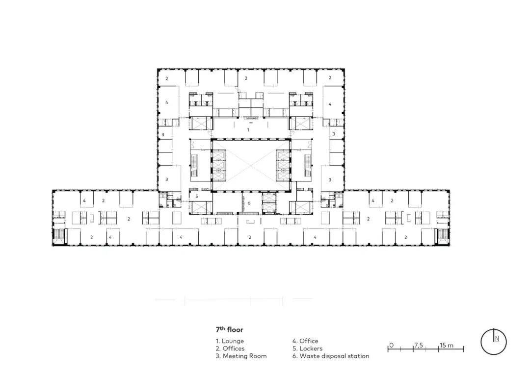
互动自然发生。主楼促进了一种新的工作和合作方式。这里有11个中心,而不是传统的部门,使专业人士、病人和学生能够更容易地互动,帮助他们塑造未来的医疗保健。在楼下的开放式餐厅,在楼上的茶水间,在员工部门的咨询、研讨会和学习空间,都可以见面聊天,分享专业知识,并相互启发。此外,还有位于各科室旁边、遍布整个医疗中心的客厅和休息室。所有这些设备齐全的中心--舒适和技术结合的地方--对于在学术环境中交流思想至关重要。
Interaction takes place naturally. The main building facilitates a new way of working and collaborating. Instead of the traditional departments, there are eleven centers that enable professionals, patients, and students to interact more easily, helping them to shape the healthcare of tomorrow. Meeting for a chat, sharing expertise, and inspiring one another can occur in the open restaurant downstairs, in the pantries on the floors above, and in the spaces for consultation, workshops, and study in the staff departments. And also in the living rooms and lounges, located right beside the departments and positioned throughout the medical center. All these well-equipped hubs – where comfort and technology come together – are essential for exchanging ideas in an academic environment.
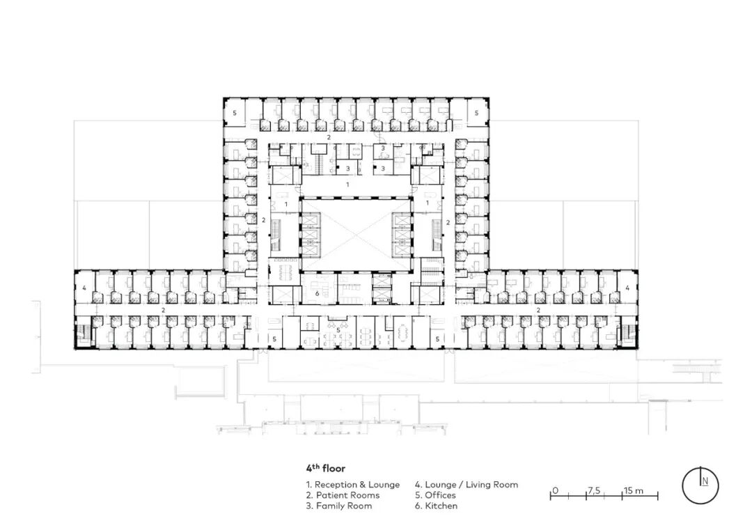
在一个屋檐下进行专业合作。主楼里有警察诊所、护理单位和员工部门,以及神经科、耳鼻喉科、眼科和内科等中心。所有这些专科以前都被安置在不同的大楼里。位于一楼的是主要的接待和准备区。宽敞的诊室和检查室的建造方式使得它们可以被多个专业所使用。护理单元包含150多个单间,有大窗户和私人卫生设施。每个房间还包含有伴侣或护理人员可以在此过夜的空间。房间被设计成各种使用形式,反映了病人康复的各个阶段。它得到了智能医院系统的支持,使房间可以根据病人的意愿进行调整。每个部门的布局都鼓励人们多做运动,可以沿着走廊散步,或者去中央休息室、某个小客厅或无障碍屋顶花园。
Collaborating specialisms under one roof. The main building houses policlinics, nursing units, and staff departments as well as such centers as Neurology, ENT (ear, nose, and throat), Ophthalmology, and Internal Medicine. All these specialisms were previously housed in separate buildings. Located on the ground floor are the main reception and preparation areas. The spacious consultation and examination rooms are built in such a way that they can be used by multiple specialisms. The nursing units contain more than 150 single rooms with large windows and private sanitary facilities. Each room also contains space where a partner or caregiver can stay the night. The room is designed for various forms of use that reflect the various phases of patient recovery. It is supported by a smart hospital system, which allows the room to be adapted to suit the wishes of the patient. The layout of each department encourages people to exercise more, by walking along corridors or visiting the central lounge, one of the smaller living rooms, or the accessible roof gardens.
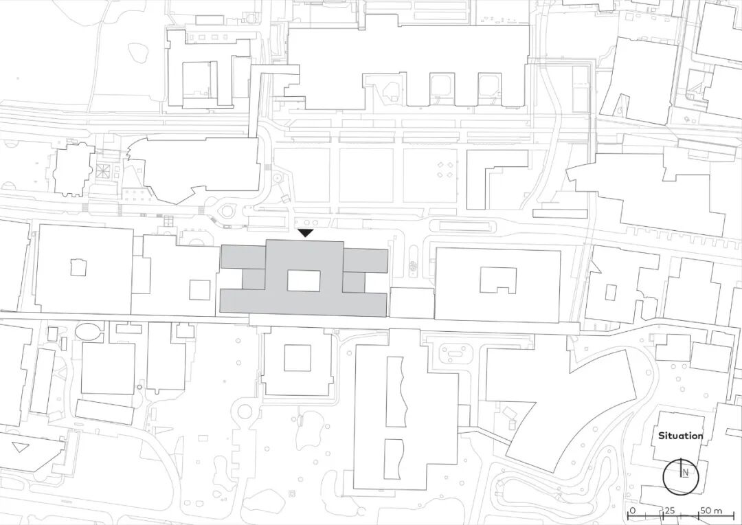
连接的绿色校园。根据Radboudumc的愿景--自2014年以来的发展--新校园由一个大型公园环境组成,将病人、访客、工作人员和学生聚集在一起。这种健康和无障碍的环境刺激了创新。场地的彻底重建满足了减少建筑平方米数的愿望,并创造了更有效、更个性化和更可持续的医疗保健。以新的主楼为重点。
Connecting green campus. In line with the vision of Radboudumc – developed since 2014 – the new campus consists of one large park setting that brings together patients, visitors, staff, and students. This healthy and accessible environment stimulates innovation. The radical redevelopment of the site meets the wish to reduce the number of built square meters and create more efficient, more personal, and more sustainable healthcare. With the new main building as the focus.
对团队的奖励。威廉-亚历山大国王以喜庆的风格为新的主楼揭幕。这是对无数参与工作的个人和组织当之无愧的奖励,他们共同塑造了Radboudumc的雄心。EGM建筑师和EGM室内设计公司负责设计,并与Radboudumc大楼项目办公室和Suzanne Holz工作室合作。咨询团队包括Deerns, Aronsohn, Peutz, DGMR和ptg advies。施工由FourCare财团(Van Wijnen、Trebbe、Unica和Engie)负责监督。
The reward for the team. King Willem-Alexander opened the new main building in a festive style. A well-deserved reward for the work of countless individuals and organizations involved, who together shaped the ambition of Radboudumc. EGM architects and EGM interiors were responsible for the design, in collaboration with the Radboudumc Building Project Office and Suzanne Holz Studio. The advisory team included Deerns, Aronsohn, Peutz, DGMR, and ptg advies. Construction was overseen by the FourCare consortium (Van Wijnen, Trebbe, Unica, and Engie).
地点:荷兰
面积:45000 m²
年份:2022
本文来自微信公众号“建筑设计之家”(ID:jianzhu78)。大作社经授权转载,该文观点仅代表作者本人,大作社平台仅提供信息存储空间服务。










