▲
IDIN Architects
IDIN Architects是将设计融入自然的缩写,成立于2004年。我们以两种方式感知“自然”。首先,自然可以定义为我们周围的生态。其次,它也可以指不同的习惯和性格。IDIN的设计理念和重点是将这种“自然”的周围感与建筑美学相结合。这种合并是通过分析每个项目的不同需求和需求并确定其优先级的过程完成的。
An acronym for Integrating Design Into Nature, IDIN Architects was founded in 2004. We perceive ‘nature’ in two ways. Firstly, nature can be defined as the ecology around us. Secondly, it can also refer to different mannerisms and personalities. The design philosophy and concentration of IDIN is to merge this sense of surrounding, the ‘natures’, to the architectural aesthetic. This merge is done through a process of analyzing and prioritizing the different needs and requirements of each project.
Keereetara是一家全新的餐厅,旨在取代其位于附近的原有分店。这家餐厅本身是坎查纳布里最受欢迎和最成功的泰国餐厅之一,因此业主决定保持一种传统的泰国风格,这种风格反映在建筑上,与所供应的泰国菜肴相联系。
Keereetara is a brand new restaurant intended as a replacement of its original branch located nearby. The restaurant itself is one of the most popular and successful Thai restaurants in Kanchanaburi, so the owner decided to maintain a sense of the traditional Thai style reflected on the building that links to the Thai dishes served.
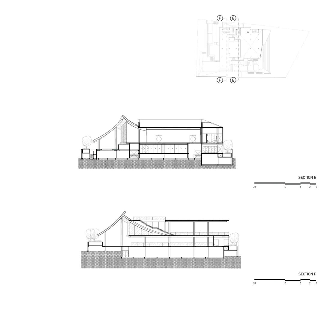
由于酒店规模较小,特别是与大型餐厅分支机构所需的功能相比,餐厅需要能够支持研讨会和婚礼等大型活动。
Due to its small property size, especially when compared to the required functions of a major restaurant branch, the restaurant needs to be able to support large-scale events such as seminars, and weddings.
这导致了一个超过1000平方米的大型食品厨房,以充分支持未来的扩建和附近的分支机构。Keereetara不仅要有一个大型服务设施,而且由于该场地毗邻快手河,因此利用这一景观对室内和室外用餐区也是至关重要的。
This resulted in having a large commissary kitchen of over a thousand square meters in order to fully support any future expansions and the nearby branches. Not only that Keereetara has to house a large service facility but as the site is adjacent to the Kwai river - it is also crucial to take advantage of this view for both the indoor and outdoor dining zones.
这与高天花板相结合,形成了一个巨大的建筑体量,填满了空间,阻碍了河流的视线。因此,建筑师将其他可用功能放置在第二层,厨房和服务设施位于一个大型楼梯后面,该楼梯将所有游客引向第二层的入口门厅。
This in combination with a high ceiling results in a large building mass that fills up the space and obstructs the view of the river. The architect therefore places other usable functions on the second level, the kitchen and services behind a large staircase which leads all visitors to the entry foyer on the second floor.
设计过程从限制开始;找到最实用的位置来提供大部分服务和食品厨房,这占据了一楼的大部分可用空间。
The design process started from the limitation; with finding the most functional location for most of the services and the commissary kitchen - which takes up most of the available space on the first floor.
泰国的房屋传统上是小规模的,通常被集体安置在一起。因此,建筑师将泰国建筑的“感觉”和“感官”融入到可用空间中,以突出用户的泰国氛围,而不是使用泰国建筑的直接比例或装饰元素。
Thai houses are traditionally small-scale and are often collectively placed in clusters. The architect therefore adopted the “feelings” and “senses” of Thai architecture into the usable spaces to highlight this infused Thai atmosphere for the users rather than using direct proportions or decorative elements from Thai architecture.
本文来自微信公众号“设计诗designer”(ID:shejishi_designer)。大作社经授权转载,该文观点仅代表作者本人,大作社平台仅提供信息存储空间服务。










