/会筑设计|170㎡精装完美户型配置大横厅,匠心巧改拥有超大空间感和超高利用率

会筑设计|170㎡精装完美户型配置大横厅,匠心巧改拥有超大空间感和超高利用率

HZD

细腻的生活美学享受


极致的居住功能设计




我们总是期待盛大的浪漫,偶尔细看,默默的陪伴才最惊艳。本案为精装修房改造项目,业主是一对年轻的夫妻,他们刚刚迎来了宝贝女儿的出生,在新家设计时希望满足三口之家的正常功能需求,但也更注重两个人陪伴空间的营造,基于这一原则,对空间、动线、功能、软装展开规划陈设。






因为精装交付且对户型动线相对满意,所以结构上未作大的改动,主要集中于顶立面装饰的调整和部分功能区域的优化,再从灯光、色彩、家具、软装搭配着手,让整个空间更加丰富,氛围更加温馨。拆除阳台与客厅之间的推拉移门和墙体隔断,形成开阔无障碍的大通间,阳台纳入客厅后进行地台设计,铺设原木色鱼骨拼地板形成休闲区,空间变得更加温暖舒适。冬日暖阳,大小朋友可以在这里嬉戏玩耍、阅读学习,享受惬意时光,连通客厅作为家人互动交流和娱乐的空间,自由且随性。




原精装交付回字形结合灯带的吊顶设计千篇一律毫无个性,设计师拆除所有冗余的造型满吊平顶实现无主灯设计,空间更加整洁清爽。雅灰色乳胶漆,局部同色格栅造型打造空间的层次感,悬挑抽屉柜暗藏灯带增加空间的轻盈感,这样的电视背景墙简约又出彩。保留电视又暗藏了投影幕布,灯光渐暗,荧幕落下,客厅即刻变身家庭影院,在家也能看大片。






▲ 原始精装交付现场(客厅)

在客厅的另一侧沿墙定制了整面储物展示柜,收纳和展示夫妇两喜欢的手办和书籍。写意空间Ploum贝壳沙发、毛毛虫懒人沙发搭配SUFAN复古单人椅,一张舒服的羊绒地毯,随意组合不拘泥于形式。将洗烘设备隐藏于柜内,空间更加整体和美观。家,因人而异,没有中规中矩的约束,形制上可以更加随性,组合上也可以更加自由。







▲ 原始精装交付现场(餐厅&门厅)

餐厅沿墙增加一组餐边柜满足收纳需求,也是厨房厨柜的延伸,契合整体轻松自由兼具设计感的调性。高柜集合了西厨烘烤设备和零食收纳,矮柜上方设置层板置物架,或装饰或收纳,随心所欲。业主喜欢手冲咖啡,在家看一场电影或拼搭乐高或陪伴孩子,冲上一杯咖啡,在醇香的味觉和嗅觉的享受下,感知生活平淡而幸福的美好。




拆除原开发商交付的玄关柜,重新设计和定制一组玄关柜,与电视背景墙巧妙衔接,收纳量和美观度都得到了大大提升。靠入户门的位置增加艺术造型的穿衣镜和换鞋凳,让归家更舒适也更有仪式感。






▲ 原始精装交付现场(儿童房&衣帽间)

朝南次卧室作为儿童房,整体的布置温柔甜美,以小朋友更喜欢的鲜艳明亮色调为主,卡通可爱的元素让空间充满童真和趣味。原主卧室的衣帽间分割重组,儿童房的面积得以扩充,空间更加舒适敞亮。充足的活动空间,安全环保的儿童家具,可爱柔软的游戏地毯,营造一个自由、安全的成长环境。


将主卧室和北次卧打通连成套间,超大容量衣帽间代替了原精装交付中狭小逼仄的衣帽间,重新规划了衣物收纳区、包包展示区、鞋帽区、梳妆台等。从起床、洗漱、换衣、化妆、配饰,动线流畅,一气呵成。





▲ 原始精装交付现场(书房)

朝北的另一间次卧室则改为多功能房,将原精装交付的平开门连同墙体一起拆除,换成透光性更好的玻璃推拉门,解决了过道空间采光不足的问题。这里平时作为男主人的书房,也是放松休闲的电竞房。另一侧定制柜内隐藏了墨菲床,偶尔来人需要居住时又可以作为临时客房,一房多用。

户型

Unittype


▲ 原始户型图


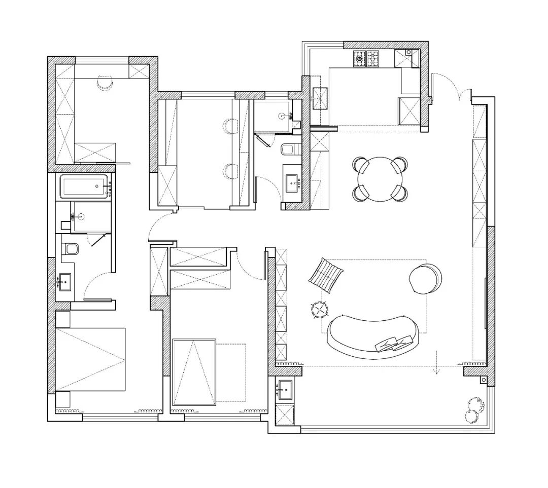
▲ 平面布置图


设计团队 / 南京会筑设计

Design Team / Nanjing Hori-Zons Design

服务模式 / 全案设计+半包施工+产品代购

Sercice Mode / Design+Construction+Products

项目地址 / 南京 东原印长江

Location / Nan Jing,Jiang Su

项目面积 / 170m²

Area / 170m²


MORECASE

 


境物


时髦养老房

 


叠影


顶复结构之美


 


栖原


开阔宽敞大横厅

 


韵见


精装华丽变身

AWARDS

2021

DESIGN FOCUS 国际空间设计大奖·年度优秀奖

GOLDCASE金案奖(2021-2022)全国优胜奖

G+AWARDS全球设计精英大赛  中国·南京TOP10

M+中国高端室内设计大赛 居住生活空间 TOP50

2021-2022年 40 UNDER 40中国(南京)设计杰出青年

2021上海国际设计周金梁设计奖(南京)城际榜

2021百度馨居奖年度最佳大户型设计奖TOP30

2021年度芒果奖住宅/公寓空间类全国TOP100

2021达人设计总评榜全国百强设计公司

2021一兜糖最有温度设计师华东地区TOP100


2020

PChouse Award私宅设计大奖全国BEST100杰出设计师/设计机构

PChouse Award私宅设计城市榜BEST10

芒果奖中国人文设计中国住宅优胜奖

好好住营造家奖华东赛区年度TOP150

上海国际设计周新锐中国设计奖省际榜

40 UNDER 40 中国(江苏)设计杰出青年

江苏·星空间杯大奖赛住宅空间工程类银奖


2019

金堂奖中国室内设计年度杰出作品奖

“星空间杯”江苏省室内设计大赛铜奖

中国私宅设计年度评选城市榜Top10

中国私宅设计年度100位杰出设计师/设计机构

营造家奖华东分赛区年度荣耀

芒果奖中国人文设计大赛入围奖

华鼎奖中国室内设计杰出青年设计师

上海国际设计周新锐中国设计奖城际榜

极享家室内设计(居住类)空间榜样


2018

中国美好生活空间设计大赛TOP100

营造家奖年度最佳中户型设计奖

好好住年度设计师TOP100

第十一届大金内装设计大赛全国优秀奖

芒果奖中国人文设计大赛最佳商业空间奖

大众点评家装频道品质设计奖

多套作品被发表于《软装饰界》、《D-Life设计与生活》、《瑞丽家居》等业内专业杂志


预约咨询 | 商务合作 | 简历投送

Tel:025-85495470

Mob:13914784029 17714532093

Wechat:13914784029  

Add:南京·建邺·万达中心E座1301-1302室

关注了解更多资讯

FOR MORE INFORMATION


期待您的转发 | 分享 | 收藏 | 点赞 | 在看

本文来自微信公众号“南京会筑设计”(ID:huizhuspace)。大作社经授权转载,该文观点仅代表作者本人,大作社平台仅提供信息存储空间服务。