为孩子创造一个充满爱与自由的环境。
△ 建筑风景
△ 现实情景
△ 形象墙
△ 幼儿园外墙景观
△ 园外景观小道
△ 建筑鸟瞰
△ 建筑几何形态
△ 时空隧道
△ 建筑
△ 开心的孩子们
模糊了室内外的边界,丰富的自然环境会带来多元化的学习体验。建筑的一层采用了全透明落地玻璃,解决了整个室内空间的采光、通风问题,而且落地的玻璃窗和门让这个空间更加通透;通过视线的引导,孩子们可以自然地进入室外,为孩子们带来全新的视角与空间体验。
△ 林园围栏
△游戏场地
孩子像失群的动物,心灵在受着折磨。特别是让城里的孩子们回到自然中去,重新亲近大地,带领他们在自然里做游戏,去体验人与人,人与自然以及自然本身原来应有的和谐与平衡,这不仅是为了环境教育,也是对幼稚心灵的抚爱和陶冶。
△ 林中长颈鹿
孩子们一旦来到这里,都会依依不舍。林园的尽头是一个种植园区,里面有各种各样的四季果蔬,供孩子们享受天然的蔬果。种植园区紧靠厨房区域。
△ 趣味林园
△ 二层屋顶活动场地
△ 二层屋顶活动场地
△ 探险区
场地分区明确,增加了多种可能性;从高空看,像一个临时的帐篷;在内出现了一个个神奇的山洞,圆弧形白色外墙设计,极大的减弱了幼儿磕碰带来的伤痛。
△ 大厅空间
△ 大厅空间
室内公共空间,设计者使用了大量的白色主色调,局部空间有绿色点缀,整体空间显得很丰富,同时也营造出一种区别于传统幼儿园空间的整体色调,打造出一种柔和宜人、生态而愉悦的气氛。
△ 接待区
△ 楼梯间
△ 走廊
孩子们的活动室设计更接近大自然的色彩,让孩子有归属感,一种自然的气息得以延续并融入进来。
△ 活动室
△ 活动室
△ 活动室
△ 手工坊
△ 活动室
△ 活动区
△ 美工室
△ 美工室
△ 科学室
多功能教室的布局,给整个空间增强了生命力。我们一起期待孩子们在这个幼儿园的快乐成长。
△ 多功能教室
后续:Yilin International 亦霖幼儿园于2017年9月顺利开园,希望能在新的环境里,在老师的带领下,帮助孩子以全新的视角去审视世界,让孩子得到更多的体验和探索,让幼儿园里面更加好玩和有趣。
相关图纸 /
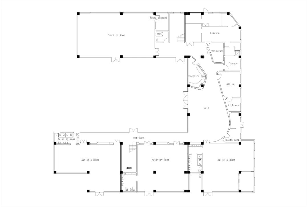
△ 总图
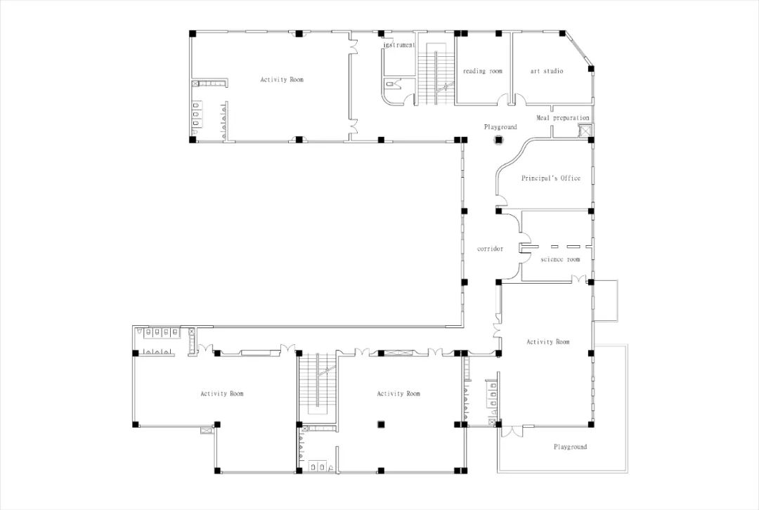
△ 一层布局图
项目面积:2450sqm
设计单位:张晓光设计顾问(北京)有限公司
设 计 师:张晓光、江波 、朱茵、刘艳青
设计时间:2016年11月
项目建成:2017年9月
1、GRK张晓光建筑官网、知乎建筑一点通
本文来自微信公众号“计成”(ID:jicheng-0102)。大作社经授权转载,该文观点仅代表作者本人,大作社平台仅提供信息存储空间服务。










