2018年初,久舍营造工作室受邀在舟山定海的一个海边山村设计一座200平米左右的民宿接待中心。业主要求该中心除了满足基本的到店登记入住,还需满足约二三十名客人的早餐与下午茶活动,并且有条件作为临时展厅使用。
项目场地为山村最高处一块从东北高西南低的山坡中平整出来的台地,平面为南北方向略长的近方形状,面积约400平米。废墟基址成一字型占据北侧近一半场地,空出南侧的平地。场地西侧长向紧邻村路,且自北向南与不断降行的村路形成约2-4米的高差,通过从西南角贴边向北伸出坡道与村路相连。场地隔路为进入村内的下行步道,路肩下方的高大树冠和步道边的二层房屋一道,将基地西侧的海景几近遮蔽,只在西南角的树干间,透露出山坡更低处一些树木的冠顶亮光。而在其他方向,起伏的山体与杂树林形成了高大紧密的自然屏障,将场地围合并在上空收束,框出一方天空。
整个场地,不仅体现出一种面向西侧道路(以及远处不可见的海面)的”方向性”,其相对道路的抬高以及相对山林的下沉,又呈现出一种特殊的对山体水平切片的”地层感”。
▲场地原状与地下方的村路(右侧红砖堆上方台地为场地)
可变的功能意味着通用常规的平面形态。面对只有模糊感受的平坦基地和几无特色的山林环境,如何让建筑在满足功能的前提下,既与场地的气质契合,又能获得超越日常的丰富空间体验,还能保持和提升我们坚持的建筑学品质,成为我们需要回答的问题。
▲场地与建筑轴测 ©久舍营造
化整为零
根据以往在村里建设的经验教训,新建筑进入乡村,需要尽量避免让其呈现一种相对村宅在体量、尺度上的强势,才能提高在建造过程和后期运营中与原住民的融洽度。何况,我们这次的基地位于进村的必经之路,且有居高临下之势,更需要对体量、尺度等问题加以回应。
我们首先利用场地与道路的高差,将需要在内部以房间形式分隔出的卫生间及厨房等辅助功能下沉,剩余的接待与餐饮、展览功能基本通用,就可以在上部更加自由地进行空间布局与形体组织。这样既获得了上部空间操作的自由,也减少了暴露在”地面”上的体量和面积。之后,我们将上部空间的体量进一步化整为零,切分成三个日常房间尺度的矩形小体量,再两两对角咬合成一串整体。
三个体量中每一个的平面轮廓都比村中常规农宅的尺寸要小,且立面由与附近轻工业园区厂房类似的竖向金属波纹板包裹,细窄的波长让其摆脱了人们对工业建筑的惯性记忆,产生既抽象又细腻的多层次视触感。三个体量南北前凸,中间退后,在平面上围合出朝向西侧大海的”空院”,明确出建筑形体的主朝向。南部的体量相较北部进一步后退,让出场地上保留的一排杂树,与原有坡道共同建立出入口空间。咬合的动作使得建筑轮廓变得曲折丰富,原本平直的外部自然山林景观因此有了从室内观看的多种视距。
在竖向上,三个体量逐层抬升,分别位于不同标高的台地之上。内部台地侧面混凝土细木模板的横纹延续并强化了一种山地地层的感受。最高的台地下方是隐藏在基座中的厨房、卫生间。台地间通过处于平面咬合部分的台阶连接,外部毛石砌筑的台地则直接从其边缘设台阶构成连续的”山路”。台地的三个标高在室内外一一对应,使场地的”地层感”在内外延续。三个台地由南向北的连续抬升,如“补山”一样,降低了原本场地与北侧陡坎的巨大高差,作为基座,也为上方体量获取更多光线与更开阔的景观创造了条件。
反向双坡屋面
仅仅是三个普通体量在平面和剖面的咬合,还不足以支撑我们对内部体验丰富度的期望。我们还希望找到一种可以从结构层面整合外部和内部空间体验的整体策略。最终,我们找到了“反向长短双坡屋面”这样一种特别的思路。毋庸置疑,反向双坡屋面可以使建筑从外廓上获得一种陌生感与识别度,让建筑的图像易于传播,但更令人惊喜的是其在内部的视觉表现,以及在内外空间的连续感受中发挥的综合作用。
反向双坡屋面沿体量的长向展开,屋脊梁下探并纵贯房间上空。梁上两边连续的斜向胶合木椽与木望板共同构成浅白色空间中最具吸引力的视觉对象。同时,传统双坡屋面或单坡屋面对下方空间笼罩所形成的内向聚合感,也反转成为一种向前后立面及外部自然挤压的外扩感。当三个体量以长向首尾咬合,连续转向的屋顶似乎旋转起来,内院景观向建筑的渗透与室内向外围山林的离心力同时出现,一种强烈的室内外的交融感得以建立。
我们进一步将空间中下探的纵梁与相邻体量的平面轮廓进行对位关联。最终,每两个相邻体量中,较低的内部纵梁,都会一直延伸到较高体量的立面墙体中去;而另一条空间中的垂直梁,则与之前的纵梁结合,与立面围合形成空调设备的吊顶面。同时,这条梁也会延伸到较高体量的另一立面墙体中去。通过内部空间线性纵梁与面状立面墙体的形式整合,室内与室外被更加紧密地编织在一起。
开洞法
因为空间功能的通用,立面的开洞可谓非常自由,似乎可以随意塑造出极其复杂丰富的内外界面。但只求丰富其实不难,难的是丰富性背后各要素的意图指向以及它们之间关系的可读。同时我们也相信,越是以简单要素产生的丰富,越可以使体验者产生阅读体验时的愉悦感。
▲展开内立面(虚线表示竖向标高上的对位关系 )
所以,我们首先根据室内空间与外部地形及景观的关系,设定了立面门窗洞口的大致位置。之后,引入平面模数、归纳高差,将洞口的大小、位置、比例都逐一精确化。首先,从竖向上,三个体量间的地面高差被设定为0.9m,这既是固定家具如吧台餐岛的高度,也是窗台和栏杆的常规高度。空间中下探纵梁和设备吊顶的高度都被设定为3m,这样在相邻高低体量的交汇处,纵梁离地的高度就会随着台阶的上升,从3m逐渐变为2.1m,从而引发明显的身体互动感受。因此,我们以0.9m、2.1m和3m这三个尺寸为基准,制定了立面开洞在竖向上的五种规则:2.1m高或3m高的落地门窗洞,0.9m高的窗台、3m高的窗顶,从2.1m高的窗台一直到顶的高窗,以及从3m高的窗台一直到顶的高窗。随着台地高差的变化,各种地面、栏杆、窗台、洞顶、梁底、吊顶之间,将产生异常丰富的标高对应关系。其次,从平面上,我们设定1.5m的模数网格控制了所有的外部开洞与内部平面的边界,这使得体验者在内部移动过程中,常常可以意识到一系列相隔甚远的边界之间的对位关系。
对竖向标高的控制以及对平面的模数化对位,让三维空间中看似无规则散布的洞口等各种建筑要素统合在一张隐藏的秩序之网中,使体验者在内部不断意识到一些遥远但微妙的呼应,逐渐发现简单体量内暗含的新的视觉层次,增加了体验者对空间的阅读乐趣。
同时,对于这些洞口,我们将常规的开启通风功能剥离(利用上部的木椽之间电动开启通风扇进行通风),再通过对洞口固定玻璃构造的细化,弱化其表达,使其作为空气界面的玻璃的物质性几乎消失,室内与室外似乎完全贯通。虽然墙壁还有厚度,但由于窗洞边缘与吊顶体量的共同限定,剩余的墙体几乎都以抽象的白色”板片”出现。墙体之间、墙体与屋顶、地面之间,都形成了去构造化的”搭接”关系,这又进一步弱化了洞口本身的存在(洞口变成了墙体板片搭接之后的剩余)。而建筑外部简单明确的体积感,也从进入建筑内部的那一刻就突然消失了,内外的反差极大,使整个房子在内部显得异常轻透,真实的空间深度也变得模糊。
▲开洞与周边景观的关系 ©久舍营造
结构的显隐
整个建筑的主体采用钢框架结构形式,单跨单层的简单体量让几乎所有的梁柱都可以被立面内外的多层材料覆盖而隐藏在墙体之中。但每个空间内的上部,还有两根分别从长向和短向水平跨越房间的钢梁,短向为主梁,长向为次梁。他们宽度相仿,高度有明显差异。在设计中,我们选择将长短梁底部齐平连接,让吊顶的底面也与之齐平,并脱缝统一刷白;次梁整体在空间中暴露,而主梁的侧边以白色墙板覆盖,并与下挂的片墙及设备空间侧壁整合。这让主次梁的结构作用在视觉效果中产生反转:主梁消失在墙板和吊顶中,只露出底面的宽度,而纵向次梁成为了空间中的主导结构,这进一步将房间的尺度感受拉长变大。这类操作,并不是简单的受力或构造层面的考虑,而是将结构的物质与形式进一步抽象、精分,并重新编织进新的意义系统,统合着影响空间的综合效果。
▲掀顶爆炸分解图 ©久舍营造
在中间体量空中的纵梁下方,我们设置了一根超细的实心不锈钢柱,它不仅起到摇摆柱的作用,帮助托起整个室内空间中最长的一根梁,甚至也可以在台风时,起到拉住屋顶的作用。除了具体的结构作用,它还将上空的飞梁与体验者的肉身连结,将抽象的视觉感受转为手握柱身的触感。更重要的是它与立面唯一一块正方形固定窗扇的关系——当一位体验者面对方窗,依柱而立,他面对的是被树冠遮挡着的大海方向。
▲总平面图 ©久舍营造
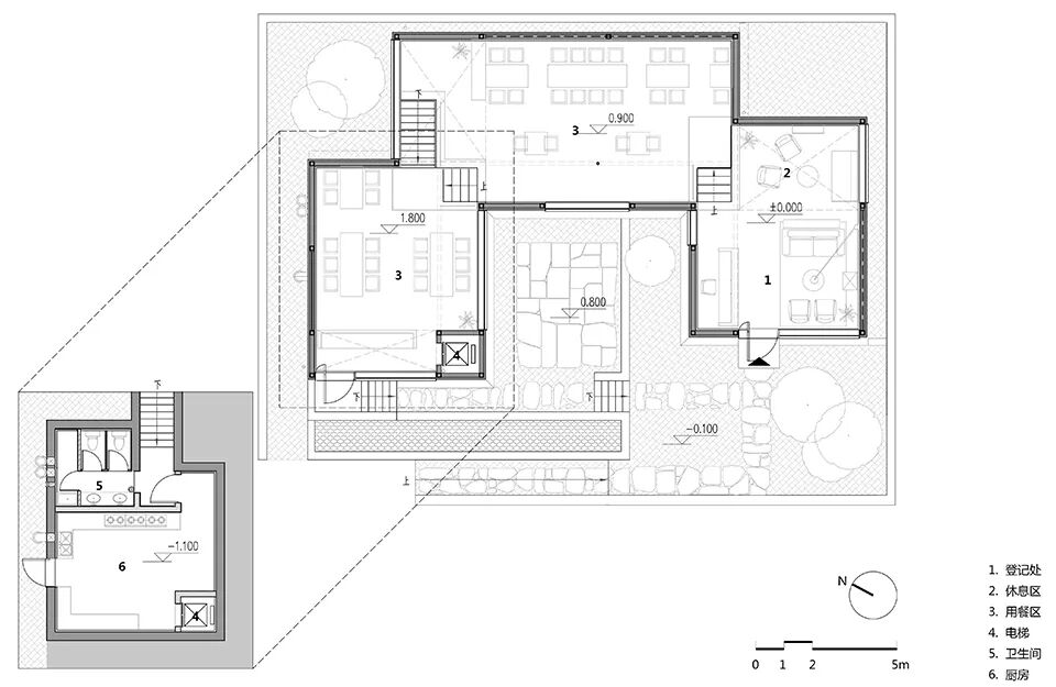
▲平面图 ©久舍营造
▲立面图 ©久舍营造
▲剖面图 ©久舍营造
▲典型墙身构造 ©久舍营造
END
公众号文章仅供内部交流,版权归原作者所有
如有部分权属不清导致的侵权请联系我们删除
本文来自微信公众号“青年建筑”(ID:i80arch)。大作社经授权转载,该文观点仅代表作者本人,大作社平台仅提供信息存储空间服务。










