关注我们,塑造更美好的世界
© 英蓝集团
杭州英蓝中心位于世界文化遗产京杭大运河畔,毗邻千年古刹香积寺,是一组富含当代艺术气息的现代综合体建筑群。
自项目启动之初,奥雅纳作为结构顾问,为英蓝中心提供办公塔楼、商业裙房概念方案和设计咨询服务,以及住宅楼方案设计咨询,为结构难题提供解决方案。
悬挑
向空中延伸
建筑设计师以极简主义风格将办公楼设计为七分塔结构,打造出树木向上延长的意象。在此意象之上,三个插入的“玻璃盒子”仿佛枝杈间的树屋,使人们可以突破塔楼的主体边界,走到常规高层建筑无法抵达的位置,体验仿佛悬停于半空中的漂浮瞬间。
© 英蓝集团
建筑上将这样“漂浮”的设计称为“悬挑”。“悬挑”设计打破了原有大体量建筑对给寺庙带来的压迫感,而在这个轻盈、通透的“惊喜”背后,是一场力的抗衡,体现出技术与美学的平衡。
© 英蓝集团
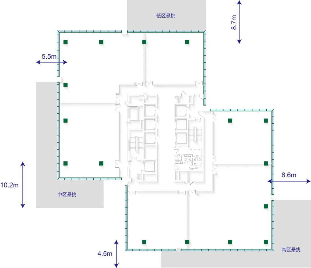
建筑为两栋对称的塔楼,建筑师在每栋塔楼的三个区域设置了不同大小的悬挑,向外延伸出不同的距离,最大的悬挑区域水平向外延伸超过10米,垂直高度8.8米。
结构大、结构重会影响建筑美观;结构轻、结构薄容易出现变形、挠度大,影响幕墙的安装,这样体量的悬挑本身就是极大的结构力学和美学挑战。在这样大的尺度基础上若使用传统桁架支撑,势必会产生斜梁,遮挡视野。
© Arup
▲悬挑结构平面示意图
桁架 Truss
由直杆组成的一般具有三角形单元的平面或空间结构,充分利用材料强度实现效果最大化的格构式承重结构,生活中常见的塔吊便是桁架结构
然而,项目本身希望构建一个开阔、纯粹的办公空间,做到悬挑向空中延伸,但不显露结构。最终,我们设计出特殊桁架与悬臂组合使用的方案,以外围宽柱为结构主导,利用其他次级柱支撑受力,从而创造出连框桁架(Vierendeel Truss),避免对角斜梁,最大程度开阔了建筑使用者的视野范围。
滑动查看更多
舒适
大跨度悬挑的减振设计
在高端写字楼项目的设计中,办公空间的舒适度至关重要。本项目低、中、高三个悬挑区域的跨度较大,我们针对塔楼悬挑区的楼板动力特性和舒适度进行了验算检查。
© 英蓝集团
悬挑层需要注意的另一个重要问题则是振动,良好的稳定性对空间使用者的舒适感非常重要。由于项目的悬挑的外延伸幅度很长,仿佛高空跳板,会因使用者行走而导致共振,影响舒适性。
滑动查看更多
奥雅纳团队秉持一体化设计理念,在实现建筑外观与周边环境完美融合的同时,亦将使用者体验放在首位。结构设计过程中,我们倾听客户诉求,为提供优质使用体验,与各方深入配合,不断调整优化方案。
© 英蓝集团
经过团队一系列周密细致的分析和设计,我们综合考虑结构设计和外立面材料带来的影响,找到结构薄厚与重量的均衡值,实现悬挑结构美观性的同时,提升塔楼减振效果。最终数据证明,塔楼的振频最大值仅为0.06米/秒/平方米,将不影响用户舒适度,成功解决了悬挑的震颤问题。
此外,两座办公塔楼的特殊造型,风力可能会给建筑的某些角落,例如露台、屋顶等区域,带来意想不到的影响。为此,我们开展风洞实验,通过结构设计控制风环境,避免了因风力影响而使办公塔楼使用者产生不舒适的体验。
Andrew Luong 梁金桐
项目负责人,奥雅纳董事
一个优质项目的建成,绝非一方之力即可促成,需结合各方优势,共同成就。英蓝的专业团队知识渊博、正确决策,为项目搭建了高效沟通的平台,促进各方创造协同增效,发挥最大价值。奥雅纳亦通过英蓝项目,累积了一段非常充实且富有成效的经历。
相关阅读
A+项目
苏河新地标结构探秘:天安·千树一期启幕
A+项目
全新地标,“开挂”之作:大疆天空之城
A+项目
杭州天目里:理想中的青苹果,长成一片精致又极简的江南客厅
本文来自微信公众号“Arup奥雅纳”(ID:ArupinChina)。大作社经授权转载,该文观点仅代表作者本人,大作社平台仅提供信息存储空间服务。










