NONE SPACE
Yongin-si, South Korea
项目的初衷是创造一种永恒的价值。在这个位于龙仁市郊区的光雾山附近开辟出一间咖啡馆,与世隔绝的位置条件和 "无外卖、无插头、无Wi-Fi "的条件可能对顾客带来一些不便。然而,设计师旨在鼓励顾客享受自然时光,暂时远离数字,在大自然中完全 "休息 "和 "放松"。
©Kiwoong Hong
©Kiwoong Hong
©Kiwoong Hong
©Kiwoong Hong
©Kiwoong Hong
©Kiwoong Hong
©Kiwoong Hong
©Kiwoong Hong
©Kiwoong Hong
©Kiwoong Hong
©Kiwoong Hong
©Kiwoong Hong
©Kiwoong Hong
©Kiwoong Hong
©Kiwoong Hong
©Kiwoong Hong
©Kiwoong Hong
©Kiwoong Hong
©Kiwoong Hong
©Kiwoong Hong
©Kiwoong Hong
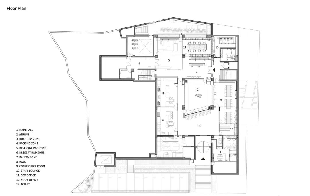
建筑由从地下一层到二层的空间组成。Bumchun Group的办公室、烘焙室、烘烤室和实验室都位于地下室,而一楼和二楼则分为两个品牌:Time to Bakery和Time to Bistro。'Time to Bakery'是一个与糖果和面包有关的烘焙品牌。在这些空间里有一个独立的咖啡师区域,供人们体验手冲咖啡。'Time to Bistro'是一个通过预订的私人经营品牌,位于二楼。与'Time to Bakery'不同,人们可以在一个单独的柜台点餐,享受早午餐。
©Kiwoong Hong
©Kiwoong Hong
©Kiwoong Hong
©Kiwoong Hong
▼ 项目图纸
©NONE SPACE
©NONE SPACE
©NONE SPACE
项目类别:餐饮空间
建成时间:2022
建筑面积:1493㎡
室内设计:NONE SPACE
项目地址:韩国,龙仁市
项目业主:Bumchun Group
武汉高合旗舰体验中心 — 未来宇宙穿越之径|INGROUP
奥地利采尔湖之家 — 将复杂丢弃在阿尔卑斯山|Steiner Architecture
本文来自微信公众号“OffsetDesign设计偏移”(ID:offsetdesign)。大作社经授权转载,该文观点仅代表作者本人,大作社平台仅提供信息存储空间服务。










