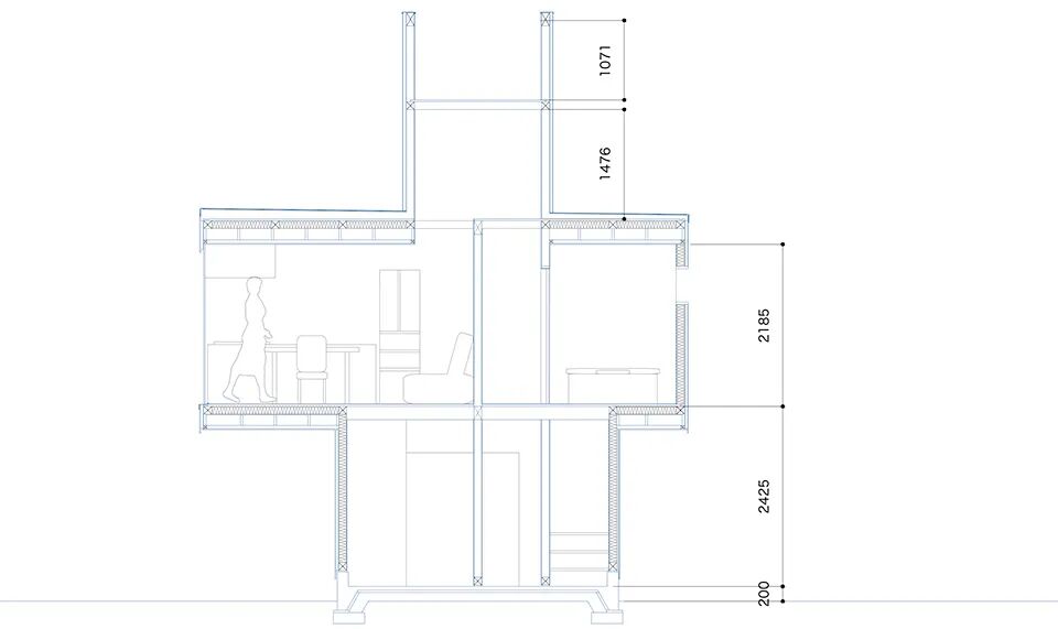
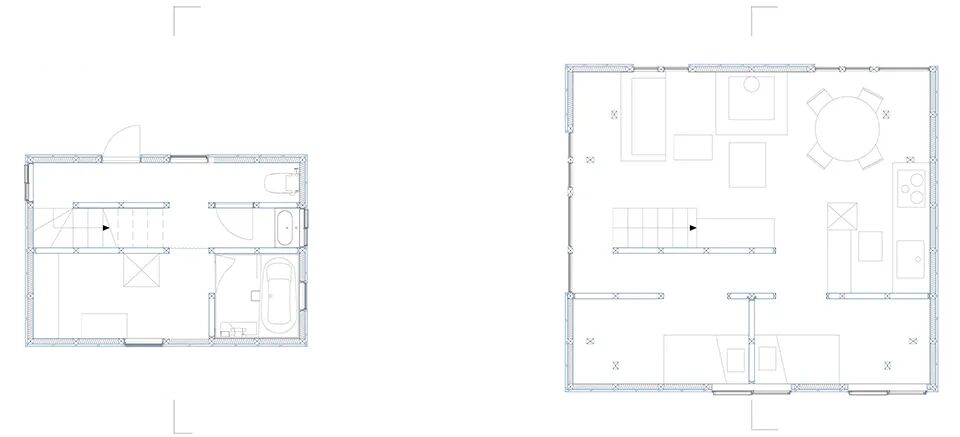
作品集2024-01-11 G住宅 G住宅 建筑类型:住宅 项目面积:66 m2 设计公司:kurosawa kawara-ten Architect 项目位置:千叶,日本 项目时间:2022 项目坐落于日本千叶郊区独立住宅小区陡峭的边缘地带,是kurosawa kawara-ten事务所为一对老夫妇设计的周末别墅住宅。 场地中的树木与植限制了住宅的建造范围,因此设计团队采用悬臂结构打造二层体量大于底层体量的建筑形式,卫生间浴室等用水设备空间被规划在紧凑的底部楼层中,客厅等生活起居空间则位于二层。 建筑室内 平面图 立面图 剖面图 编辑 / 筱十九 审稿 / 筱十九 本文来自微信公众号“建筑手记”(ID:DongXiXiaoYuanStudio)。大作社经授权转载,该文观点仅代表作者本人,大作社平台仅提供信息存储空间服务。 TAGS: 住宅建筑空间设计项目 相关文章Kleoniki Andr…这是大王Day.281获奖作品《2020最佳图书…精选头像|搞怪来袭!安东尼奥·布埃诺 作品配色清新梦幻的场景插画,充…美国Jennifer Mc…【小鹏设计】设计小改/动力…【首发】地点空间丨打破空间…谢商家不坑之恩!只骗有钱人…