亲历一座建筑从设计到落成,
需要数年。
见证一个城市活力区从规划蓝图跃然纸上,
需要十年或者更久。
星扬西岸中心作为引领天际线的地标建筑,其规划与整体开发是和谐共生、无缝链接的。它为上海西岸提供了大体量的高品质的办公空间,也面向城市、社区提供了丰富的活力开放空间。
Rethinking the urban context
上海星扬西岸中心 © Gensler
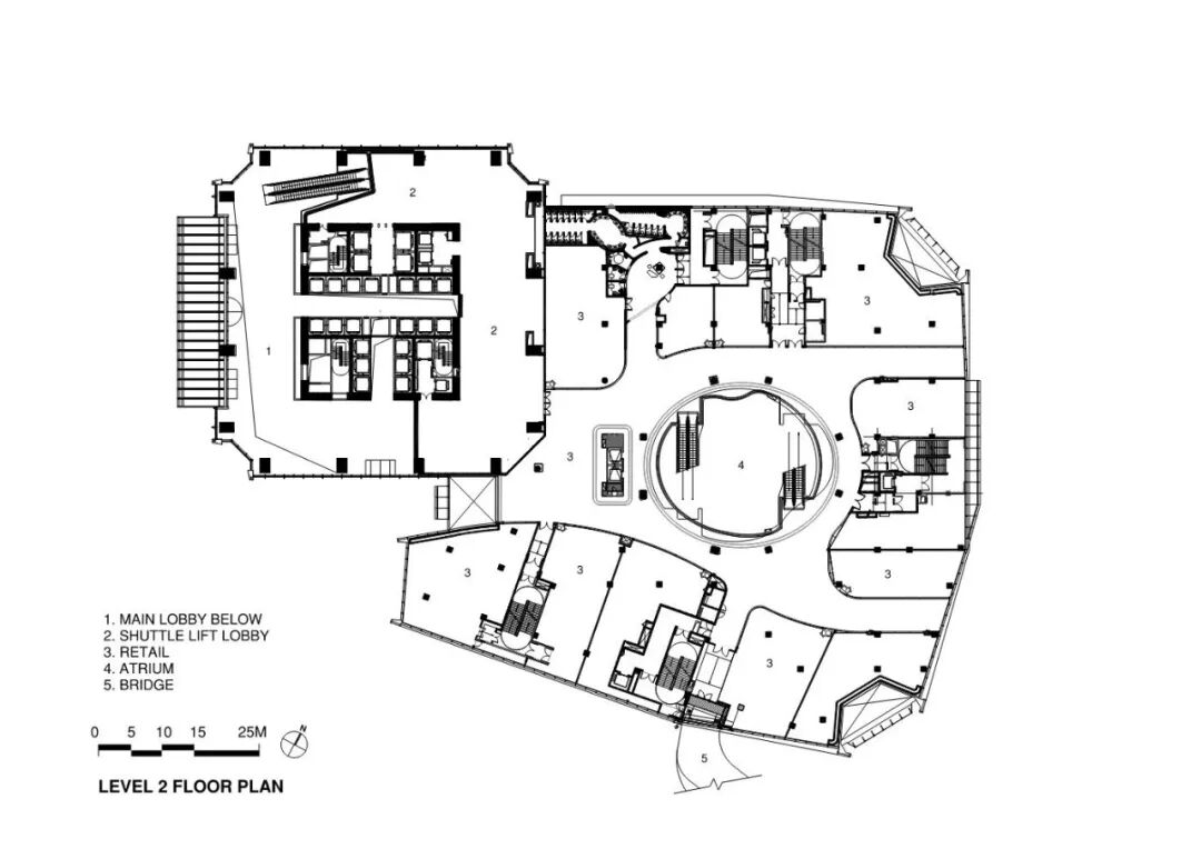
在对城市空间的思考上,设计团队与业主恒基兆业地产集团经过反复的研究,在不改变整体规划指标的前提下,将初始规划中的两栋塔楼体量合二为一,集中总体布局,通过整合零散的公共绿化空间,释放更多面向城市、面向社区的公共开放空间。
平面布局将商业裙房的位置调整至更靠近滨江的基地东侧,形成与周边低密度建筑的有机过渡,并减少塔楼体量对主要街道视角的视觉压力。通过拓展裙房沿街面,利用屋顶退台、多层次景观等建筑设计手法,丰富城市界面,打造立体的滨水空间,同时增加项目的商业价值。
Multi-layer connectivity
场地要素连接分析© Gensler
Function and form in balance
上海星扬西岸中心 © Gensler
幕墙设计细节详图 Courtesy of Gensler
剖面图 Courtesy of Gensler
主塔楼采用高效的垂直交通体系,用户首先经由双轿厢穿梭电梯从底层到达空中大堂,再转换区间电梯,有效的节约了用户的电梯等候时间。
无结构柱设计,最大化景观视野 © Gensler
-
利用肌理丰富的竖向线条提升遮阳效果,并通过通透的立面设计增强自然采光;
-
由高效的中空LOW-E节能玻璃、窗间保温材料组成的热工性能优异的外围护系统;
-
智能的照明系统;
-
高效节能并具能量回收的空调系统和电梯系统;
-
雨水回收以及太阳能热水的利用;
-
标准化设计有效降低废料及建造成本。
上海星扬西岸中心夜景 ©Kingkay Architectural
以上的各种措施最终实现了建筑设计节能率达到65%,可再利用再循环建筑材料的用量也达到34%。通过建筑材料的选择和运输、施工建造过程的优化,达到了全生命周期碳减排的目标。星扬西岸中心目前已经获得LEED金级预认证,以及中国绿建三星认证。
本文来自微信公众号“一方观筑”(ID:Archfocus)。大作社经授权转载,该文观点仅代表作者本人,大作社平台仅提供信息存储空间服务。










