项目名称丨广东梅州刘家新中式别墅
项目位置丨广东梅州
建筑尺寸丨14.76*18.90m
占地面积丨193.22㎡
建筑面积丨359.16㎡
建筑风格丨新中式
结构形式丨砖混结构
——
有机会回乡建一栋新中式别墅,自己居住或给父母养老,尽情拥享美。
建筑效果图
东南侧鸟瞰图
该项目位于广东梅州,主体为二层新中式别墅。场地的南侧为道路,东侧、西侧和北侧均为邻居。
南侧鸟瞰图
西南侧鸟瞰图
整体建筑风格比较素雅,主体采用白色质感漆喷绘,门窗选用咖色铝包木断桥铝,形成颜色深浅对比,彼此衬托。造型简洁大气,凹凸有致,不失文化传承又不失呆板。
二层的南侧退让出露台空间,不仅解决了功能使用问题,也使得建筑群体参差错落。素洁的墙面与木质家具给人营造出平和、禅意的居住氛围,让人的心也随之安静了下来。
入户人视图
门头满满的中式元素,整栋住宅尽显大气典雅。
庭院局部人视图
推门入户,小园香径独徘徊的诗意,惬意的儒雅气韵扑面而来。庭院既有对传统风格的延续,又加入了现代的布局和审美。
旷阔的庭院景观布置,提升了居住品质。
庭院局部人视图
生活其中,处处洋溢着生命的味道,充裕的户外活动空间为老年的生活提供了无限可能,下下棋、喝喝茶、跳跳舞...
平面详图
一层平面图
建筑主入口设置玄关,提供换鞋和储物空间,东北侧亲子房,功能上除了现在基本的居住需求,还需要考虑小孩在小时候方便照顾,后期空间会根据不同阶段的生活模式做调整。
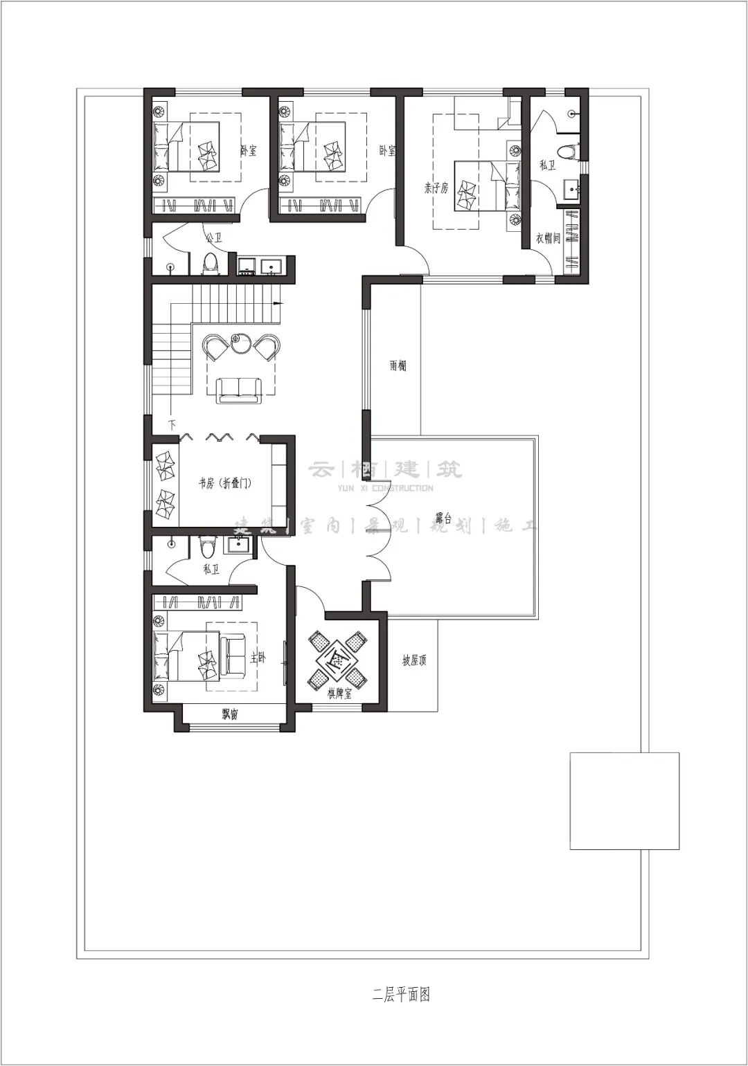
二层平面图
总共设计了8间卧室,满足业主一家三代人的居住需求。
愿我们每个人心有所属,奋斗有标
本文来自微信公众号“云栖建筑”(ID:yunxijianzhu)。大作社经授权转载,该文观点仅代表作者本人,大作社平台仅提供信息存储空间服务。










