△图片来源于网络
#01
概念:都市度假与咖啡
#02
场景:微妙的空间对话
#03
感知:时间经验的融合
#04
日常:自我个性的彰显
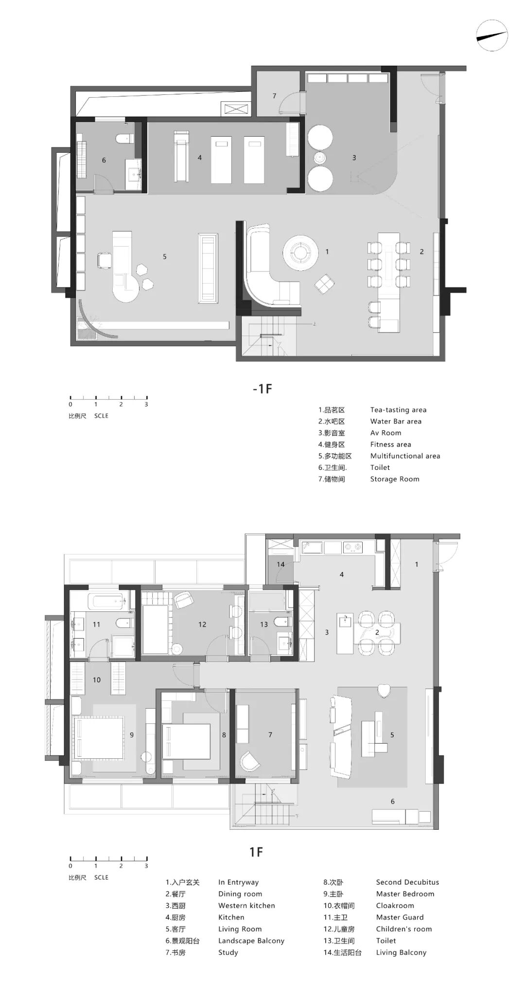
世纪缦云要构建的生活,是一种独属于当代年轻人的生活,一种游移着自由探索的生活。
精装修交付标准样板间内,以中岛台为过渡的开放式客餐厅,从视觉上扩展了空间的通透性;客厅外侧,户外阳台的内化处理,提升空间利用率的同时,更进一步加深了内部空间自由延伸状态。
△书房
以“缦”之宁静,在老城区内构建一处隐逸的归所。所有的日常在这里唾手可得,往内是安静独享的自我天地,往外是喧嚣热闹的市井烟火日常,指引着城市新的生活风向。
共生形态
彭 征
共生形态(C&C DESIGN)创始人、设计总监
广州共生形态工程设计有限公司成立于2005年,公司的核心团队由知名设计师彭征先生以及一百多名优秀职业设计师组成,设计业务涵盖酒店、商业、地产、办公等领域,为客户提供建筑、室内以及软装陈设的一体化设计服务。“共生形态”屡获国际设计大奖,包括2017年德国iF设计(室内建筑类别)唯一金质奖、连续四年蝉联美国室内设计杂志Best of Year Awards金奖、德国红点设计大奖、香港亚太室内设计金奖。
“共生形态”是一个正在成长和壮大中的设计团队,我们的名字就决定了我们的包容性,同时,我们也感兴趣“共生形态”这一词组的所有内涵。在当今发展中的中国,大规模、巨量、高速的建设状态鼓励社会性的设计实践,对于设计师来说,拥有的机会不但是设计一件作品去影响和改变生活,更是致力于当代中国面貌的成形过程,这是对“共生形态”设计团队,对中国的类似工作的最终挑战。
共生形态丨山水半岛庄园岭南美学大宅
共生形态 | 广州合生黄埔中央城售楼处,“时间的剪影”
清溪茶境:保利清溪堂悦花园营销中心
都市游廊:时代中国 · 时代天逸销售中心
原石咖啡馆:画王·大理石2021中国厦门国际石材展览会展厅
- END -
精彩回顾
▲季裕棠 / 如何理解对家庭生活以及纯粹住宅精神思考?(30分钟)
▲全球TOP3酒店设计公司:C C D掌门人郑忠谈顶级设计 (16分钟)
▲琚 宾 解析东西小院 / 淡然无极而众美从之(7分钟)
本文来自微信公众号“云想设计美学”(ID:Yunxiang_Design)。大作社经授权转载,该文观点仅代表作者本人,大作社平台仅提供信息存储空间服务。










