真实的东西只能通过模拟来捕捉它的本质。”
——摄影师Adriana Duque
超现实幻想概念图©Kristen McMenamy
我们通过积极的知识,认识到现在的主流没有通过图像和文化的历史刻板印象将其置于过去。在当代艺术的审美演变中,越来越年轻的社会经验阶层更注重通过自己来感知生活。
我们看出了绘画中的沉默,电影中的光线,戏剧的直接性和图像的肤浅,正视时代前行的方向,对生活的方式融入了自己更多元化的思考。
设计师从深掘当代社会新锐的生活方式的角度出发,创造出埋藏在人们心中的幻想境地,这已不单只是空间的研究,风格的变化,而是对于现代生活姿态的极致表达。
童话是社会的镜子
在现实中构建场景,通过相机拍摄出真实,随后在电脑中加入虚构,艺术摄影作品中充满了高级西方文化与社会反乌托邦之间的相遇与对比。
宽敞的客厅不做琐碎的加法即能体现纯粹的结构之美。
阳光从大型采光窗不经意间洒落屋内各个角落,虚实曲折,明暗交替之间丰富了空间层次。
深色的皮质坐具与靠枕体现了别具一格的品位,深浅颜色与材质的碰撞,打造出空间的力度与高级感。
仍未开垦的思想和情感
云卷云舒的灰色墙纸带给居者高级的艺术视觉体验,东方的雅致澄净与西方的时尚前卫在此糅合出平衡而独特的亲和感与活力感。
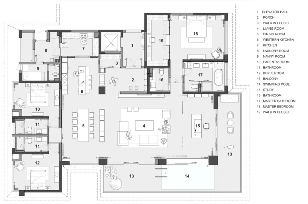
图纸呈现
平面图
效果图
公司介绍
G-ART集艾设计 / 丁璐锋团队
集艾是一家国际前沿的室内设计公司,致力于从事顶级商业地产、酒店及度假村、高端会所、超高层办公楼等高级定制化设计服务。集艾的设计项目遍布全球,其绿地集团美国西海岸最大空中展厅设计备受政府和国际媒体关注;由集艾设计的中国第一家THE CHEDI安岚酒店,已于2019年1月开幕。
与众多知名上市地产公司和国际酒店管理集团合作,尤其与绿地、万科、中海、绿城、世茂等长期稳定的战略合作。"洞悉市场,主导客户,定制超乎预期的解决方案。"是集艾一贯的传统宗旨,屡获殊荣,迅速成为当之无愧的业界翘楚。
- END -
精彩回顾
▲季裕棠 / 如何理解对家庭生活以及纯粹住宅精神思考?(30分钟)
▲全球TOP3酒店设计公司:C C D掌门人郑忠谈顶级设计 (16分钟)
▲琚 宾 解析东西小院 / 淡然无极而众美从之(7分钟)
本文来自微信公众号“云想设计美学”(ID:Yunxiang_Design)。大作社经授权转载,该文观点仅代表作者本人,大作社平台仅提供信息存储空间服务。










