Introduction
引言
/
“松弛感,其实是一种生活态度。
花足够的时间让家在理性与感性中平衡
把生活过成诗”
Overviews
概述
/
艺术赋予生命并体现生命,
追随你的本质,
展示真实的自我
Structure
结构
/
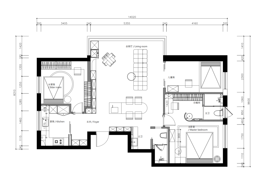
· 原始结构图
· 户型优化平面图
原本就没有原始墙的户型,打通阳台纳入客餐厅,大横厅手到擒来,所有的巧思都用来放大空间,从玄关鞋柜隐形,到沙发背后儿童房的玻璃折叠门等等,扩展空间与空间的互相流通性,让光线辅助自然出入每个区域。
所有卧室空间都做玻璃和隔断元素,让空间透光、透气不压抑。有趣的互相渗透空间布局,把体块感与高级感呈现质感与写意。
同时,积极探索再此项目中不受空间定义,为主人提供不断变化,无限开放的独特的空间体验,居者可以随心所欲的变换空间的功能与效果,亦可称其为“可能空间”
/ 100平也要大横厅 :客厅+餐厅+阳台
把阳台纳入客厅区域,落地窗外的阳光无遮挡,直接横冲直撞入厅。阳台提前走好水路,嵌入洗衣机烘干机+水槽做个小型家政区。
/ 大面积收纳+超大投影荧幕,成年人全都要
背景墙定制深咖悬浮柜+落地柜,上上下下全是收纳!去掉电视,吊顶留出凹槽装置投影幕布,大屏看起来才爽!
/ 主卧“足不出室”,衣帽间+书房+卫生间 三合一
主卧功能应有尽有“衣帽间+电竞房+影音室+主卫”全部包圆,为了高度集约空间,采用了咬合方式完美演绎“更衣间与卫生间干区”的空间共享。
Functional space
功能空间
/
Scene 1.
氛围感似有似无的跳跃
# 客厅 Living Room
· 电视背景墙视角
· 沙发背景墙视角
· 就餐时刻
背景墙设计轻盈的悬浮柜,去掉固定的电视,吊顶预留隐形凹槽,后期加入投影幕布,随时收放的大屏!收纳观影两不误,墙面加入弧形转角柔化棱角,阳台家政区设计水池,更方便清洗。
Scene 2.
入户一镜到底,拯救小户型
# 餐厅 Dining Room
· 一体空间场景
· 一体空间餐厅场景
餐厅也搬进客厅~岛台氛围的加持,餐桌做不固定设置,桌角也做圆弧形处理,移出可以容纳8人就餐,沙发往阳台挪挪也不拥挤,餐岛一体的设计更方便取放菜品,平时作为办公桌也轻松应对。
# 厨房 Kitchen
· 料理场景
· 玄关场景
厨房中规中矩的布局让料理掌厨人更加安心,轻松开启一天的“拿-洗-切-炒”,料理的逻辑不可小觑,还有一个小心机在于,橱柜吊柜不做满吊,空间的透气感不言而喻。
Scene 3.
少年的梦在时光萌芽
# 多功能房 Children Bedroom
· 儿童房学习场景
· 儿童房休憩场景
利用无原始强的先天优势,配合百看不厌的折叠门打造便捷易用、美观度满点的可开可闭合的儿童房空间,空间感扩大,释放每平方的面积,这个区域也不做过于童真的氛围设计,及时成年后,也可以通过墙面饰品、挂画、书籍的布置随意切换。
关上折叠门,就是沉浸式学习空间,打开折叠门,交互感自然轻松,网课时间都拿捏住。
Scene 4.
打破常规,住出大户型的时髦感
# 主卧室 Master Bedroom
· 主卧场景
· 主卧场景
无主灯设计+悬浮吊顶简洁利落,屋主特别要求的隔夜衣收纳,设计师采用壁挂架+悬浮梳妆台,视觉上更加轻盈,拿取衣物也更方便,越住越住出“烟火气”,乱而有序是最好的状态。
弧形很自然消化较低的梁位,悬浮吊顶边缘极薄边+灯带提升格调,胡桃色的床榻背景也和全屋的氛围呼应,沉稳与舒适糅合,摩卡色的主卧好像更容易入眠。
# 主卧衣帽间 Closet
· 书房+衣帽间场景
衣帽间定制满墙柜收纳衣物,中部镂空做开放格,延伸悬浮书桌,办公区+衣帽间的多功能区域就诞生啦!墙面加入洞洞板,通过放置不同的书籍、不同的饰物都将打造不同的氛围。
# 主卫 Toilet
· 主卫场景
与主卫加入长虹玻璃,干区由弧形墙做隔断集约空间,弧形转角加入独立洗手台,再利用干湿分离,加入玻璃推拉门分隔,这样能够改善书房、衣帽间的采光,小户型也可以感受弧形的浪漫,温馨又浓郁。
#次卧 Bedroom
· 安寝场景
# 客卫 Toilet
理想中的宅家度假,仿佛每一帧都是慢慢的电影感,大到弧形的电视背景墙、不规则沙发,小到从悬浮书桌、电子壁炉、简洁高级的软装、极简空调风口,与我对话的是一切让我平静的设计美学...
本文来自微信公众号“筑物设计”(ID:zhuwusheji)。大作社经授权转载,该文观点仅代表作者本人,大作社平台仅提供信息存储空间服务。










