这些年来,我们奔赴于全国各地优秀托育机构、幼儿园、学校,在和不同地域的甲方进行接触沟通时,他们对自己的将来园所做出很多设想和期望,给我们增添了意想不到的想象。由于我们设计的空间环境主要服务于特殊的群体,因此不仅要对孩子们的生理特点作出详细了解,更要深谙孩子的心里特点。
生活中,作为人父的我会有意识地和孩子或一起出游玩耍,或只是蜷窝于沙发和她很放松地聊聊天,从自己的孩子的身上窥见孩子的心理变化,幻想中的世界。他们是那样的天真无邪而富于变化,强烈的好奇心使得他们不甘于安静地静坐沉默的,等等,这些都成为我们在创作时所要考虑的元素。另一个服务的群体是家长。孩子入园,家长必须入学!因此我们在创作时还要考虑家长的感受,充分体现人性化。接送孩子时的休憩空间是否舒适温馨?参加亲子活动等一些公共活动时的空间是否宽敞、个性独特?…
UDL: 你认为一名设计师应该具有的最大潜质是什么?
张晓光:我觉得应该是要真正去热爱生活,用“心”去生活。只有美好的生活,才能为你的创作带来灵感,人与环境的共生!什么所谓的“天赋”之类的词语,我不太认同。在社会中,人人都是设计师,有时候只是因为你的职业选择让你从表面上成为了设计师而已。
项目地处安徽省阜阳市阜南县,属内陆开发较早地区,位于安徽省西北部,淮河上中游结合部北岸。阜南城区是阜阳距离市区最近的县城,城北新区于2010年开始建设,阜南是三国名将吕蒙、 解放军著名将领聂鹤亭将军的故乡。
安徽省地图 ©GRK张晓光建筑
阜南县素有“名优特产县”、“天然资源库”之称,是全国粮食 生产大县、中国柳编之乡、全国唯一的农业(林业)循环经济示 范试点县,安徽省林业十强县、文化先进县。也是中国承接产业 转移投资环境十佳县。
阜南交通流线 ©GRK张晓光建筑
UDL: 有没有过失败的设计经历,失败后你是怎么走出来的?
张晓光: 这个当然有!社会发展之快,设计这个行业人才辈出,竞争性比较激烈,之所以失败,还是因为自身学习不够。每一次的失败,我都会跟同事说‘’这都是上天对我们的一种提醒、一种学习和经验的积累的机会,这种机会非常难得”。学习是一直的事情,要活到老学到老。学习没有什么捷径和不费力的窍门,就是要懂得珍惜时间、勤奋刻苦。饭可以一日不吃,觉可以一夜不睡,但不能不学习。
项目建于阜南城区,新村路以北,三塔路以东,安建淮畔世家小区内。随着当地人口的急剧增长和双职工家庭越来越多,“0-3岁婴幼儿谁来照看”成为摆在新晋父母、准父母面前的一大难题,一所全新的综合性国际托育中心因此应运而生。
项目投标现场 ©GRK张晓光建筑
汇报方案现场 ©GRK张晓光建筑
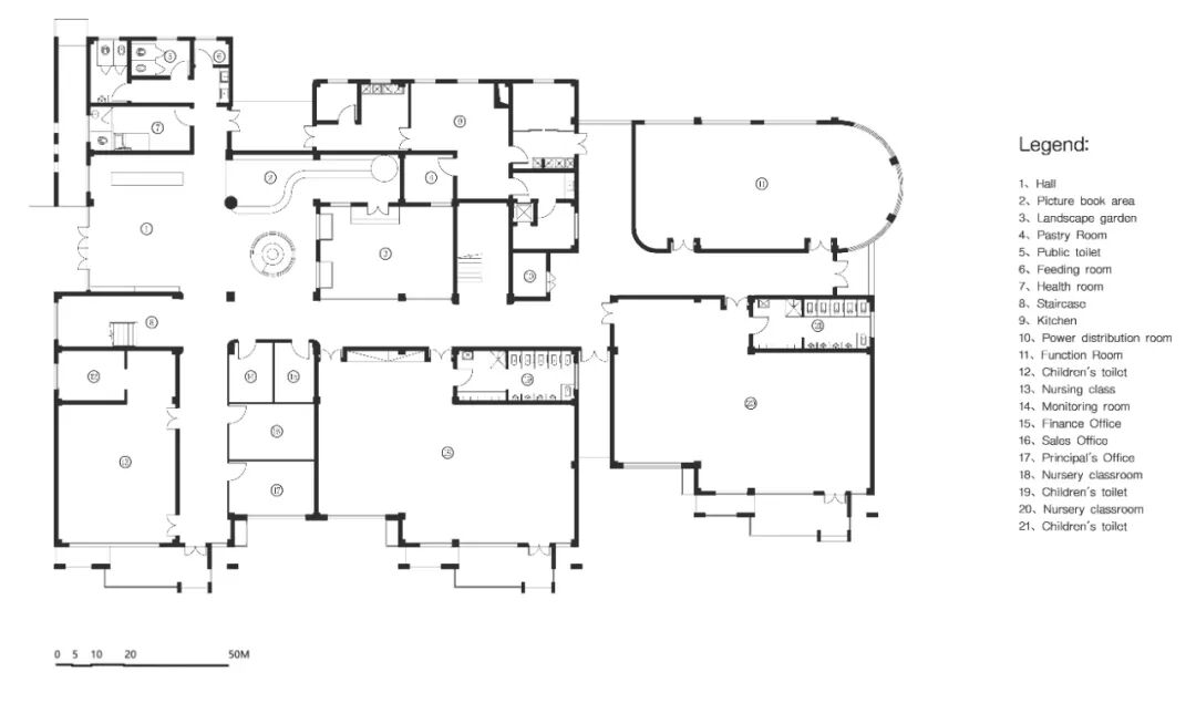
该建筑总层数为3层,原先性质为幼儿园,改造完成是一所面向0-3岁儿童的省级示范托育中心, 其中一层和二层区域为托育类的空间,三层为早教中心。
建筑西面 ©GRK张晓光建筑
建筑南面 ©GRK张晓光建筑
施工现场 ©GRK张晓光建筑
施工现场 ©GRK张晓光建筑
施工现场 ©GRK张晓光建筑
孩子进入园内,就开始与托育园建立了链接。面对父母的依依不舍、新而陌生环境时,孩子会对父母产生依恋,可能会露出几颗牙齿微笑或毫不妥协地大哭。父母也会产生那种离别时的压力。
为了让孩子有一个良好的入园适应,我们结合了国内外知名教育学者对大脑神经科学和依恋关系研究,以及诸多知名托育园教育家的大量实践成果,整个空间表达紧紧围绕“以建立爱的链接、父母与孩子之间情感的交接、孩子心理、适应性、认知情况”为重要核心,采用层层递进的手法,用亲切的姿态和合理的形体表达,为孩子们营造出一个充满亲切、温暖、探索与开心的天堂。
大厅 ©GRK张晓光建筑
这样孩子入园后能尽快安静下来,没有感受到离别时的压力和陌生紧张感,大厅的空间我们做了延伸,开放通透的大厅在满足基本功能需求的同时,也为孩子提供了一个舒适愉快的生活氛围。
绘本区 ©GRK张晓光建筑
大厅的背后是一个通往室外的一个精致景观花园,开放的视线,让整个空间室内外连在一起,模糊了室内外边界,孩子们可以自主尝试探索新环境,达到移步异景的效果;在那里,孩子们可以与自然亲密拥抱,玩耍时有自然中的花,草,树木,昆虫相伴。当孩子细节敏感期到来时细心观察的老师会带领孩子进入中庭花园,趴在地上观察土地上的昆虫,心智则又在环境中得到了发展,智慧便在此时产生。忙碌的大人常会忽略周边环境中的细小事物,但是孩子却常能捕捉到各种自然小奥秘。
楼梯 ©GRK张晓光建筑
创造自然,放松的环境,保证孩子得到均等发展的机会,受到平等的对待。因为,在自然、放松的状态下,孩子很容易发现生活的法则和宇宙的秘密,在行为中形成自律。
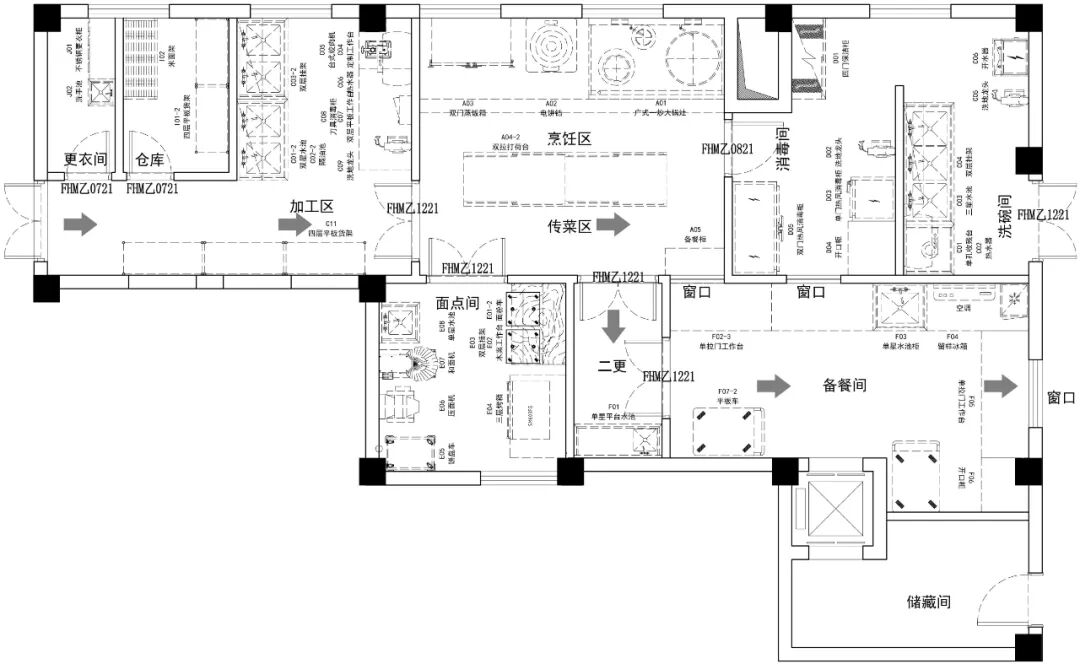
厨房区域功能分区明确,流线动态合理,规划分布达到省级A级食堂标准。
厨房布局©GRK张晓光建筑
UDL:你们对项目的选择上有什么考量?(赚钱?出名?出作品?)
内部公共区域的墙角进行了圆弧处理,部分墙体采用自由曲线的表达手法,突出其好奇心,激发孩子探索的欲望,整个空间我们采用了白色系列,象征着孩子纯洁无垢的心灵,同时为老师和孩子提供了更广阔的发挥和想象空间。
走廊©GRK张晓光建筑
墙面的挖空区域的玻璃窗可以清楚的看到活动室区域空间,在保证隔音的基础上也增加了空间的通透感,内部的空间处理也使得动线更加丰富多姿。
多功能厅©GRK张晓光建筑
白色包罗万象,白色无限可能,白色激发想象力… …老师后期可以在白色空间里摆放教学所需的所有五颜六色的教具。根据不同学龄段的孩子进行有准备的教学摆设,为持续发展提供更多的可能性,价值感油然而生。
托班活动室©GRK张晓光建筑
孩子也可以在这样整洁有序、精心准备的空间里心智得到了充分发展,在有序的行为中发现自己的天赋,从而有余力开展天马行空的想象。超我得以实现。
备餐区©GRK张晓光建筑
3F plan ©GRK张晓光建筑
UDL:你是如何保持对设计的热情的?
张晓光:我对自身的要求就是:每一次的创作都必须要有一个“心”的突破!正如我们公司的信念:“不断创新、不断超越”是我们设计“永远的根”。创新过后落地,感觉到了设计的真正价值!人创造建筑,建筑塑造人,建筑是人为的艺术,是我们设计师认识世界后对于世界的重塑!建筑师也是一名心灵按摩师,热情和坚定的心态也是源于自身责任的重大。
高校设计课项目赏析:
1. 本科作品
北京服装学院环境设计专业2017级设计课:13步走向媒体建造
北京林业大学2019级梁希班课程作品展丨鼓楼外大街城市广场设计+菜市场改造
东南大学建筑系本科2018级课程设计展丨西家大塘社区美术馆设计
上海交大设计学院建筑学系2019级《建筑设计及原理 (1-1)》课程评图及学生作品展
上海交通大学设计学院建筑学系2017级课程设计:循环综合城市
天津大学城乡规划学2019级课程设计:社区中心组群规划与建筑设计
浙江大学建筑学系2018级课程设计作业 | 逆向迭代——五联西苑的有机更新
RCA英国皇家艺术学院建筑系2021WIP(Work In Progress)展
UCL Bartlett 优秀建筑作品 | 以色列城市构想-通过水资源管理促进和平
UCL Bartlett 优秀作品 | 非考古学手册The Manual to Un-Archaeology
UCL Bartlett 优秀建筑作品 | Kindness is Farewell? 告别是一种善意吗?
UCL 优秀建筑作品|欧盟:幻想曲的花园(对于欧盟的乌托邦式构想)
多伦多大学建筑作品集|Chroma City 色彩城市(用色彩重新诠释深圳城中村)
AA建筑作品集 | 城市的权利 Right to the city
AA 建筑作品集 | Destination City 目的地城市
AA DRL 建筑作品赏析 | CHRYSALIS 蛹(创业和发展科技公司的孵化器)
AA DRL优秀作品赏析 | BOX OFFICE 一种新的生活-工作-娱乐空间
AA RIBA Part II 项目分享-以韧性之名:建筑版“人民的名义”
AA建筑项目分享 | 具有地质意识的建筑设计方案到底好不好?
AA建筑联盟学院项目 | 享乐共生森林,挑战社交媒体充斥下的设计—AA建筑联盟学院项目分享
曼彻斯特建筑学院作品集|非永久性城市主义:可持续发展的可降解生物设计
NUS 精选建筑作品集 | de-EnBlogue 针对新加坡老旧社区改造的项目策略
NUS建筑作品集|能源革命(缓解全球气候变暖的建筑策略)The Energy Revolution
精选建筑作品集|Haikyo city 如何拯救城市废墟(城市复兴策略)
精选建筑作品集|“kikai Shien Robotto”生态和能源可再生主题公园
精选建筑作品集|生产环境:“鹿特丹自给自足”(城市农业综合体)
精选建筑作品集 | 为了农业土地更好的未来(构建农业景观与农业定居点)
精选建筑作品集 | 浮力蓝图(水上房屋的搭建)BUOYANT BLUEPRINT
精选建筑作品集 | 废墟化身-为英国的锈带创造一个新的工业身份
精选建筑作品集|The Net Blvd 网络大道(数字时代如何构建元宇宙)
精选建筑作品集 | RIBA银奖作品解析 - 云合作社 The Cloud Cooperative
密歇根大学优秀建筑作品 | 思辨空间 Speculative Spaces
香港大学建筑作品集 | 城市档案:重新思考设计过程中的时间和风化
UCL Bartlett 精选建筑作品 | Sutro Performance
UCL优秀建筑作品集|怀念春天-重建被气候变化侵蚀的日本传统
UCL MLA景观作品集 | 当灾难来临时-如何应对海平面上升?
UCL建筑作品集|泡沫小镇自动化房屋 Foam Town Automated Housing
UCL优秀建筑作品集|怀念春天-重建被气候变化侵蚀的日本传统
UCL精选作品集 | 旅行遗产 - 重塑都灵市的繁华 Tour-in Heritage
UCL Bartlett 优秀作品|Wetland border 湿地边境
谢菲建筑RART 2作品分享 | 分裂的城市“麻烦代名词”如何用建筑手段治理?
谢菲尔德大学建筑作品集 | 共同领土 COMMON TERRITORY
STUDIO成果分享 | 纪念性景观 Memorial Landscape- Poetic
2. 研究生作品
高校录取项目赏析
UPennxTUDxNUS录取 | 治愈底层生活中被遗忘的场所
UPennxTUDxNUS录取 | 拯救来自世界尽头的岛屿——基里巴斯
TUDxUMichxCMU 录取 | Beyond the visible,空间权力的寓言
竞赛项目赏析:
1. 国内竞赛
“向海而筑”佳兆业国际乐园生态建筑设计竞赛获奖作品:漂浮的蓝洞
开封竞赛获奖作品赏析:清园春韵---“新宋潮“特色文旅体验中心设计
Q-City品质城市国际青年设计师竞赛(唐山)三等奖作品:深夜食堂-模块夜市
渭南竞赛获奖作品赏析:银色田茂 情动预愈--全龄友好的村落式银发小镇再塑
第七届紫金奖建筑赛银奖作品 | 生活与生鲜——平疫结合的菜场改造:东南大学
第七届紫金奖建筑赛铜奖作品 | 围墙5.0——健康社区神经末梢:悉地(苏州)勘察设计顾问有限公司
第七届紫金奖建筑赛金奖 | 移动城堡——平疫结合的疗养院设计:东南大学建筑设计研究院有限公司
第七届紫金奖建筑赛金奖作品 | 多维共生的模式语言:南京大学建筑规划设计研究院有限公司
“昆山之路·美好朝阳” 城市设计竞赛街区更新设计项目作品展示
2020第六届中国人居环境设计学年奖金奖作品赏——未来神仙城市设计
2019第六届紫金奖·金奖作品:船底之歌——船底人聚落空间重塑
2019第六届紫金奖·银奖作品:第三幼儿园——住宅架空层遐想
2019第六届紫金奖·铜奖作品:荐读 | 巷世界——书院门巷景观更新设计
2019年AIM安宁金方乡村公共空间设计竞赛入围作品:涟漪菜市场:水滴落入安宁的水面
2019年广州人民桥北桥头堡桥底空间设计第一名作品:红色港湾
渭南竞赛获奖作品赏析 | 多功能适老购物车:属于老年人的便利购物方式
2. 国外竞赛
2021 UIA-霍普杯二等奖作品解读:2048乡村奥运会策划手册
2021霍普杯一等奖「花枝弥漫」来啦!项目视频+高清图纸+深度解读/ UIA霍普杯专题
2021DIA 数字经济 (Digital Economy)优秀获奖作品
科索沃普里什蒂纳体育馆(PRISHTINA SPORTS HALL)设计竞赛
Alison Brooks Architects 赢得剑桥霍默顿学院入口建筑与图书馆设计竞赛
UIA-霍普杯 2020 国际大学生建筑设计竞赛二等奖深度解读——衍聚-倚巷折坊(10°空间)
舒适谷(Coziness valley)国际竞赛获奖作品—Moving Fish Park
UIA-霍普杯 2020 国际大学生建筑设计竞赛三等奖深度解读——迷宫城市(骆肇阳)
2021普利茨克奖得主LACATON&VASSAL曾经的广州博物馆投标文本
上海国际设计周未来之星中国设计奖 TOP 100 LIST 正式发布!
2019年幸福古村泛博物馆竞赛一等奖作品:Below the river
2019年塞内加尔KAIRA LOORO“和平馆”国际建筑竞赛提案作品:同一个屋檐下
项目分析:
麦稞作品 | 露香园·缘起:交互影像下的“园”中传奇“顾事”
森林Park+,共享垂直校区 | 重庆柏溪校区九年一贯制学校方案
Diller Scofidio + Renfro:“最不可思议”的建筑
DA!作品《引力的影子》落天长江文化艺术周,以艺术之名 “还重庆以蓝天”
2021英国托马斯·赫斯维克(Thomas Heatherwick)新作问世 | 即BIG,隈研吾之后再塑温哥华天际线
GWP 新作 | “放飞梦想,快乐成长”— 杭州临安·风之谷户外自然学校
矛盾之“间”|The ‘room’ between of contradictions
初生牛犊不怕虎?看新锐设计师如何在Benoy新作上讲海豚故事
Masdar城市入口设计,对自然的敬畏,对古典美学精神的追求和对技术革新的认同
最新行程 | 寻美杭州8大地产项目,探索极致美学空间【环球建筑】
设计师项目:
杰作空间设计院创始人李学杰:亚朵酒店设计,人鱼之蓝与童趣构筑空间
高田浩一新作:上海太阳能树市场,32棵太阳能“树”供电的有机建筑
MUDO 孙树瓅:当你运气不太好的时候——两个以退为进的设计故事
杨东子:疫情下的设计思考——MILESTONE里程碑|广设学院新春巨献
本文来自微信公众号“UniDesignLab”(ID:UniDesignLab)。大作社经授权转载,该文观点仅代表作者本人,大作社平台仅提供信息存储空间服务。










