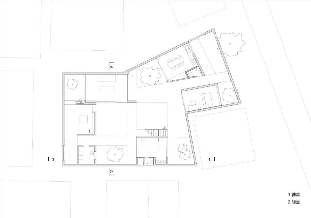
父母之家
建筑类型:住宅
项目面积:240㎡
细节处理
“家具化”细节处理
编辑 / 大 树 审稿 / 筱十九
本文来自微信公众号“建筑手记”(ID:DongXiXiaoYuanStudio)。大作社经授权转载,该文观点仅代表作者本人,大作社平台仅提供信息存储空间服务。
父母之家
建筑类型:住宅
项目面积:240㎡
细节处理
“家具化”细节处理
编辑 / 大 树 审稿 / 筱十九
本文来自微信公众号“建筑手记”(ID:DongXiXiaoYuanStudio)。大作社经授权转载,该文观点仅代表作者本人,大作社平台仅提供信息存储空间服务。
