以木为墨,刻画生活。以木制家具作为媒介,表达自己对生活的理解。依照自由的生活去做设计,建造环保、自然、健康的空间。只以木作营造空间,不施涂料,不敷颜色,返朴述真。
项目的位置正是这栋老楼首层的一侧沿街空间。严格来说,这不是一栋完整的老楼,早期是民国时期江南造币厂的车间,园区改造时,新建一栋办公楼在其内部,只剩下几片高耸的红色砖墙,延续着它的前世今生。红色砖墙上的窗洞着联系内外两侧的风景,外侧是城市,内侧的当代建筑脱开砖墙而立,其间的空隙自然形成过渡空间。
△国创园11#楼 2012年/2021年历史照片
这是反几在国创园的第五个项目。前四个项目是MOTIVA健身房、江南造币博物馆、Aritco电梯展厅和20号楼门厅改造,均以内部改造为主,辅以少量立面更新回应城市。
△MOTIVA健身房、江南造币博物馆
Aritco电梯展厅、良制&20号楼门厅改造
与之不同,新项目以红色砖墙面向城市,真正提供功能性的建筑立面在其内侧,间隔空隙,与红色砖墙共同组成既有的建筑边界。这为我们探索新的城市与建筑的界面关系提供了合适的契机。
红色砖墙作为历史遗存得以保留并加以修缮和维护,成为当代城市所必需的文化面貌,述说一段过往,也是改造设计的故事背景。因此,我们对建筑边界的操作主要集中在首层立面及其与红色砖墙之间的空隙。我们将空隙分隔为入口庭院与内部庭院,同时,在两个庭院分别置入不同的住宅功能,打破立面界限,以此重构并模糊建筑边界。
设计将住宅空间中所涵盖“书房、厨房、卧室、客厅、茶室”等功能独立提取,以不同开敞面。
△玄关
△厨房
△茶室
△卧室
两个庭院对建筑边界的模糊化处理略有不同。在入口庭院,黑色盒子嵌入建筑,一半在室内,另一半以整面无框的玻璃延伸至庭院,建筑内部的世界向外铺陈,透过红色砖墙上的窗洞渗入城市。城市的风景也透过窗洞,将生活的浪漫与生命的朝气映射在黑色盒子的玻璃立面上。
△书房
在内部庭院,室内的原木吊顶向庭院延伸,新的立面退后消隐,室内外空间融为一体。C字形茶座坐落于院中,对外部的城市环境进行局部的限定,通透的空间因此多了一分内向。
两个庭院、两种盒子、两种模糊,与红色砖墙,共同形成了一种新的城市与建筑的界面关系。它解构了原有建筑边界,并使之立体化、相对化、模糊化。
历史与当代的对峙产生时空的变幻与交融,边界的多重意义不再清晰与确定,置身其中的人们因此不受常规概念上的束缚,获得身体与精神上的双重自由。
当界面关系不再清晰,当建筑内外变得模糊,当空间开始渗透,园林的感觉便出现了。
新增形体与原有结构之间,用樱桃木原木隔断分离,明晰新老结构关系之外,也创造新的气候边界。
△形体之间的「缝」
△新老结构的交接
△模糊的建筑边界
项目名称 | 南京木墨展厅
地理位置 | 江苏省南京市国创园11号楼
建筑面积 | 280平方米
设计公司 | 反几建筑 FANAF
项目负责 | 金鑫
设计团队 | 邹明帅、吴佳钰、章振东
设计范围 | 外立面改造、结构设计、室内硬装设计、软装设计、灯光设计
结构咨询 | 李亮
土建施工 | 陈连明
地面系统 | 南京慧之舒装饰工程有限公司
撰文 | 刘伟、金鑫
后期摄影 |ingallery金啸文、LOG对数摄影工作室
*图文由 反几建筑 FANAF 授权发布
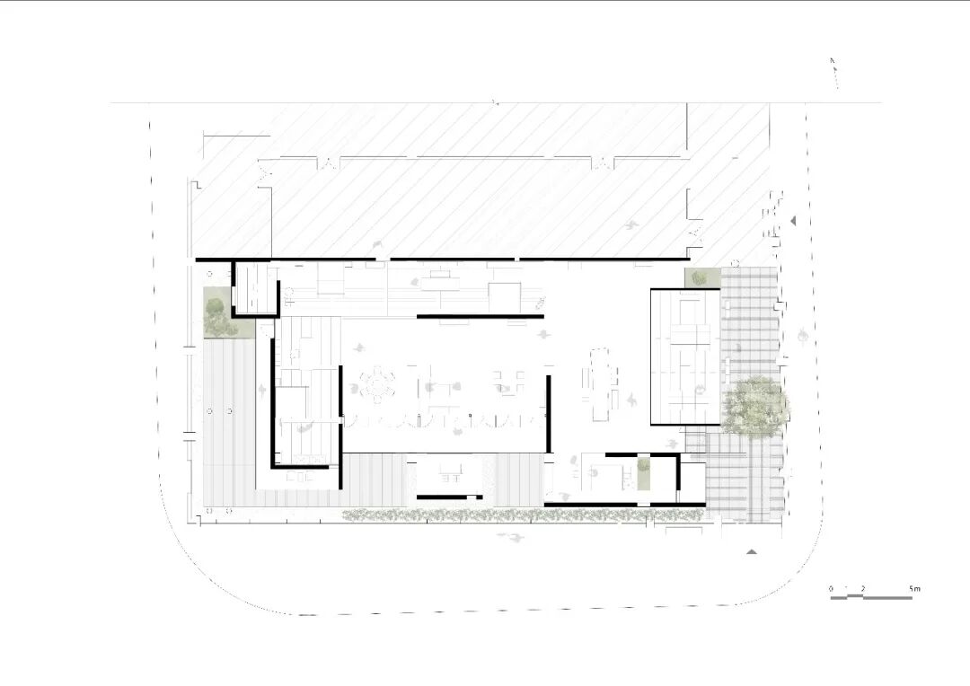
DRAWINGS
技术图纸
Technical Drawings
DESIGNERS
主创设计
Designers Introduction
金 鑫
重庆大学建筑学学士,南京大学建筑学硕士,高级工程师,曾任AZL张雷联合建筑设计事务所主创建筑师;现任反几事务所FANAF创始人,江苏华欣装饰集团有限公司总经理。
担任南京大学研究生客座设计导师,南京大学行业咨询师,江苏省勘察设计学会理事会会员,江苏省美学学会设计专业委员,江苏省土木建筑学会青年建筑师学组委员。
反几建筑事务所位于南京市梅园新村一栋民国建筑中,成立以来致力于从人的需求出发建设和经营城市,用有温度的城市更新提升城市价值。
目前,人口外流与老龄化、老城区建设趋缓、产业升级停滞、人居环境整治等问题已成为城市高速发展过程中改造及再开发的枷锁。面对城市因功能置换而产生的对空间的更新需求,反几主张运用规划、建筑、室内、景观、灯光、家具、视觉等综合设计的解决方式,发掘新的建造材料,创造新的空间形象,改善城市人文环境。摒弃大拆大建,在城市更新领域不断探索的道路上,反几立足完善城市功能,梳理人居环境,通过精细化更新和多路径尝试,逐渐走出了一条符合城市生活实际又有一定推广价值的更新之路。
本文来自微信公众号“最佳设计BEST DESIGN”(ID:BESTDESIGNCHINA)。大作社经授权转载,该文观点仅代表作者本人,大作社平台仅提供信息存储空间服务。










