转载引用请注明出处。内容仅供交流学习,不做任何商业用途, 不代表任何投资建议。如有侵权请联系后台删除。
-
松江新城建成英国风格的新城;
-
安亭镇建成德国式小城;
-
浦江镇以意大利式建筑为特色,结合美国城镇风格;
-
高桥镇建成荷兰式现代化城镇,融入法国和澳大利亚风情;
-
朱家角镇既凸现本土水乡古镇风貌,又有现代城镇的格调;
-
奉城镇建成西班牙风格小城;
-
罗店、枫泾、周浦、堡镇建成欧美特色的小城。
-
嘉定新城“安亭新镇”
-
占地面积:4.1(西区:2.4)km2,
-
风格指向:德国
-
设计公司:德国AS&P
-
1."中世纪有机生长城市”形态模型;
-
2.类似克里尔K城的城市设计手法;
-
3.以中世纪形态广场为中心;
-
4.功能混合;
-
5.周边式围合建筑街坊;
-
6.带形绿地公园;
-
7.现代的建筑形式。
-
中世纪形态的中心广场
-
松江新城“泰晤士小镇”
-
用地面积:O.96 km2,
-
风格指向:英国传统的乡村小镇,有机生长
-
设计公司:英国阿特金斯
-
1.“围绿”的清晰边界形成整体性;
-
2.传统广场组合形式的城镇中心;
-
3.有机的道路网与组团布局;
-
4.多样化的滨水空间形式;
-
5.“主题化”的公共空间;
-
6.建筑形式的移植
-
1.建立明显的边界;
-
2.树枝形网格结构模式;
-
3.传统形态广场、步行区组合的城镇中心;
-
4.三种邻里广场组合的城镇中心;认知与传递;
-
5.移植欧洲的传统建筑形式。
-
6.贴临的大型公园。
-
用地面积:5.44 kmz(不含古镇区),
-
风格指向:北美(北美新城市主义)
-
设计公司:美国某设计公司与同济联合体
-
1.建立了复合性交通廊道与枢纽;
-
2.网格形态道路结构;
-
3.TOD与TND相结合的邻里社区
-
4.步行廊道连接城镇公共节点;
-
5.湖面、公园、 广场组合的城镇中心;
-
6.大型绿地门户公园。
目前正在建设中
-
用地面积:9.46 km2,
-
风格指向:江南水乡
-
设计公司:台湾李祖原
-
1.保护与发展并行;
-
2.圈层式生长结构;
-
3.以吉镇为中心
-
4.轴线组织空间;
-
5.传统空间符号的
-
6.强调功能混合;
-
7.渐进的整体性开发。
-
用地面积:10.3 km2,
-
风格指向:意大利(欧洲理念、现代结构、地方特色)
-
设计公司:意大利GREGOTTI
-
1.模数化的网格结构;
-
2.环城河街、绿化的圈层形态;
-
3.带形的中心区;
-
4.正交的轴线空间组织;
-
5.功能、社会混合;
-
6.组团上海里弄街景;
-
7.现代的建筑形式。
示范区典型规划平面
-
用地面积:O.8 km2(不含北侧高桥港),
-
风格指向:荷兰(荷兰水城与欧洲理念)
-
设计公司:荷兰KC与TKA
-
1.以水系建立城镇空间构架;
-
2.传统复合形式的公共空间组合;
-
3.线性的步行系统;
-
4.内松外紧的圈层密度布局;
-
5.荷兰古典风格界面的步行街。
项目整体的空间骨架基本
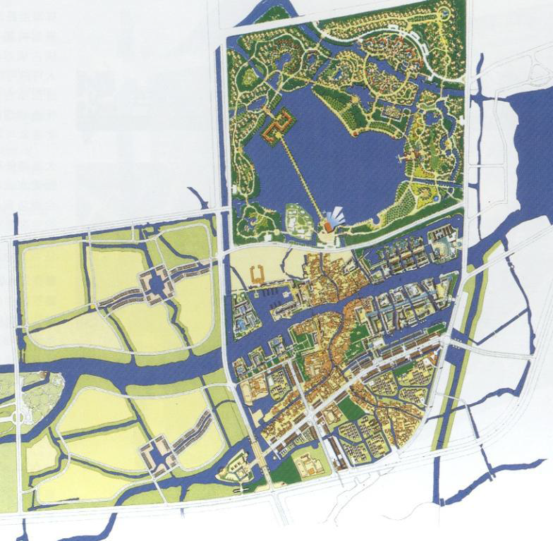
-
用地面积:22 km2,
-
风格指向:生态“海岛花园”(生态城市)
-
1.采用“分散化集中”的折衷模式;
-
2.清晰的片区边界;
-
3.以水面公园为中心;
-
4.邻里TOD模式的应用;
-
5.交通枢纽与中心社区的分离;
-
6.以生态景观作为主导形态构架。
-
用地面积:12.66 km2,
-
风格指向:西班牙(欧洲古典街区与带型城市)
-
1.“带形城市”形态运用;
-
2.道路、河道、绿化带形成空间发展轴;
-
3.古城与“西班牙风貌”井置;
-
4.带形与面状公园相结合;
-
5.欧洲古典风格街区;
-
6.现代形式的中心区。
“一城九镇”
不一样的风格,一样的缺陷
本文来自微信公众号“TOP创新区研究院”(ID:TOP_Lab)。大作社经授权转载,该文观点仅代表作者本人,大作社平台仅提供信息存储空间服务。










