”
顶层复式
豪宅的另外一种打开方式
苏州玲珑湾 520m² 顶层复式
△客厅
△二层起居室
△主卧健身区
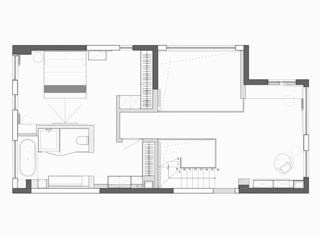
△一层平面图
△二层平面图
观景于家,揽境入家。巨大的落地窗使窗外的天高云阔如同一幅巨型的油画般屹立。落地窗前的位置,最适宜进行观景和社交的功能。使用最简洁的表现方式以及色彩来对应窗外的四季变幻,是设计上大胆的留白。
手法自然的将窗景接壤于室内,并使窗景得到最大限度的利用。在浓墨重彩的地方反其道而行,使用漫不经心的方式,更能营造出一个轻松有温度的环境气场。
和光馆
项目地位于河北省石家庄,业主是一对年轻的八零后夫妻。设计师孙建亚在充分考虑建筑造型特点以及户主需求之后,保持建筑外立面及地面三层不变的情况下,在地下二层又另作一个夹层,使空间由原来的五层变成六层。
设计师秉持一贯的极简设计理念,采取去繁从简,追求极致的设计手法为空间增添更多的实用机能,赋予其充满设计哲学的生活美感。在爵士白大理石与黑钛不锈钢板的结合碰撞中,石盘般极具造型美感的书架结构承重物序列排布。
极具艺术美感的旋转楼梯贯穿六个楼层。暖黄色的灯光在楼梯所呈现的漩涡中沉浮流连,一股厚重的安全感包裹着人们向上或向下,展现出一座家那不易言说的包容性。
本文来自微信公众号“建筑设计之家”(ID:jianzhu78)。大作社经授权转载,该文观点仅代表作者本人,大作社平台仅提供信息存储空间服务。










