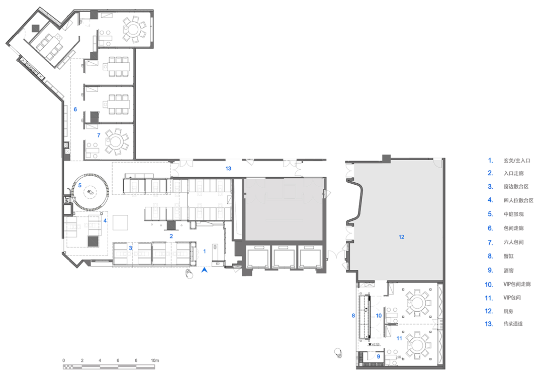
蟹道 深圳平安金融中心店
消解与平静的感官旅行
蟹道之旅
这是一场感官旅行
听得到的宁静
闻得到的酒香
看得到的光影婆娑
摸得到质感与温度
尝得到的鲜甜美味
张涛
道为设计Tao Way Design 创办人&首席设计师
深圳美术设计院道为分院院长,中国建筑学会会员,香港室内设计师协会会员,深圳市室内建筑设计行业协会会员,深圳职业学院特聘导师,高级室内建筑师。
Shenzhen Art Design Institute Dao is the dean of the branch, a member of the Architectural Society of China, a member of the Hong Kong Association of Interior Designers, a member of the Shenzhen Interior Architectural Design Industry Association, a special tutor of Shenzhen Vocational College, and a senior interior architect.
道为设计部分案例
▽
△神仙居登云度假酒店
△中鼎索菲特酒店
△玉林公园9里
- END -

本文来自微信公众号“云想设计美学”(ID:Yunxiang_Design)。大作社经授权转载,该文观点仅代表作者本人,大作社平台仅提供信息存储空间服务。










