该项目位于丹麦哥本哈根,由 2 栋楼组成,因其建筑的造型,被称之为「Kaktus Towers」,在丹麦语中 kaktus 的意思是仙人掌。
# 建筑 #
整个项目共有 2 栋建筑组成,一座高 60 米一座高 80 米,是该地区最高的建筑。两个建筑由一条长长的绿色高架桥连接起来,形成一个高架公园。
大楼的楼身皆呈圆柱体,立面 12 个方位都设有三角形阳台向外突出。
这些阳台像仙人掌尖刺一样突出,是整个建筑最有特点的立面设计。每个户型都拥有三角形阳台。混凝土与钢筋结合,纯粹的工业风格。
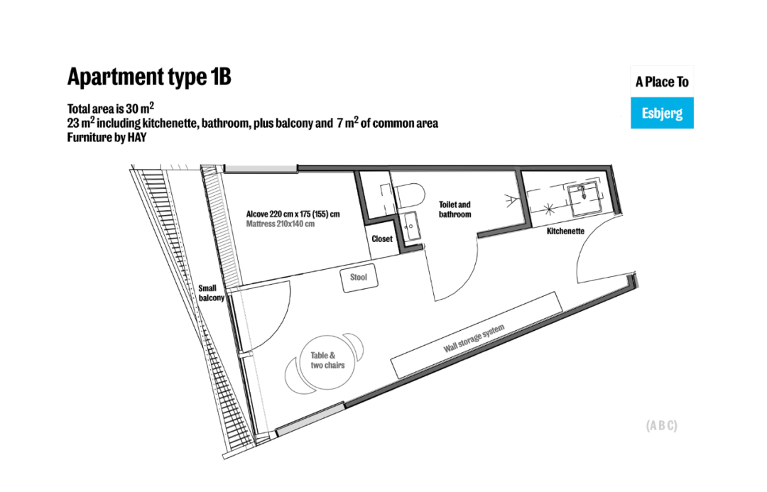
楼层平面图▽
在家具布置上运用到镜子来扩大视觉空间,以及反射光线照亮房间。大量的储物空间,会让房间看起来更加整洁。多功能家具也是必不可少的,将床与沙发组合,储物与沙发组合等来缓解小空间的局促。
将小桌子与护墙板固定相连,既是用餐区也是一个小型办公区。
还有部分公寓的餐厅选用可折叠的小型圆形餐桌,搭配不同款色的凳子组合而成,灵活性较高。
面积较大的公寓空间相对宽裕,设计师将各个区域以墙面做划分,使其都有最好的归属。
独立的卧室空间,利用帘子做隔断,保证私密性。
卫生间▽
每套公寓都有一个大阳台,最大面积高达 12㎡,可俯瞰哥本哈根天际线,这一设计的目的是为了鼓励人们走出室内。
设计师认为「当我们需要一些平静时,经常会去寻求户外活动,清新的空气和壮丽的景色能给人带来平静。生活在拥挤的大都市,阳台是很多市民的向往。」
「A Place To」内部共有 309 间学生公寓和 122 间酒店公寓。
每月4719丹麦克朗(约 4707 元人民币)
面积:35平方米
楼层:7
每月4463丹麦克朗(约 4451 元人民币)
面积:30平方米
楼层:6
每月3950丹麦克朗(约3940 元人民币)
面积:30平方米
楼层:6
每月3899丹麦克朗(约3889 元人民币)
面积:30平方米
楼层:5
因为针对的都是年轻客群,所以创造丰富的社交生活空间也是非常有必要的。项目内设有健身房、工作区、咖啡馆和开放厨房,此外还有自行车停车场、储藏室和景观休息区等公共设施。
周一至周五 06:30 至 10:00 提供收费的自助早餐,还能享有干洗衣物和行李寄存等服务。
大堂处放置了乒乓球桌、桌面足球和秋千座椅供租客玩乐。
影音室用红色布帘做隔断,阶梯上摆放着 3 种颜色的懒人靠椅,带来舒适感。
休息室的暴露顶上挂着球形的白色纸灯照明,暖色调的沙发、边几的布置,带给人温馨与舒适。
而「APlaceTo」项目内设有餐厅,餐厅为自助形式,朴素的工业风与建筑大楼形成呼应。
甜品区、饮料区、调料区一应俱全▽
酒吧▽
会议室是众多工作区中比较私密的空间,也是一个非常适合在家工作或需要团队合作的好地方。
本文来自微信公众号“一起设计”(ID:together-design)。大作社经授权转载,该文观点仅代表作者本人,大作社平台仅提供信息存储空间服务。










