TENMA DESIGN
天 馬 設 計
© LIVE A WARM LIFE · TENMA DESIGN
面积:150m²
项目时间:2022年
设计团队:天马工作室
项目地址:上海 • 闵行区
户型:复式
#说在前面
我们总是考虑得太长久,想着五年后、十年后的生活样子,总是考虑得太多,想着可能朋友会留宿,想着父母会来小住等等,却容易忽略当下的生活、当下的需求和感受。考虑得太多,往往就留下了一间逐渐沦为杂物间的客卧,或偶尔兼作书房的儿童房。让原本不大的家和常要使用的空间显得更为局促,让昂贵的房价投入成为闲置的鸡肋。
本案我们做了些不一样的探索,和屋主一道营造了这套关注“当下居住需求”的二人居。
本文总体上分三段来阐述。 第一部分呈现改造后的实景,阐述我们在本案内哪些地方做了特殊的处理。第二部分结合业主的实际需求,讲述我们做如此改造的设计逻辑和理念。第三部分按空间顺序,讲述各个空间的效果呈现,以及解决的具体需求。
设计亮点
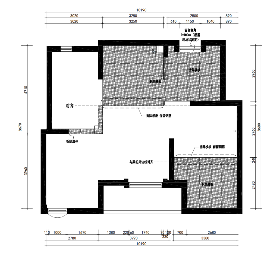
本案改造最大的点,在于我们拆掉了二十多平米的楼板,按该小区当前的房价来看,相当于砸掉了一百六十万元。下面我们看看改造后的效果。
01.
Living room
客厅
-
装修过程中,安装前先保洁。安装地板,柜体前,先做一次保洁。这样能很大程度避免入住后还会发现地板或柜体缝隙里面藏有灰尘。
-
选择密闭性好的门窗,能更有效地隔绝室外的灰尘进来。
-
新风系统,能减少开窗通风的频率,也能循环清洁室内空气,进一步减少灰尘。
02.
Kitchen
餐厨区
-
燃气移位。有许多城市出于安全考虑,要求厨房必须有门,但上海当前还无此要求,我们是请燃气公司指定的施工单位做的移位,确保安全上绝对可靠。所以,第一步是确保改造方案在政策法规允许范围内。
-
油烟问题。确认过业主的饮食习惯,多数时候不在家做饭,而且以健康饮食为主,蒸煮居多,不会有大油烟的爆炒。这也是本方案可被执行的前提,否则需要花更大的代价彻底解决油烟。
-
为了解决前面说的,让钢结构楼梯正好搭在横梁上(美观,也能节约成本),按踏步算下来,最下面一个踏步,离立柱太近,我们就通过抬高第一阶的方式,整体拉平。
-
踏步是有宽度的,拉平怼上立柱,刚好凸出来一截,怎么处理?怎么收口?就让橱柜一排整体外移,让橱柜和楼梯整体拉平。
-
橱柜整体外移,就让橱柜台面达到了80公分,太宽了,那我们在橱柜上加一个小台阶,上面还能摆些花花草草装饰。台阶下方还能做台面收纳。
-
我们希望房子是有主人自己的味道的,朋友一来就能感受到,对,这就是TA的家。那么家里带有主人印记的物品,就很关键。本案业主,就是很喜欢收藏独特物品的业主。
-
旧物利用,既能降低成本,也环保。
-
《利旧清单》一定要在设计启动前就沟通列好,方便在做方案时就将这些物品纳入考量,如何收纳、如何摆放、如何重新利用,都需要充分地考虑好。
03.
Children's room
备用儿童房
04.
Bedroom
卧室
-
原顶面是坡屋顶,结构复杂,而且夹角比较尖锐。从风水的角度看,卧室内的夹角会给人不好的暗示,是需要做遮蔽处理的。
-
顶面较高,且无法利用,对空调地暖的能耗都是多余的损耗,顶楼还有隔热的问题要解决。增加吊顶是必然要做的。
-
那干嘛不直接吊平顶呢?一是拉平顶会压低层高,我们男业主高度可是超过一米九的。二是,弧形不更美吗,解决完功能需求,我们也是要美的啊。
从业主那把会飞的光轮2000开始,我们想,是不是可以把楼板打开呢?那采光通风和视线是不是更好了呢?还能做出好玩的动线等等。一个灵感上打开了,整个方案就通了。剩下就是如何实现的技术细节。
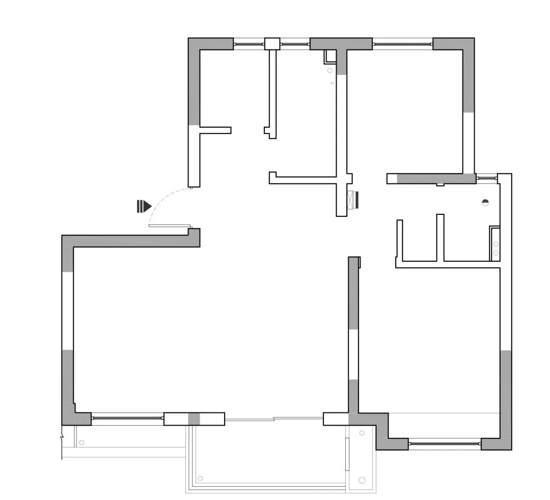
平面图
DESIGN PLAN
PROJECT NAME / © Hogwarts
PROJECT AREA / © 150 M²
DESIGN / © TENMA DESIGN 天馬設計
Live in Your Dream House 天馬與大俠的故事
Fusion 融 • 合
Tenma Sites Tour 天馬項目現場直擊
© LIVE A WARM LIFE · TENMA DESIGN
COPY RIGHT © TENMA DESIGN. All RIGHTS RESERVED
本文来自微信公众号“史鹏巍天马设计”(ID:tianma1202)。大作社经授权转载,该文观点仅代表作者本人,大作社平台仅提供信息存储空间服务。










