宋代美学强烈的人文精神,以及至纯至雅的独特风貌,成就了中国审美之源。那轻盈深邃、朴雅隽永的世界,令世人魂牵梦绕。宋代建筑被人们誉为是“古代建筑美学之首”。本篇带您看中国宋代的八十座建筑。
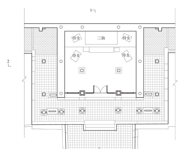
1
福州华林寺大殿

北宋乾德 二年
福建 福州市鼓楼区华林路78号





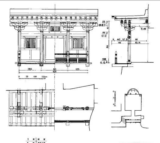
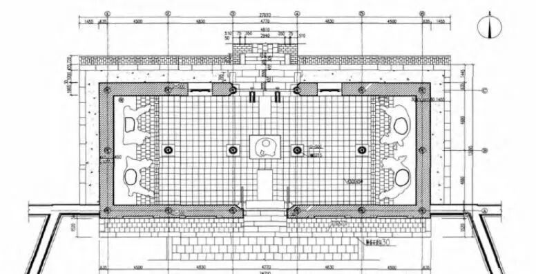
2
南赵庄村二仙庙正殿

北宋乾德 五年
山西晋城市高平县南赵庄村 东北











3
莫高窟427窟窟檐

北宋开宝三年
甘肃省敦煌市



4
莫高窟437窟窟檐

北宋开宝三年
甘肃敦煌市



5
高平崇明寺中佛殿

北宋开宝 四年
山西晋城市高平县河西镇郭家庄






6
济源济渎庙寝殿

北宋开宝 六年
河南济源市庙街村






7
莫高窟444窟窟檐

北宋开宝九年
甘肃敦煌市东南25公里



8
陵川北吉祥寺前殿

北宋太平兴国 三年
山西晋城市陵川县礼义镇西街村




9
陵川北吉祥寺中殿

北宋太平兴国 三年
山西晋城市陵川县礼义镇西街村


10
莫高窟431窟窟檐

北宋太平兴国 五年
甘肃敦煌市市区东南25公里


11
高平游仙寺毗卢殿

北宋淳化年间
山西晋城市高平县宰李村游仙山





12
肇庆梅庵大殿

北宋至道二年
广东省肇庆市端州区







13
莫高窟老君堂慈氏塔

北宋咸平三年
甘肃省敦煌市



14
太谷安禅寺中殿

北宋咸平四年
山西晋中市太谷县城




15
榆次永寿寺雨华宫正殿

北宋大中祥符元年
已毁
山西晋中市榆次区源涡村




16
宁波保国寺大殿

北宋大中祥符六年
浙江宁波市江北区红塘街道鞍山村






17
莆田元妙观三清殿

北宋大中祥符八年
福建莆田市荔城区梅园东路391号






18
长子崇庆寺千佛殿

北宋大中祥符九年
山西长治市长子县色头镇琚村




19
芮城城隍庙大殿

北宋大中祥符年间
山西运城市芮城县永乐南街小西巷


20
万荣稷王庙大殿

北宋天圣元年
山西运城市万荣县南张乡太赵村




21
祁县兴梵寺大殿

北宋天圣三年
山西晋中市祁县东关镇东关村



22
陵川南吉祥寺中殿

北宋天圣八年
山西晋城市陵川县礼义镇平川村





23
太原晋祠圣母殿及鱼沼飞梁

北宋天圣年间
山西太原市晋源区晋祠镇








24
乡宁寿圣寺正殿

北宋皇佑元年
山西临汾市乡宁县




25
太谷万安寺大殿

北宋天生八年至皇佑二年
已毁
山西晋中市太谷县城关





26
正定隆兴寺摩尼殿

北宋皇佑四年
河北省石家庄市正定县







27
正定隆兴寺转轮藏殿

北宋皇佑四年
河北石家庄市正定县中山东路




28
正定隆兴寺山门

北宋皇佑四年
河北石家庄市正定县中山东路



29
正定隆兴寺慈氏阁

北宋皇佑四年
河北石家庄市正定县中山东路



30
小会岭村二仙庙正殿

北宋嘉祐八年
山西晋城市陵川县附城镇小会村








31
夏县余庆禅院正殿

北宋治平二年
山西运城市夏县水头镇小晁村



32
榆社寿圣寺山门

北宋熙宁元年
山西晋中市榆社县郝北镇郝壁村




33
长子正觉寺后殿

北宋熙宁三年
山西长治市长子县司马乡看寺村





34
虎丘云岩寺二山门

北宋天圣八年至熙宁三年
江苏苏州市姑苏区虎丘路北端



35
甪直保圣寺大殿

北宋熙宁六年
已毁
江苏苏州市吴中区甪直古镇







36
高平开化寺大殿

北宋熙宁六年
山西晋城市高平县舍利山




37
泽州府城玉皇庙玉皇殿

北宋熙宁九年
山西晋城市泽州县金村镇府城村




38
长子崇庆寺三大士殿

北宋元丰二年
山西长治市长子县色头镇琚村


39
长子法兴寺圆觉殿

北宋元丰三年
山西长治市长子县慈林镇崔庄村





40
周村东岳庙正殿

北宋元丰五年
山西晋城市泽州县周村镇北黄沙岭




41
周村东岳庙关帝殿

宋金时期
山西晋城市泽州县周村镇北黄沙岭




42
高都景德寺后殿

北宋元祐二年
山西晋城市泽州县高都镇高都村



43
忻州金洞寺转角殿

北宋元祐八年
山西忻州市忻府区合索乡西呼延村







44
平顺龙门寺大殿

北宋元符元年
山西长治市平顺县石城镇源头村






45
平顺九天圣母庙正殿

北宋建中靖国元年
山西长治市平顺县北社乡东河村





46
泽州青莲上寺罗汉阁

北宋建中靖国元年
山西晋城市泽州县寺南庄硖石山

47
潞城原起寺大殿

北宋 元祐二年
山西长治市潞城县辛安村风凰山




48
泽州青莲寺释迦殿

北宋元祐四年至崇宁元年
山西晋城市泽州县寺南庄硖石山







49
高平米山镇玉皇庙正殿

北宋崇宁元年
已毁
山西晋城市高平县米山镇




50
高平米山镇玉皇庙山门

北宋崇宁元年
山西晋城市高平县米山镇

51
泽州青莲上寺藏经阁

北宋崇宁年间
山西晋城市泽州县寺南庄硖石山



52
河底村成汤庙正殿

北宋大观二年
山西晋城市泽州县大东沟镇河底村





53
北义城镇玉皇庙后殿

北宋大观四年
山西晋城市泽州县北义城镇




54
小南村二仙庙正殿

北宋政和七年
山西晋城市泽州县金村镇南村






55
泽州崇寿寺释迦殿

北宋宣和元年
山西晋城市泽州县巴公镇西郜村


56
阳泉关王庙正殿

北宋宣和四年
山西阳泉市定襄县白泉乡林里村







57
清徐狐突庙后殿

北宋宣和五年
山西太原市清徐县西马峪村






58
定襄关王庙大殿

北宋宣和五年
山西忻州市定襄县城关定襄二中内








59
少林寺初祖庵大殿

北宋宣和七年
河南郑州市登封市少林寺







60
定襄洪福寺三圣殿

北宋政和至宣和七年
山西阳泉市定襄县弘道镇北社村






61
韩城司马迁祠寝宫

北宋靖康元年
陕西渭南市韩城市芝川镇司马坡



62
韩城司马迁祠山门

北宋靖康元年
陕西渭南市韩城市芝川镇司马坡



63
昭仁寺大殿

唐宋时期
陕西咸阳市长武县昭仁镇东街村






64
平顺佛头寺大殿

北宋
山西长治市平顺县阳高乡车当村



65
高平清化下寺如来殿

北宋
山西晋城市高平县神农镇团池村




66
西见子宣承院大殿

北宋
山西晋中市榆次区长凝镇西见子村




67
寿阳普光寺大殿

北宋
山西晋中市寿阳县西洛镇白道村



68
长治崇教寺正殿

北宋雍熙元年
山西省长治市长治县马厂镇故驿村


69
平顺回龙寺正殿正殿

宋末金初
山西省长治市平顺县阳高村侯壁村








70
佛山祖庙正殿

北宋元丰年间
广东省佛山市禅城区祖庙路21号






71
德庆学宫大成殿

北宋元丰四年(1081年)
广东省肇庆市德庆县德城街道朝阳路26号






72
潮州开元寺天王殿

北宋
广东省潮州市湘桥区开元路32号







73
昔阳离相寺正殿

北宋
山西省晋中市昔阳县赵壁乡川口村






74
长春村玉皇庙正殿
山西省长治市长治县荫城镇长春村





75
上阁村龙岩寺前殿
宋金
山西省长治市沁水县中村镇上阁村




76
定流东岳庙大殿

宋金时期,已毁
山西省长治市长治县定流村北


77
高平资圣寺正殿

北宋[“大周古寺庙建筑群”]
山西省晋城市高平县马村镇大周村

78
高平嘉祥寺转果殿
宋金时期
山西省晋城市高平市三甲镇赤祥村

79
高都土地庙正殿
北宋崇宁二年(1103年)
山西省晋城市泽州县高都镇南社村



80
洪洞泰云寺正殿
[北宋雍熙四年(987年)重建,清乾隆年间再次重建]
山西省临汾市洪洞县广胜寺镇石桥村北


微信来源:建筑与园林艺术、北京交大古建筑
图文版权归原作者或原机构所有
宋代美学强烈的人文精神,以及至纯至雅的独特风貌,成就了中国审美之源。那轻盈深邃、朴雅隽永的世界,令世人魂牵梦绕。宋代建筑被人们誉为是“古代建筑美学之首”。本篇带您看中国宋代的八十座建筑。
北宋乾德 二年
福建 福州市鼓楼区华林路78号
北宋乾德 五年
山西晋城市高平县南赵庄村 东北
北宋开宝三年
甘肃省敦煌市
北宋开宝三年
甘肃敦煌市
北宋开宝 四年
山西晋城市高平县河西镇郭家庄
北宋开宝 六年
河南济源市庙街村
北宋开宝九年
甘肃敦煌市东南25公里
北宋太平兴国 三年
山西晋城市陵川县礼义镇西街村
北宋太平兴国 三年
山西晋城市陵川县礼义镇西街村
北宋太平兴国 五年
甘肃敦煌市市区东南25公里
北宋淳化年间
山西晋城市高平县宰李村游仙山
北宋至道二年
广东省肇庆市端州区
北宋咸平三年
甘肃省敦煌市
北宋咸平四年
山西晋中市太谷县城
北宋大中祥符元年
已毁
山西晋中市榆次区源涡村
北宋大中祥符六年
浙江宁波市江北区红塘街道鞍山村
北宋大中祥符八年
福建莆田市荔城区梅园东路391号
北宋大中祥符九年
山西长治市长子县色头镇琚村
北宋大中祥符年间
山西运城市芮城县永乐南街小西巷
北宋天圣元年
山西运城市万荣县南张乡太赵村
北宋天圣三年
山西晋中市祁县东关镇东关村
北宋天圣八年
山西晋城市陵川县礼义镇平川村
北宋天圣年间
山西太原市晋源区晋祠镇
北宋皇佑元年
山西临汾市乡宁县
北宋天生八年至皇佑二年
已毁
山西晋中市太谷县城关
北宋皇佑四年
河北省石家庄市正定县
北宋皇佑四年
河北石家庄市正定县中山东路
北宋皇佑四年
河北石家庄市正定县中山东路
北宋皇佑四年
河北石家庄市正定县中山东路
北宋嘉祐八年
山西晋城市陵川县附城镇小会村
北宋治平二年
山西运城市夏县水头镇小晁村
北宋熙宁元年
山西晋中市榆社县郝北镇郝壁村
北宋熙宁三年
山西长治市长子县司马乡看寺村
北宋天圣八年至熙宁三年
江苏苏州市姑苏区虎丘路北端
北宋熙宁六年
已毁
江苏苏州市吴中区甪直古镇
北宋熙宁六年
山西晋城市高平县舍利山
北宋熙宁九年
山西晋城市泽州县金村镇府城村
北宋元丰二年
山西长治市长子县色头镇琚村
北宋元丰三年
山西长治市长子县慈林镇崔庄村
北宋元丰五年
山西晋城市泽州县周村镇北黄沙岭
宋金时期
山西晋城市泽州县周村镇北黄沙岭
北宋元祐二年
山西晋城市泽州县高都镇高都村
北宋元祐八年
山西忻州市忻府区合索乡西呼延村
北宋元符元年
山西长治市平顺县石城镇源头村
北宋建中靖国元年
山西长治市平顺县北社乡东河村
北宋建中靖国元年
山西晋城市泽州县寺南庄硖石山
北宋 元祐二年
山西长治市潞城县辛安村风凰山
北宋元祐四年至崇宁元年
山西晋城市泽州县寺南庄硖石山
北宋崇宁元年
已毁
山西晋城市高平县米山镇
北宋崇宁元年
山西晋城市高平县米山镇
北宋崇宁年间
山西晋城市泽州县寺南庄硖石山
北宋大观二年
山西晋城市泽州县大东沟镇河底村
北宋大观四年
山西晋城市泽州县北义城镇
北宋政和七年
山西晋城市泽州县金村镇南村
北宋宣和元年
山西晋城市泽州县巴公镇西郜村
北宋宣和四年
山西阳泉市定襄县白泉乡林里村
北宋宣和五年
山西太原市清徐县西马峪村
北宋宣和五年
山西忻州市定襄县城关定襄二中内
北宋宣和七年
河南郑州市登封市少林寺
北宋政和至宣和七年
山西阳泉市定襄县弘道镇北社村
北宋靖康元年
陕西渭南市韩城市芝川镇司马坡
北宋靖康元年
陕西渭南市韩城市芝川镇司马坡
唐宋时期
陕西咸阳市长武县昭仁镇东街村
北宋
山西长治市平顺县阳高乡车当村
北宋
山西晋城市高平县神农镇团池村
北宋
山西晋中市榆次区长凝镇西见子村
北宋
山西晋中市寿阳县西洛镇白道村
北宋雍熙元年
山西省长治市长治县马厂镇故驿村
宋末金初
山西省长治市平顺县阳高村侯壁村
北宋元丰年间
广东省佛山市禅城区祖庙路21号
北宋元丰四年(1081年)
广东省肇庆市德庆县德城街道朝阳路26号
北宋
广东省潮州市湘桥区开元路32号
北宋
山西省晋中市昔阳县赵壁乡川口村
山西省长治市长治县荫城镇长春村
宋金
山西省长治市沁水县中村镇上阁村
宋金时期,已毁
山西省长治市长治县定流村北
北宋[“大周古寺庙建筑群”]
山西省晋城市高平县马村镇大周村
宋金时期
山西省晋城市高平市三甲镇赤祥村
北宋崇宁二年(1103年)
山西省晋城市泽州县高都镇南社村
[北宋雍熙四年(987年)重建,清乾隆年间再次重建]
山西省临汾市洪洞县广胜寺镇石桥村北
微信来源:建筑与园林艺术、北京交大古建筑
图文版权归原作者或原机构所有
本文来自微信公众号“建筑设计之家”(ID:jianzhu78)。大作社经授权转载,该文观点仅代表作者本人,大作社平台仅提供信息存储空间服务。










