木君设计
Chengdu, China
自然拥有自我的灵性与品性,
静静处于一隅,
©偏方影像
宽广的空间视野,以和谐的方式整合了内部和外部时刻,并将空间延伸到露台。门前播种了连片的向日葵。门框犹如现代艺术的“画框”,将室外的风景“框”入室内。内部山墙屋顶的灵感来源于对传统建筑元素的捕捉,木纹的质朴与连续性进一步模糊了自然与庇护所的界限,使人们能温和的感知空间的整体性。
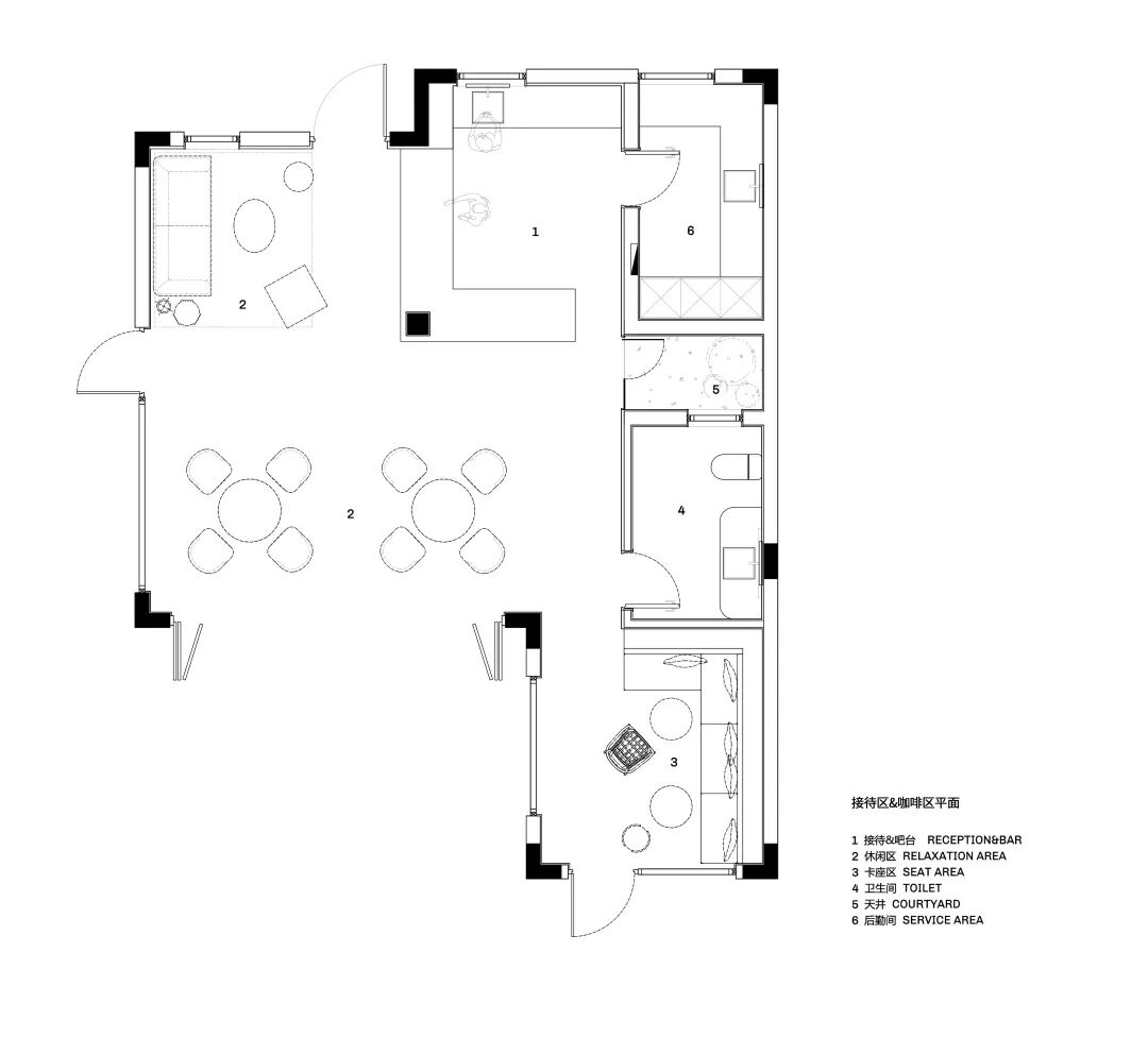
MDO 专注于光线和空间,希望人们每天都能享受到度假的休闲感。设计师从川西民居的旧居所中提取了当地的手工艺品和材料,并以一种新的方法使其相融于现代设计。最终以花窗、锥形帽、天然木材、竹编制品等作为与川西民居及当地工艺的联系。
于材质中触碰在地民俗与自然的脉络
自然的色调,以确保在不同材质的因子之下,色彩也能够在空间中流畅的连贯起来。粗凿的器皿、干树枝和藤编元素为现代空间增添了乡村气息;弧形的墙角、立缝屋顶和具有相同间距的单层山墙都赋予了空间宁静的田园美感,鼓励人们以日常最单纯的姿态游走于闲逸、纯粹的空间之中。
©偏方影像
©偏方影像
©偏方影像
©偏方影像
©偏方影像
©偏方影像
左右滑动查看更多图片 ©偏方影像
MDO 将沙发放在直面户外花园的位置,自然地将窗外景色兼纳于室内,人们可以慵懒的躺在沙发上感受四季的交替。
左右滑动查看更多图片 ©偏方影像
©偏方影像
©偏方影像
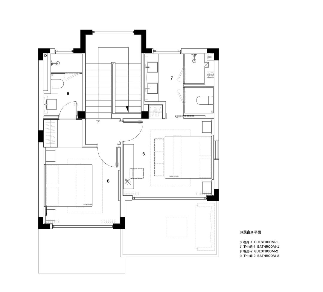
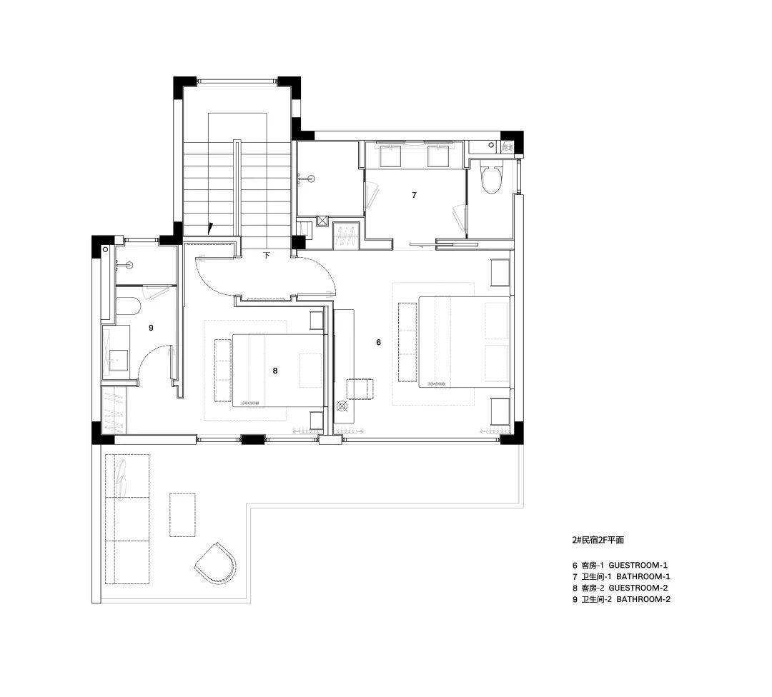
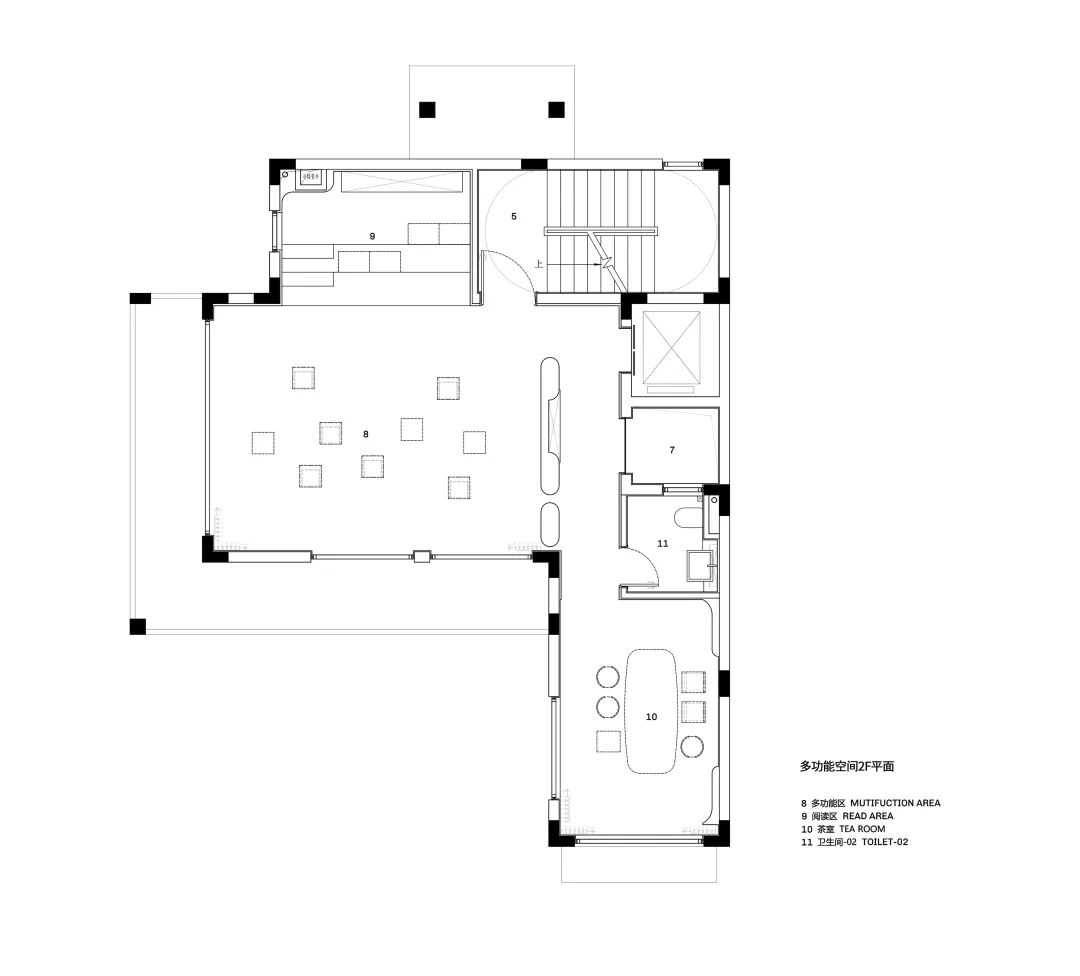
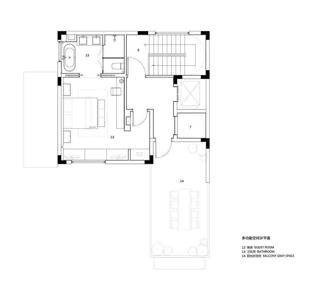
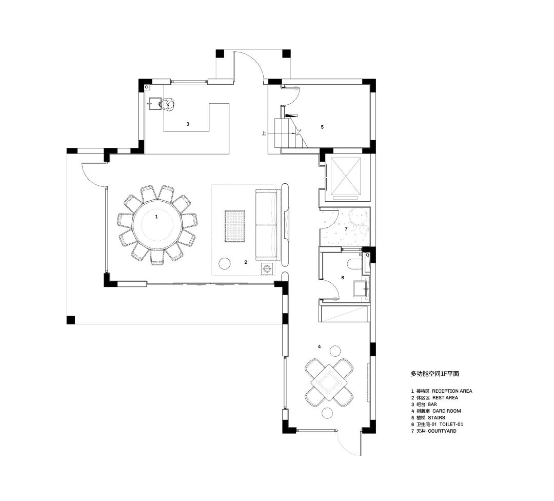
多功能空间融合了成都的地域文化特色,如麻将与盖碗茶。当洁净的晨光将树荫印映在窗帘上时,抽象的时间仿佛变得可以触碰,在视觉获得享受的同时,精神也变得更为轻盈。我们在一层热闹的公共域和三层安静的私有域之间创建了一个‘缓冲区’。二层空间被视为完全适应环境变化的空间,为文教研学提供场地;茶室也在与自然和光影互动时,尽显和敬清寂之韵。
©偏方影像
天地悠悠、往来种作,田间采鲜,桑麻清茶,四季交替.......... MDO将环境的感触、材料的研究、在地性的探索及空间美学等相融于惬意的自然中,为来访者输送能量,鼓励人们在此处找回和自己的链接。给自然及其中的生活留下了大量可谱写的篇章。
©偏方影像
©偏方影像
©MDO 木君建筑设计
©MDO 木君建筑设计
©MDO 木君建筑设计
©MDO 木君建筑设计
©MDO 木君建筑设计
©MDO 木君建筑设计
©MDO 木君建筑设计
©MDO 木君建筑设计
室内设计:MDO 木君建筑设计
设计总监:Justin Bridgland、徐伩君
设计主创:高达、董萌萌
设计团队:宋万洋、辛舒雅、黄硕、郑好、鞠瑶、朱俊
建设单位:成都绿城川菜小镇实业有限公司
项目地址:中国,成都
项目业主:绿城桃源拾光共享农庄
▼ 公司介绍
由徐伩君女士和桥义先生于2014 年共同创立的MDO(MORE DESIGN OFFICE)木君建筑与室内设计事务所,是一家立足于中国上海,在英国伦敦设有分公司的多元化设计公司。
MDO(上海)主要提供国际化的地产与规划、建筑设计、城市更新、商业设计、产品与展陈设计以及视觉设计等六大设计服务,MDO (UK) 专于设计和开发欧洲的高端可持续住宅项目。
徐伩君女士是英国ARB 注册建筑师和室内设计师,桥义先生是英国皇家建筑协会RIBA 认证建筑师也是音乐家。不同的文化背景与领域跨界,让MDO 对设计中的“转换”概念十分重视,这使MDO 的作品能够自然的融入多元的文化底蕴。同时,MDO 致力于探索空间与尺度、比例、细节、材料、光影及色彩的互动关系,为空间营造一段特别的旅程。
本文来自微信公众号“OffsetDesign设计偏移”(ID:offsetdesign)。大作社经授权转载,该文观点仅代表作者本人,大作社平台仅提供信息存储空间服务。










