"大平层设计
美国迈阿密海岸线,以得天独厚的地理环境,吸引着全世界的人的目光,已成为全球顶级豪宅聚集地的代名词,从库哈斯到扎哈·哈迪德、让·努维尔,这里汇集的普里兹克大师作品数不胜数。
今天要给大家介绍的是OMA在迈阿密的新作——The perigon,该项目于今年11月开工建设,预计2025年完工。
OMA的“建筑晚餐”▽@设计气象台
那么OMA这次的新作,又会带给我们怎样的惊喜呢?
01.
建筑设计
The perigon是OMA在迈阿密的第一座住宅,该项目由7座相互嵌套的塔楼组成,每座塔楼都朝向远处的海滩,拥有无限壮阔的视野。
住宅采用独一无二的阶梯式建筑外观,层次分明,高低错落,塔楼之间的有机正交交会,产生直角和曲线的露台结构,两者之间形成微妙的对比。
塔楼之间正交产生的结构关系▽
直角和曲线的露台结构▽
每层的露台▽
四个较低体量的公寓露台设有游泳池,而最高的塔楼设有绿色休闲露台。
场地平面图▽
景观设计由Gustafson Porter+Bowman 打造,周围的层层绿植形成一道风景屏障。
02.
室内设计
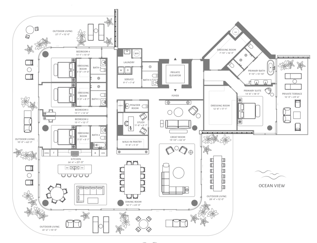
室内设计灵感来自迈阿密海滩的自然色调及当地的充足光线,双层高的大堂和落地玻璃门窗为内部空间引入了充足的光线,石质的接待台与百叶样式的金属背景墙,提升了空间质感与纵深。
大楼内的 83 间公寓中的每一间都将采用落地玻璃窗,延伸视觉和空间感,全开推拉门可通往露台,分布在不同层次的公寓也都能够更轻松的眺望大海。
除此之外,配套设施带有室外泳池、室外水疗中心、冥想休息区、健身房、鸡尾酒吧、私人餐厅、电影院和儿童游戏室等。
室内恒温泳池▽
健身房▽
屋顶休闲露台▽
在这里,绿植环绕,户外碧海蓝天,可以充分享受慢时光的自由惬意。
[好书推荐]
新微设计“大美系列”设计丛书
中式设计 · 三部曲
《中式居住》&《禅居》&《中式院子》
点击下方图片订购该图书
▼
[好书推荐]
新微设计“大美系列”设计丛书
中式设计 · 三部曲
《中式居住》&《禅居》&《中式院子》
点击下方图片订购该图书
▼
GHDA环球人居设计大奖
城市更新设计大赛
Global Habitat Design Awards
建筑+景观+室内+文旅+民宿酒店
第 | 二 | 轮 | 申 | 报 | 开 | 启
点击下方图片查看大奖详情
▼▼▼
GHDA环球人居设计大奖 城市更新设计大赛 Global Habitat Design Awards 建筑+景观+室内+文旅+民宿酒店 第 | 二 | 轮 | 申 | 报 | 开 | 启 点击下方图片查看大奖详情 ▼▼▼ ![]()
[民宿考察推荐]
高端民宿运营、设计、建造考察学习
[莫干山站]
第73期
[12月12日-12月15日]
点击下方图片查看考察详情
温馨提示:本次民宿游学限40人,满员即止,有意参加者请及时联系常老师报名(电话&微信131 2062 8228 )。
[民宿考察推荐] 高端民宿运营、设计、建造考察学习 [莫干山站] 第73期 [12月12日-12月15日] 点击下方图片查看考察详情
![]()
温馨提示:本次民宿游学限40人,满员即止,有意参加者请及时联系常老师报名(电话&微信131 2062 8228 )。
[好书推荐]
新微设计13本“大美系列”设计丛书
建筑+景观+室内+民宿+酒店+庭院
[全能设计师必备丛书]
[公司图书采购必选]
点击下方图片查看详情
▼
每一本图书各具特色,围绕着“创造更美好的人居环境”逐层展开,从建筑、景观、室内等不同的设计角度,阐述着我们一直所探寻的居住理想,是一套不错的全领域设计丛书。欢迎大家参与支持,您的支持是我们不断前行的动力。
[好书推荐]
新微设计13本“大美系列”设计丛书
建筑+景观+室内+民宿+酒店+庭院
[全能设计师必备丛书]
[公司图书采购必选]
点击下方图片查看详情
▼
每一本图书各具特色,围绕着“创造更美好的人居环境”逐层展开,从建筑、景观、室内等不同的设计角度,阐述着我们一直所探寻的居住理想,是一套不错的全领域设计丛书。欢迎大家参与支持,您的支持是我们不断前行的动力。
给大家推荐一个超棒的室内设计号
居住空间 | 新锐室内设计平台 长按下方二维码并识别,即可添加关注 ![]()
本文来自微信公众号“建筑周”(ID:CAW-2014)。大作社经授权转载,该文观点仅代表作者本人,大作社平台仅提供信息存储空间服务。










