/缠绕设计大法!为单身狗创造偶遇与邂逅的空间!| 建筑精说建筑

缠绕设计大法!为单身狗创造偶遇与邂逅的空间!| 建筑精说建筑



建筑

说建筑

ARCHITECTURE 

DISASSEMBLING

科普一个半冷不热的知识:

中国是一个高语境文化国家。简单来说,就是,当我们想表白的时候会说:“今晚的月色真美~”

当我们感受到能力差异,会说:“感受到了世界的参差~”

当张东升询问:“一起爬山吗?”,大概要考虑下身体状况。

而当建筑师邀请你一起爬山——那他真的只是想和你一起爬山而已


1.项目背景

据东京约80分钟火车的群马县,大田市,其车站位于市中心,每天有超过10万人使用。但车站周围的区域非常安静,购物区萧条。为了打破日本普遍存在的这种情况,计划植入一个文化建筑,让太田站前恢复生机。

为此,太田市发起一场国际竞赛


俗话说,当建筑师面对一个甲方,勉强能使尽浑身解数满足五彩斑斓的黑。

当面对一百个甲方,大概就只能带他们去爬山了(bushi),而建筑师平田晃久面对的就是上百个甲方。


2.任务书确立

平田深谙兼听则明之道,在项目中之初就开展了大面积的民意调查。


首先,调研了太田市现有的四大图书馆的使用情况,同时对不同职业、年龄、社会背景人群开展大量问卷调查。



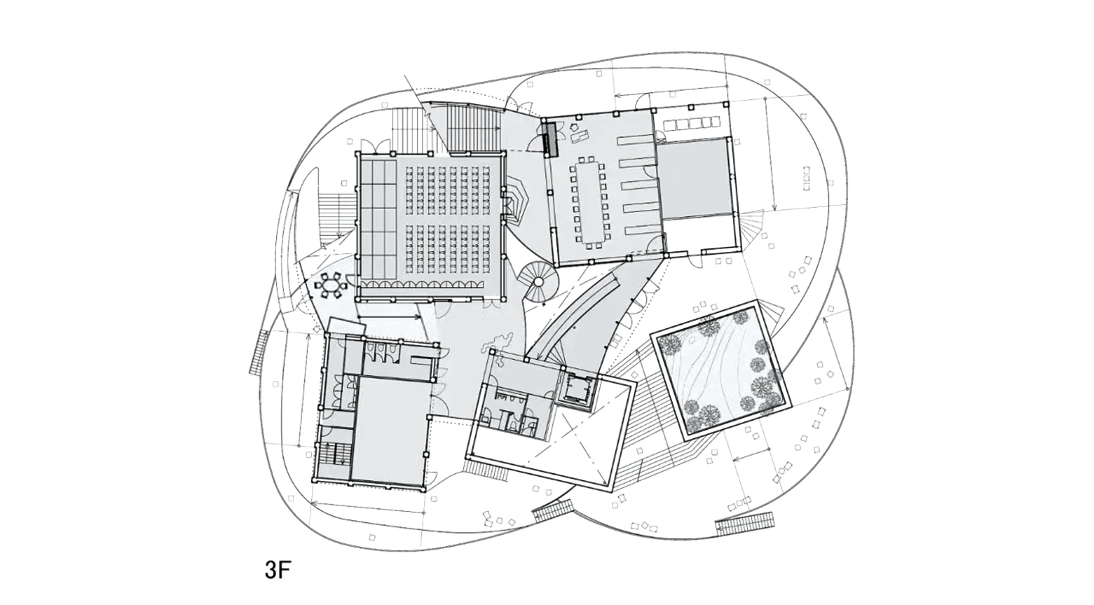
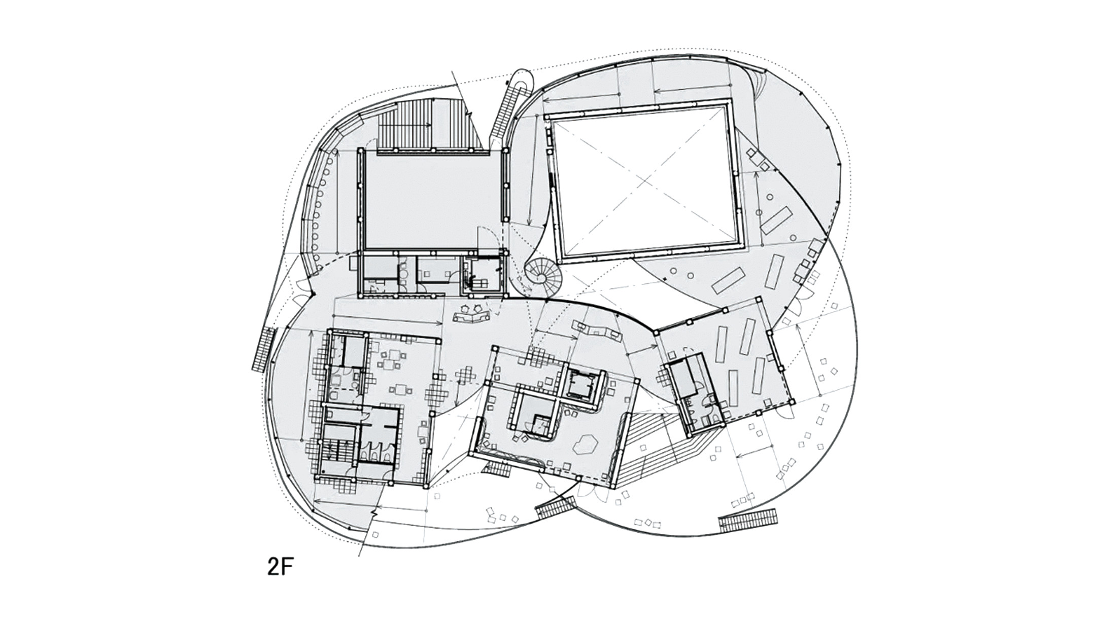
最终,“整活”任务书 基本确立为,在4600㎡的基地上,建立一个

可吃喝的图书馆+现代艺术美术馆+停车空间+开放式广场


然而,市政规划道路再“横插一脚”,本不富裕的场地,只剩一半,自然划分出停车空间,室外开放广场。

计划规划建筑面积约3200m2=图书馆1800m2+美术馆1400m2



3.概念提出

那么问题来了,两大主体功能要怎样组合?建筑体块要集中还是分散?

成年人不做选择,两个都要——分散但不完全分散。

平田提出“karamarishiro”(缠绕)的概念,像蝴蝶围绕树枝和花朵自然形成领域,没有明确的边界和围合,相互缠绕,形成一个复杂而连续的三维空间。

从城市空间自然步入建筑,连续步道向上,楼层自然衔接,不同流线步道相互交错,形成激发偶遇的场所。


4.逻辑生成

第一步 “造山”

据问卷调查,功能大致确立为阅览空间、咖啡厅、展览空间、办公空间、声影室、储藏室。


下面正式进入场地,首先熟悉下场地周边。


首先,在场地升起一个基本体量——


单体or分散?

为城市自然步入建筑,在场地内延续城市街道氛围,建筑师选择分散体块。


综合功能体块尺度,融入城市肌理,最终确定为五个混凝土盒子。


众所周知,均质空间缺乏导向性、主次关系通过一些形体扭转,形成局部放大或缩小,创造出核心空间


调整适宜的角度,达到建筑内部创造舒适的气流运动,利于建筑节能。



第二步 开始“缠绕”

如何能实现由城市自然引入建筑,并且像在城市中连续行走一样,自然步入下一层?

——坡道 “缠绕”

首先,分为室内外两套系统,根据人流来向,在建筑东、西、南侧设置入口。



建筑内部以阅览、展览为两大主线,开始“缠绕”。要达到最大限度的缠绕,平面得从建筑对角线开始。

水平对角线


空间对角线



在基础“缠绕流线”上进行优化。



将两条流线叠合在一起看看?


缠绕由内而外,室内流线基本厘清。现在开始室外“缠绕”


室外环游路径也要安排的明明白白。南北各一,分别连接室外开放广场和太田火车站。


第三步 丰富路径体验


逛图书馆、美术馆的目的不仅仅是为了行,更在于停。

通过局部放大交通空间,形成停留休憩空间,把坡道变成了非正式的座位和学习区,植入节点,形成平台。

Be like


调整楼板高度,将平坦区域合并或连接到倾斜的循环系统。在建筑中表现为——




实景长这样。




再插入咖啡厅、影音厅。


植入无障碍交通空间。


最后,常规操作,屋顶绿化。



建筑师一顿操作,结构急忙跟上。通过钢圈,在五个钢筋混凝土长方形周围建造一圈斜坡——

结构达成√



5.创造激发偶遇的场所

不仅仅是简单地向上、向下或穿过,而是蜿蜒穿过这座建筑,或停驻凝视远处的群山或偶然瞥见玩耍的孩童。在不同的高度平台形成不同的鲜活生活图景。

也就是说,一种创造偶遇和邂逅的场所。这大概就是隐藏在“缠绕”背后的浪漫意义吧~




 一些图纸











新作者+1

本期原创 / 尔夏

# 重庆大学建筑专硕乱入研究生,努力不无聊,努力变有趣


本期原创 / 陈亢亢

# 重庆大学建筑专硕研究生,建筑学海中想要把泳圈脱去的旱鸭子,喜欢除美食以外一切新奇的事物

编辑 / 白雎   审核 / 尤加利叶、

本期内容为一只建筑精原创并编排,版权归一只建筑精所有。欢迎转发,转载请在后台键入【转载】、商务合作请在后台键入【合作】。


RELEVANT

相关内容


成为一个有钱的社恐——这真是我的梦想小屋 | 建筑精说建筑

作者:萧萧 小小籁籁

SELECTED

精选内容


从戏园、妓院、到改造房——论北京八大胡同的沧海桑田 | 建筑精杂谈

作者:安藤小李 HAO


现代建筑真的没有装饰了吗?| 建筑精杂谈

作者:缘宝 西风

【一只建筑精的文创小店】

最近有路易斯·康的建筑秩序系列文创新货到店,共有4款嗷

▽点击下方图片链接查看建筑精文创推文详情



怎么找到我们的文创小店呢:

  1. 淘宝搜索店铺【一只建筑精的文创小店】,那个戴着红帽子的就是我们;

  2. 拿起手机淘宝扫一扫下面介个【二维码】即可

▲淘宝二维码

不想看文字?

点击【原文链接】即可关注阿精同名b站号

建筑解析视频版,给你不同的体验!

👇

本文来自微信公众号“一只建筑精”(ID:Arch_Elf)。大作社经授权转载,该文观点仅代表作者本人,大作社平台仅提供信息存储空间服务。