\🏠/
营造家今天为大家推荐的作品
来自好好住认证设计师@文君原创空间设计
这套85㎡的房子位于北京朝阳区,业主是一对90后年轻夫妻,希望自己的家是温馨、精致、舒适又拥有质感的小窝。设计师取消了客餐厅的电视和投影,临窗一侧做了岛台+餐桌,增设了西厨区,实用且光线充足,另一侧又设置了壁炉,搭配单人沙发和座椅,打造成舒适的休闲区,加上过道上整墙的收纳柜,既可收纳又可展示,家也变得更简约整洁。
一起来看看吧!
房屋信息
户型 2 室
使用面积 85 ㎡
装修花费 45.0 万元
房屋位置 北京 朝阳区
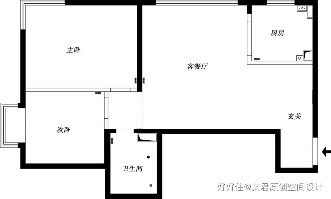
01
户型图
文君原创空间设计:原始结构图。
- ▷ 原户型问题:
1、玄关面积浪费,光线昏暗。
2、过道狭长,利用率不高。
3、主卧门对着卫生间。
4、厨房操作空间小。
- ▶ 设计需求:
1、全屋智能系统,添置新风和中央空调,地暖,小家电等。
2、需要使用笔记本和阅读的区域,喜欢长条写字桌,尽量不使用布窗帘。
3、考虑壁炉。
4、玄关处收纳多一些。
5、想有厨岛,西厨和中厨的区域分开。
6、电视卧室客厅二选一,衣帽间可以考虑,次卧多功能。
7、不要留卫生死角。
- ▷ 全屋格局需要重新合理规划,增加更多的储物空间。
文君原创空间设计:平面布置图。
- ▶ 改造重点:
1、将厨房区域的墙体打掉之后重新规划,保证中厨1.5米宽的使用距离,合理利用客餐厅的空间,业主想要的西厨位置有了;
2、过道打造整墙的定制柜体,可收纳可展示。
3、电视最终考虑在了主卧,女主人的衣帽间就藏在电视背景墙后面。
4、次卧多功能,采用壁挂床设计。
5、卫生间是隐形门,拥有双人的淋浴间和超强的收纳功能,还有无卫生死角的壁挂马桶。
文君原创空间设计:动线图。整个设计客餐厅是亮点,以轴线分割,开放式布局。看完整屋后可以感受到整个空间的材料多元化,以金属,木制,玻璃,水泥为媒介,在保持风格统一的同时,又将空间层次感巧妙渲染。在看不到的地方,全屋还运用到了智能家居——灯光、窗帘...带来更为高级的居住体验。
02
玄关
文君原创空间设计:个性的挂件,让我们一进门就感受到了一股现代时尚的质感。对门定制柜放鞋子、包包很方便;拐角这个墙边桌既是配合风格的搭配,也是一些零碎摆件的放置处。
03
客厅
文君原创空间设计:从厨房隔墙看。区别于传统的客餐厅,经过和业主讨论方案后,最终表示将电视放在了主卧,客厅没有电视/投影,灰色和木色交错的柜体,白色的单人沙发,黑白交错的橱柜等,以低饱和度的“高冷”姿态,精准适配作为空间的主旋律。
文君原创空间设计:从过道方向看,一整面玻璃窗将光线引入室内,顶上用线性灯拉开了整个空间的层次感,地面用材质划分了不同的活动场所。靠内里是设计师为业主考虑的西厨区域,旁边则是舒适的沙发休闲区。
文君原创空间设计:从西厨方向看,业主想要的壁炉做在了与中厨房的隔墙上,与现代座椅搭配出时尚舒适的休闲区。
文君原创空间设计:从窗户方向看,自然光下,整齐一体的灰色定制柜让空间更加整洁、高级。
04
厨房
文君原创空间设计:L形的操作台,嵌入式的冰箱,严格按照1.5米宽的中厨所需要的空间布置。
文君原创空间设计:西厨在开放区域,以整洁的黑白橱柜占据了一面墙。中间岛台和餐桌一体化设计,大理石与原木搭配,个性简约。
05
餐厅
文君原创空间设计:岛台和餐桌一体。长度、宽度都足够业主二人使用;临窗设计让用餐光线更加充足。
06
过道
文君原创空间设计:不同颜色的地砖分隔出过道与客餐厅,顺着这个角度,进入下面的功能区。
07
卫生间
文君原创空间设计:先是卫生间。整体色调沉稳理性,通铺大理石纹路的墙地砖,辅以木色的收纳柜体,再配合凹龛的使用,存放女主人各种各样的护肤品足够了。
08
卧室
文君原创空间设计:卧室延续了简约时尚的现代风格。整体没有过多的造型,配色简单。L形窗户连接上了灰色护墙板,床与墙体间宽裕的位置是预留出的婴儿床区域,方便未来业主照顾孩子。
文君原创空间设计:细节图。天使雕像床头托台、时尚线型吊灯,营造出莫名的和谐感。
09
书房
文君原创空间设计:从门口方向看,整体定制的柜体,下面是壁挂床,上面是展示柜;设计了业主喜欢的长条书桌,1.8米的长度,可供两人办公使用。
文君原创空间设计:从窗户方向看,以多功能的形式展开,不需要过多的个性化设计。未来在宝宝出生之前,这里是男主人的书房;在有客人留宿的情况下,这里可以变成次卧;在宝宝可以独立睡觉的时候,这里可以变成儿童房。
设计师还晒了更多作品
长按二维码去看看吧
👇
品牌合作:mkt@haohaozhu.com
本文来自微信公众号“营造家”(ID:NicelivingDesigner)。大作社经授权转载,该文观点仅代表作者本人,大作社平台仅提供信息存储空间服务。










