自然毛坯风
有审美会呼吸的设计
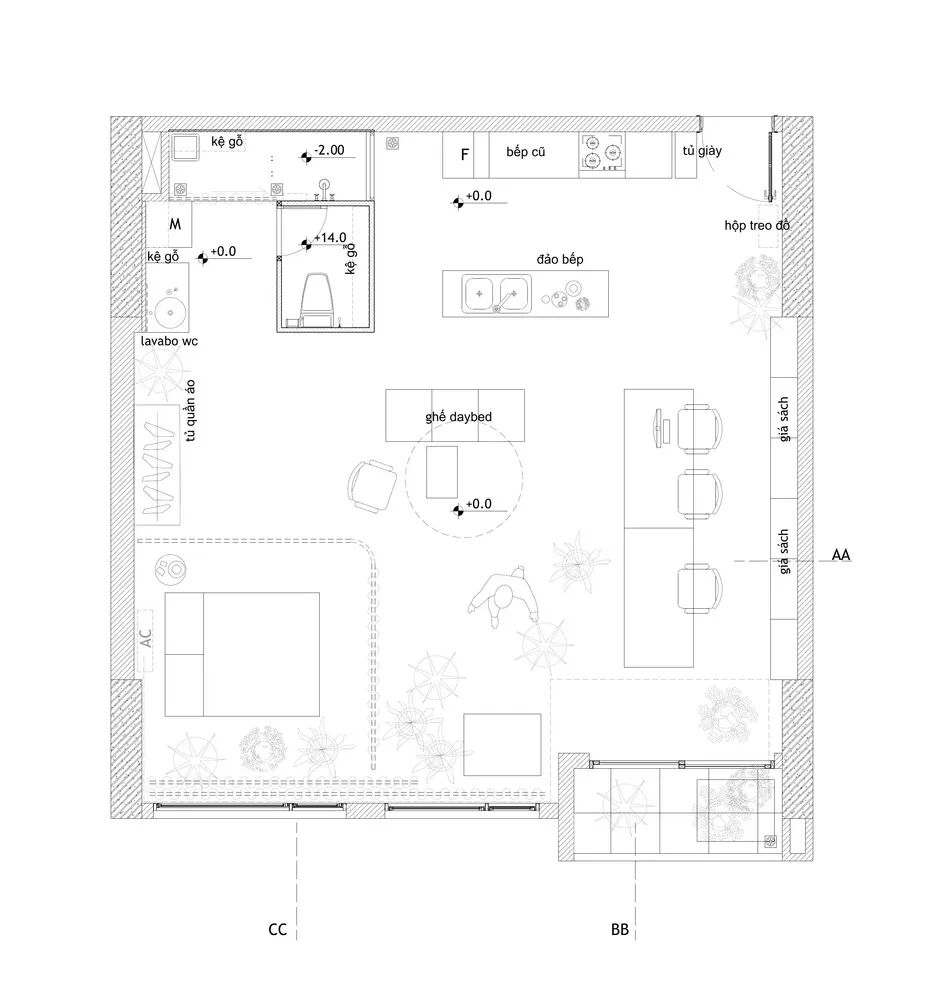
01
给诗意之人住的毛坯房
02
日式自然毛坯风
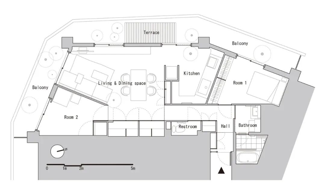
03
热带度假毛坯风
看完这三个“自然毛坯风”,你喜欢上这种设计了吗?
本文来自微信公众号“梦想家颜究所”(ID:idzoom2008)。大作社经授权转载,该文观点仅代表作者本人,大作社平台仅提供信息存储空间服务。
自然毛坯风
有审美会呼吸的设计
01
给诗意之人住的毛坯房
02
日式自然毛坯风
03
热带度假毛坯风
看完这三个“自然毛坯风”,你喜欢上这种设计了吗?
本文来自微信公众号“梦想家颜究所”(ID:idzoom2008)。大作社经授权转载,该文观点仅代表作者本人,大作社平台仅提供信息存储空间服务。
