/北京平谷丨305㎡现代风乡村民宿设计,美呆了!

北京平谷丨305㎡现代风乡村民宿设计,美呆了!


 

项目名称丨北京平谷朱家现代民宿终稿

项目位置丨北京平谷

建筑尺寸丨16.70*9.00m 

占地面积丨179.92㎡

建筑面积丨305.92㎡

建筑风格丨现代

结构形式丨砖混结构


——



 

建筑效果图




 

东南侧人视图


该项目位于北京平谷,主体为二层+屋顶露台现代民宿。场地的东侧为村里主路,南侧是胡同,西侧和北侧是邻居。



 

东侧入户人视图


 

南侧建筑效果图


建筑立面采用现代简约的设计手法,外墙为杏色质感漆的纹理,二层出挑的阳台为深灰色质感漆,通过材质的搭配和色彩对比强化体块关系。


屋顶部分采用深灰色压边,通过体块的悬挑和穿插,使得建筑体量层次丰富且多变。



 

 

建筑局部人视图


整个庭院空间在傍晚灯光的映衬下,呈现及其温馨浪漫的氛围,看似简洁,却充满了设计感和趣味性,最大程度地吸弓|居住者来到户外休闲和交谈。



 

庭院人视图


 

东厢房人视图


东厢房为前台接待及餐厨功能,庭院空间以硬质铺装、绿地草坪和休闲区进行空间属性划分,便捷交通的同同时亦可让人驻足,小憩和交谈。



 

东北侧人视图



 

鸟瞰图




 

西南侧鸟瞰图


 

西北侧鸟瞰图


受限于当地的限高政策,屋顶露台通过栏杆和女儿墙构成形体组合,延展立面层次。


西北侧退让露台,设置了室外楼梯到达屋顶露台,栏杆采用竖向格栅造型,保证安全的前提下丰富细节构造。北侧和西侧是邻居,所以该处露台的通过围墙围合,局部开设不规则洞口增加采光。



 

东北侧鸟瞰图


深色的框架和大面积的玻璃窗,使建筑体块泾渭分明,同时又增加了室内的采光和通风。每一个房间都有其独特的观景视角。


 

平面详图




 

一层平面图


一层休闲厅采用下沉式,打破传统空间体验和视觉感受,营造更有深度的空间层次。共设计了两间套房,根据使用人群和空间属性的不同,分为大床房和亲子房


大床房的泡池放在半室外的西南侧,亲子房的泡池放在了东北侧私人庭院中。


东侧厢房总计分为三个区域,分别是前台接待、就餐和厨房,临近庭院部分全部采用落地窗设计,增加视觉通透感和观景角度,使得每一处空间都别具趣味。



 

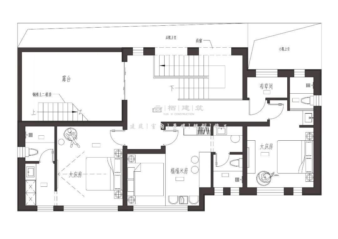
二层平面图


 

露台平面图


二层共设计了三间卧室,空间尺度舒适适中,布局不一,来到这,您总归会找到适合自己的一间卧室享受静谧时光。



 


乡村民宿的设计,激发了人们从城市的日常工作中逃离,回归自然的感觉。可能会在这段时间里和孩子们一起玩耍,享受这个简单而美好的时刻。


本文来自微信公众号“云栖建筑”(ID:yunxijianzhu)。大作社经授权转载,该文观点仅代表作者本人,大作社平台仅提供信息存储空间服务。