/北京老鼎丰总部 — 融新于旧、穿梭其中|如恩设计

北京老鼎丰总部 — 融新于旧、穿梭其中|如恩设计


PROJECT BY:

如恩设计

LOCATION: 

Beijing, China


如恩设计将位于北京五环东北附近的老旧纺织厂改造成了老鼎丰的总部和零售概念店。如恩设计在一个旧的砖砌仓库建筑中插入了一个新的混凝土建筑。

©朱润资

©朱润资

©朱润资

©朱润资

该项目位于朗园Station创意园区内,如恩将由一个主仓库和三个附属建筑以及一个庭院花园组成的前纺织厂改造成一个具有零售、画廊和办公空间的新空间。

©朱润资

©朱润资

©朱润资

在设计中,建筑师在过去和现在之间形成了明显的对比,同时对该品牌的标志性产品——中国传统烘焙食品进行了抽象的空间引用。

©朱润资

©朱润资

对于这样的项目,如恩的策略是首先彻底调查现有建筑的哪些部分可以保留和修复,而新添加的内容不仅要尊重现有元素,还要与现有元素形成对照。

©朱润资

©朱润资

©朱润资

设计灵感来自老鼎丰的主要产品——传统中国糕点,这些糕点通常被塑造成各种装饰形状。该项目如同形态各异的糕点在模具中成型一般。同样,该建筑引入了一种由浇注混凝土制成的新物体,浇注在旧砖壳中,各种开口和留白形成了主要的零售、画廊和办公空间。

©朱润资

©朱润资

在浇筑混凝土并使其固化后,专业的工匠用凿锤进行细致的雕琢打磨,使其形成柔软的质感,既与旧砖形成对比,又与旧砖相得益彰。在某些时刻,新的内部混凝土渗出并出现在立面上,或是填补了旧砖的缝隙,或是勾勒了新的开口。

©朱润资

©朱润资

©朱润资

©朱润资

©朱润资

©朱润资

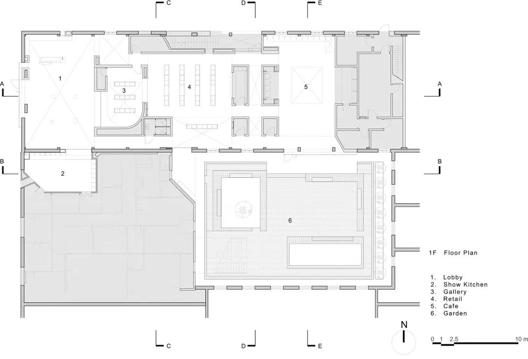
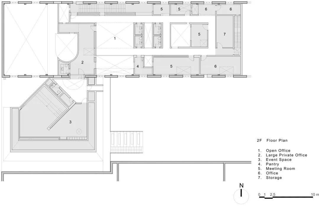
新旧结构之间的空间成为咖啡馆和多功能厅的灵活区域。一楼为展区、旗舰店、花园、咖啡厅,二楼主要作为总部。

©朱润资

©朱润资


©朱润资

©朱润资

©朱润资


穿过新的混凝土空间,体验新建筑和旧建筑之间的对话,传达过去、现在和未来之间的联系感,为这个历史悠久的北京糕点品牌提供了一个新家。

©朱润资

©朱润资

©朱润资

©朱润资

©朱润资

▼  项目图纸


场地平面图 ©Neri&Hu

1F ©Neri&Hu

2F ©Neri&Hu

屋顶平面图 ©Neri&Hu

立面图 ©Neri&Hu

剖面图 ©Neri&Hu

项目类别:零售空间

建成时间:2022

建筑面积:1580㎡(总)

用地面积:1345㎡

占地面积:974㎡

建筑设计:如恩设计

主创设计:郭锡恩,胡如珊

主持协理:赵磊

设计团队:冯立星,田骅,笪文博,韩笑,魏铭瑄,Nicolas Fardet,黄惠子,王吕齐眺

项目地址:中国,北京

项目业主:北京老鼎丰食品有限公司

项目图片:朱润资


▼  往期推荐

合肥巢湖春宴餐厅 — 让自己沉浸在快乐时刻|Ippolito Fleitz Group

韩国 Flink 面包咖啡店 — 灵活多变的模块化商店|GGJH

瑞士无国界医生总部 — 会呼吸的多元化办公|Sauerbruch Hutton
长沙 MINI 城市展厅 — 自然与都市交织的 “MINI” 世界|ARCHIHOPE
韩国 MRNW 大邱文化中心 — 内外空间的叙事构成|Society of Architecture

本文由OffsetDesign设计偏移原创/编辑内容
未经授权,严禁转载
欢迎给OffsetDesign设计偏移分享、点赞、在看
你的喜爱是我们的动力!谢谢!
▼  更多精彩内容

本文来自微信公众号“OffsetDesign设计偏移”(ID:offsetdesign)。大作社经授权转载,该文观点仅代表作者本人,大作社平台仅提供信息存储空间服务。