艾未设计世亮
导演的责任是将剧本搬上舞台,将文字变成生命,将抽象变成具体。设计师即是空间导演,由设计师世亮带领的上海艾未设计操刀北京西山杨公馆,以时空为引,以居者为主,加入前瞻性的生活哲思,缔造出现代简约、时尚轻奢的诗意居所。
业主明确了解,未来十年的居住体验,家庭成员的多样需求,甚至办公与招待属性的满足程度等,皆是影响幸福感的重要因素。
在先后与六位设计师进行方案沟通、设计中断后,最终与上海艾未设计不谋而合,共同构筑纯粹惬意的安憩之地。
礼遇 · 思绪蔓延
设计师世亮通过对功能梳理、动线规划,以及整个逻辑的串联,为地下二层配备了社交艺术酒廊、专业影音室、分类衣帽间、储物间及客卫,在满足男主人工作与社交需求的同时,也为家庭成员提供了休闲娱乐场所。
玄关似一座水晶宫殿,以四面通高的玻璃门,将内、外朦胧划分,渲染秘境之感。每组门的开合转换,可实现不同功能区的划分。围绕此而设的隐藏式储物柜,旨在满足居者不断增长的收纳需求。金属网勾勒出旋转而上的楼梯轮廓,令人心向往之。
踱步向前,一抹跳跃的红随即而出。昏暗的灯光恰到好处,众人于此围炉品酒、高谈阔论,灵感与创意自然而生。画作亦别具巧思,以无限延展的花,映射蓬勃生长的思维意识,虚幻化做实物,增添别样趣味。
影音室以简洁纯粹淡化空间属性,材质、灯光与艺术的融合,阔奢气氛弥漫其中,带来更优观感。
水吧台在金属与石材碰撞,线条和饰面交错间,打造出时尚、丰富的一隅。
社交 · 诗意流转
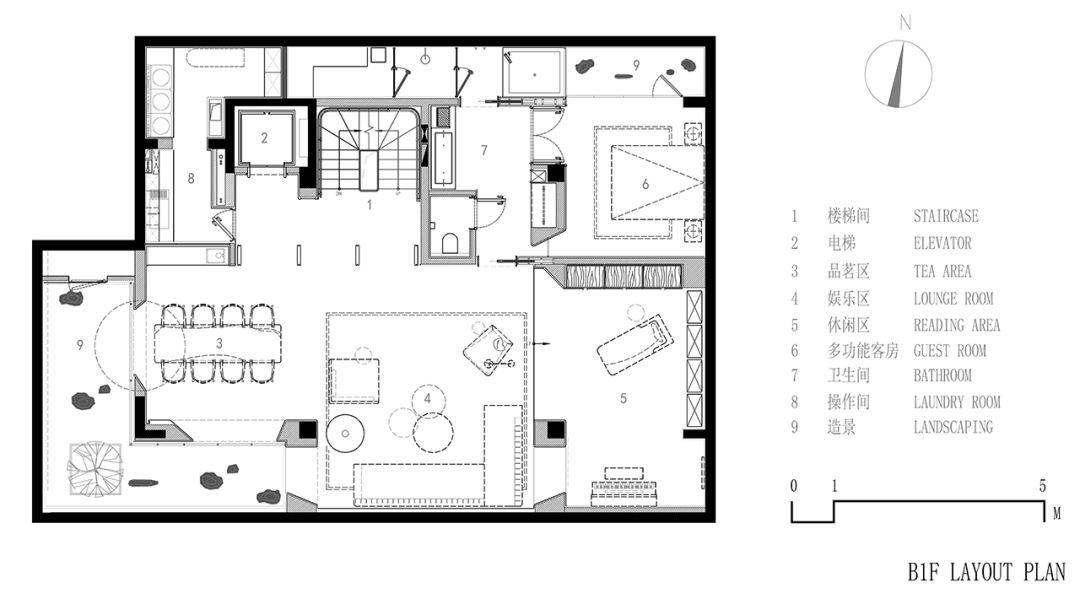
负一层别出心裁,以天井造一方生态小景,并灵活运用材质、线条、色彩与光影的变化,于此谱写出和谐的韵律之美。
在深入沟通了解下,设计师世亮匹配居者兴趣爱好,规划出饮茶、阅读、天光钢琴房等休闲区,及多功能组合套房,强调互动联通,提升居家品质。
休闲区以淡雅的黑白色,搭配清新自然、柔软舒适的陈设,在开敞交互与框景设计中,淡化界限,以容纳生活百味。
光,从天窗洒落,钢琴仿佛披上星光点点,弹奏出绝妙的乐音。悬挂的画作《等光洒进来》,则呼应场域气氛,让这一隅更加耀眼夺目。阅读区作为陶冶情操的延续,以借景手法与温润质地,造一方优雅恬静。
饮茶区采用建筑的开口设计,让方与圆相结合,呼应东方文化中的天圆地方。天窗的设置,便于将阳光引入室内,而洞口金属编织的屏风则起到些许遮挡作用,随着时间流逝,照射角度亦随之变化,光影似乎成了大自然的调色板,描绘出一幅幅趣味、温馨的画卷。
尊贵礼遇在客房展现得淋漓尽致,以此为中心,可灵活组合周围的空间,形成一个带有自然植物景观,具备泡池、桑拿于一体的度假式套房。
楼梯采用黑白色系的线条上下延伸,仿佛水墨流转,诠释出场域的关联与层次变化。
日常 · 简雅随心
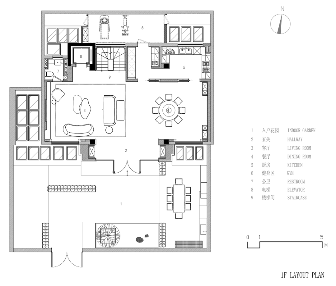
一层置入多元化的生活场景,规划出客厅、餐厅、中西厨及阳光健身房,室外增设绿植区和BBQ露台,行动坐卧、饮食起居,不放过每一个细节,以期还原最契合人居的休憩场所。
客厅摒弃繁冗,以素雅的基底,凸显材质与工艺本身。地毯的表现形式与大理石的肌理,呼应整体之余又演绎出多样层次,赋予居者丰富的感官体验。
烹饪享食间,予人艺术联结与审美熏陶。以多样的展陈方式提升餐厅格调,现代手法表现的水墨画作为东方元素延续于此,圆弧与方正对话,加以多样灯光的点缀,无形中增添了时尚之感,唇齿留香,视觉盛宴。
大理石的自然肌理嵌入金属,营造别具一格的公卫质感,时尚又不失个性。
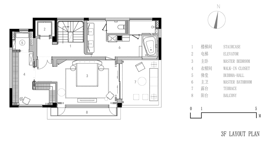
私境 · 心之所向
对品质居所的诠释,融入到每一方寸间。卧室作为身心的避风港被置于上层,设计师世亮以内敛的手法,在格调中寻求宁静,以实现私密领地不受打扰。并精心调和居者、场域与自然的关系,在有限的空间里演绎无限巧思,拓展更多可能性。
温润格调融合东方意蕴,多层灰度与咖色交织,舒缓的弧形与素净的材质碰撞,在老人房勾勒出几分闲适,呈现安然的理想状态。
考虑到空间的多变性与时间延展性,于二层设置多功能房。可升降隐形床能实现不同需求下的功能转换,白天变身儿童娱乐区,夜晚则是保姆间,陪护幼儿起居。房间一侧巧设两扇门与老人房相连,互动性与私密性兼具。
岁月静好,恬淡悠然,似有若无的韵律在主卧流淌。衣帽间、珠宝柜、佛堂及豪华浴室构成完备的功能区,温暖柔和的色调,流畅开阔的动线,以及合理规划的露台,让室内外连为一体,日月星辰,四时八正,最好的风景皆可囊括其中。
灵动、隽永的主卫,以大理石铺就,释放出温煦的自然之美,丰富的光感,舒适的视觉呈现,配合浴缸与壁炉的温馨打造,赋予更高品质与仪式感。
室内设计或许有千万种表达,但落到实处,终归是打造最契合居者个性与气质的家。
这座五层别墅承载着家庭成员对未来生活的期许,世亮与艾未设计团队,以灵活多变的布局,完备的功能分区,自然与艺术的点缀,描绘出居者向往的栖心之境。
任时光荏苒,人事纷繁,灵魂与爱皆有所依。
△负二层平面图
△负一层平面图
△一层平面图
△二层平面图
△三层平面图
项目名称|北京 西山 杨公馆
项目类型|私人住宅
建筑面积|720㎡
项目地址|中国 北京
硬装设计|上海艾未设计
软装设计|上海艾未设计
设计主创|世亮
设计团队|ARVI DESIGN STUDIO 艾未设计
施工团队|毅力恒兴精装
灯光执行|洸泉科技
软装执行|上海睐芙贸易有限公司
项目摄影|郑焰
每天学建筑设计
技法、教程、赏析
长按扫码关注我们
每天学建筑设计
技法、教程、赏析
长按扫码关注我们
本文来自微信公众号“建筑设计之家”(ID:jianzhu78)。大作社经授权转载,该文观点仅代表作者本人,大作社平台仅提供信息存储空间服务。










