ARCHITECTURE & INTERIOR DESIGN
/
Batsmanova Tamara
Batsmanova Tamara是一位来自乌克兰的室内设计师,通过运用色彩与质感,打造出具有复古感与艺术感的居住空间,同时加入功能强大的设计,给人舒适的居住体验。
Batsmanova Tamara is an interior designer from Ukraine. Through the use of color and texture, he creates a living space with a retro and artistic sense, and at the same time adds a powerful design to give a comfortable living experience.
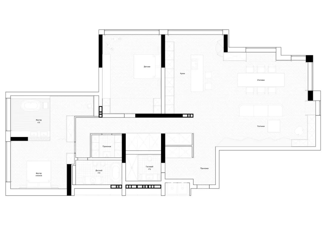
213㎡豪宅
这套简约豪宅将复古艺术与现代设计风格相结合,打造出了一个具有永恒感的居住空间。不同材质的融合恰到好处,给人跨越时空的视觉感受,展现出了别样的空间美感。
This minimalist mansion combines vintage art with modern design to create a living space that feels timeless. The fusion of different materials is just right, giving people a visual experience across time and space, showing a different kind of spatial beauty.
客厅之中没有过多的矫饰,展现出现代主义之下的简约美感,很好地呼应了简约豪宅的主题。造型简单而富有设计感的软装家具十分高级耐看,是居住者高端生活品质的象征。
There is not too much pretentiousness in the living room, showing the simple beauty under modernism, which echoes the theme of simple luxury well. The simple and well-designed soft furniture is very high-end and attractive, and it is a symbol of the high-end quality of life of the occupants.
餐厅里,映入眼帘的是天花板上的白色吊灯,柔和的形状与丰富的层次为空间增添了时尚的气息。岛台选用瓷砖材质,与周围的深木色形成了材质与色彩上的对比。
In the dining room, the white chandelier on the ceiling catches the eye. The soft shape and rich layers add a stylish atmosphere to the space. The island platform is made of ceramic tiles, which forms a material and color contrast with the surrounding dark wood color.
卧室里,大面积的留白奠定了整体明亮而简约的空间基调。柔软蓬松的白色床品为屋主打造出了一个舒适惬意的休憩空间。墙面上的装饰挂画,展现出空间的艺术美感。
In the bedroom, a large area of white space sets the tone of the overall bright and simple space. The soft and fluffy white bedding creates a comfortable and comfortable resting space for the homeowner. The decorative paintings on the walls show the artistic beauty of the space.
浴室里很好的融合了艺术气息,白色的缎带既分隔了空间也提升了空间的整体质感,兼具美观性与实用性。在白色的空间中利用黑色作为点缀,展现出如同水墨画一般的氛围。
The artistic atmosphere is well integrated in the bathroom. The white ribbon not only separates the space but also enhances the overall texture of the space, which is both aesthetic and practical. In the white space, black is used as an embellishment, showing an atmosphere like an ink painting.
空间之中干净利落的线条,展现出空间的几何美感,增加了储物空间,营造出沉稳有格调的氛围。
The clean lines in the space show the geometric beauty of the space, increase the storage space, and create a calm and stylish atmosphere.
本文来自微信公众号“豪邸”(ID:gh_4f5c03beb697)。大作社经授权转载,该文观点仅代表作者本人,大作社平台仅提供信息存储空间服务。










