纵观宏观背景,房地产市场几近触底,救市信号频频发招,尚处盘整期的成都市场,正在度过黎明前的黑暗。
但不容忽视的是,不管市场处于怎样的周期,总有项目能够突出重围成为“爆款”。
-
自今年7月首推至今,国贸鹭原就交出销量近8亿的高分成绩单;
-
半年在青羊区落下两个实景展示区,“第二子”——国贸臻原也将于12月11日亮相。
首入成都不足4月就取地两宗的国贸地产,其深耕成都、势如破竹的布局态势令人侧目,但剖析之下,其市场嗅觉的敏锐度与产品研发能力尤值得推敲。
继国贸鹭原大获成功之后,国贸臻原这个全新项目又将具备哪些爆款基因?或许,不盲目追高,匹配细分客群“刚性”需求、深度揣摩城市地脉人文的择址观与产品观,即是答案。
青羊,王者还是那个王者
三重“不可替代”是底色
先来看三组数据。
数据一:刚刚结束的三批次供地共成功出让44块土地,仅青羊外光华101亩一宗地块溢价成交,其余43宗全部为底价成交。
数据二:2018年至今,从成都主城+近郊各区域住宅市场的量价情况来看,青羊区供应面积、成交面积、存量面积全城最少,但成交以26176元/㎡的成交均价居全城各区域榜首。
数据三:2022年成都主城7区中,供不应求的区域有3个,分别为青羊区、锦江区、金牛区,其中,青羊区也是新房项目供应数量最少的区域。
◎四川知道制图
由此可见,“两集中”土拍运行两年,主城土地逐渐放量,除白纸作画的天府新区外,成华区、锦江区、金牛区、高新区、武侯区也成为了近两年的供应主力,唯独青羊区,稀缺依旧。
这种稀缺,不仅体现在土拍市场的“群雄逐鹿”、还体现在尽管成交均价常年高居各区之首却仍然供不应求。
基于此,四川知道认为:作为成都老牌主城区的代表角色,风头不减当年的青羊区,除了拥有产业回归主城背景下的市场持续高估值之外,还拥有三大“不可替代”的优势。
文化底蕴的不可替代。三千年未迁城址、未更城名的成都,发源地剑指青羊。随着2001年金沙村古蜀都邑遗址被发现,青羊区这个商周时期古蜀国所在地、杜宇王朝、开明王朝都城核心区域也浮出水面。
◎宽窄巷子航拍图
这个串联古今的文脉贵地,如今也是青羊宫、金沙遗址、宽窄巷子、杜甫草堂、锦里等历史文化古迹的聚集地。一个青羊区,半卷古蜀史。如是。
教育资源的不可替代。作为全成都名校资源最为集中的教育高地,成都公立小学10强,青羊区占6席,不仅拥有小学段“五朵金花”中的成都实验小学、泡桐树小学,以及胜西小学、东城根小学、草堂小学、青羊实验等;初中段还拥有“三小联中”中的石室联中和树德实验;高中段,成都四中(石室文庙校区)、成都九中(树德宁夏校区)两大名校的本部均位于青羊区......青羊区的名校阵容,用神仙打架形容毫不为过。
大国重器产业的不可替代。2021年“人文青羊·航空新城”打造战略被提出,这意味着,青羊区的产业极核、成都航空产业“一核、一极、多点”战略中的“一核”——青羊新城,正式开启“千亿级航空产业集群”之路。
◎青羊总部经济功能区&航空产业成果试飞实拍图
如今,拥有成飞公司(132厂)、成都飞机设计研究所、凯天电子等央企、科研院所的青羊新城,已汇聚20家航空产业上游研发类企业,34家中游制造类企业,未来,头部航空企业将达到200家。
如果说,文脉是底气、产业是吸附力、教育是刚需,那么,这就可以解释为什么无论是对于房企还是购房者,无论是土地还是资产,青羊区一定是必须入手的区域。
特别是对于不能踩坑的首置首改,“置业看主城,主城看青羊”似乎已成铁律。
首置首改的购房选项越多,他们对于区域的抉择将会越严谨。成都哪个区域文化与烟火气“最成都”?哪个区域在总价可控的前提下保值度最高?青羊区供不应求的市场现状无疑已经给出了答案。
不到半年卖了近8亿
新进房企国贸是谁?
在高光氛围笼罩之下,青羊的未来看哪里?
主城饱和大背景下,青羊产业外溢、供地外溢、客群外溢已是不争事实,这一点,从青羊区提出的“一轴两心·双擎驱动”发展格局就能看出:“两心”从天府锦城蔓延至青羊新城中心。这个变化,主要是基于青羊老城老旧小区较多界面呈现稍弱、土地及规模化的板块稀缺,因此,新城规划如约而至,青羊区的居住格局也被贴上了“外溢”的标签。
这里,不仅是2021年成都市政府“十四五中优”规划中7个区级副中心之一,也是青羊区首个落地公园城市的区域(绿化覆盖率达到56%),更是青羊3.0时代的典型代表,因此这里成为群雄必争之地也是意料之中。
◎青羊新城实拍图 图源环球网
多个嗅觉敏锐的房企已经用积极拿地的实际行动,为市场指明了方向。
自2021年9月建发央著首开至今,“青羊新城中心”板块内已聚集国贸、建发、中国铁建、香港置地、城投等一线开发商、国企,而其中,国贸的表现尤为抢眼:
-
2021年12月、2022年4月,新进房企国贸在成都“攻城略地”,4个月不到就取地两宗;
-
首发项目国贸鹭原从7月首开至今仅5个月,卖了近8个亿;
-
半年内,两座示范区建成,其成都“第二子”国贸臻原也即将亮相。
国贸究竟是何来头?
截至2022年,已六度蝉联《财富》世界500强第106位、“中国企业500强”第56位的厦门国贸控股集团有限公司,为厦门市属国有企业集团,也是国贸地产的母公司。
而成立至今已35载的国贸地产,其业务矩阵涵盖房地产开发、城市更新与代建、物业服务、商产文旅等,已入驻福建、长三角、中部地区、大湾区、成渝城市群5大区域19座重点城市,截至目前已开发项目面积近1500万㎡、工程代建面积近1000万㎡、城市更新面积超400万㎡、物业管理面积近3500万㎡,匠造精品项目超100个。
不仅厦门东部体育会展新城、滨北超级总部、沙坡尾片区、五缘湾营运中心二期等城市更新项目出自国贸地产之手;基于对每一寸土地的尊重,国贸地产也研发了“原系”、“上系”、“天琴系”等产品系,以实现产品、社区、文化、服务等多维度高质量体验的美好人居。
◎国贸臻原效果图
由此可见,从厦门到成都,从海洋文化到东方院落文化,这个兼具行业敏锐度、资金实力、产品研发能力的企业,在与成都地缘文化的碰撞中,产品力也将持续进化。
好的产品“会说话”
国贸臻原这次可能又要“赢麻了”
初入成都,落子两座“原系”而并非TOP“天琴系”,国贸地产是何考量?
因此,有国贸鹭原5个月劲销近8亿的珠玉在前,国贸地产在成都的“第二子”国贸臻原也将在12月11日亮相。
为什么说这个与国贸鹭原仅一街之隔的全新项目,放在全城的同类型项目中,都非常具有竞争力,四川知道认为主要是基于以下5点:
“双公园环绕”的生态竞争力:项目不仅位于“青羊新城中心”腹地,无主干道车流干扰,同时,其西、南两侧分别直面宽50m、长222m、占地约10876㎡的市政规划公园、已建成的康河街道社区公园;1km范围内还拥有环城生态带及非物质博览园等城市级“绿肺”。
◎国贸臻原外部生态
要知道今年入市的主城首置首改项目中,单面临公园的都属凤毛麟角,更何况“双面临公园”,这,无疑奠定了项目自然禀赋的高起点。
老牌名校环伺的教育竞争力:抛开片区划分,项目500m范围内汇聚康河小学、泡桐树小学&幼儿园、成都市实验小学都市幼儿园、待开发教育用地4所学校/教育用地。
◎国贸臻原外部教育资源
其中,“泡小”、“成实小”两块老牌名校的金字招牌加持下,项目的教育氛围与优势堪称赢在了起跑线上。
“小地块,大理想”的极致造景:摊开地图,项目为纯住宅用地,占地约36.6亩,整体容积率2.2。
就是在这样一宗堪称“精致”的地块上,国贸臻原在主入口设置了宽约36.7m、高约6.9m的酒店式迎宾主大门。
◎国贸臻原主入口效果图
在项目内部,还邀请曾获2021 缪斯国际设计大奖、2021 年亚太地区风景园林专业奖的凯盛上景操刀,以合院式院落的造园手法,打造了约1.92万㎡的私享成长型中庭园林空间。
这样的小区入户规格及园林规模,在今年成都首置首改的细分赛道中,几乎算是首屈一指。
3000㎡酒店风实景示范区率先落地:为凸显国贸臻原“景观造园”的理念,项目打造了3000㎡酒店风实景示范区,以“一轴、双园、四院”的景观空间,再现“一进-登门,二进-望院,三进-观园,四进-入户”的传统礼制。
◎国贸臻原实景示范区效果图
其中“一轴”中的230m四季花园归家主轴步道,在琉璃砖幕墙、景观跌水、镜面水景、主题景墙与四季景色的呼应中,还原了日本“琉璃光院”的光影婆娑之感。
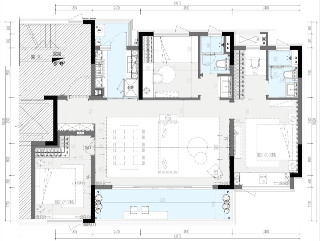
初级改善,却能做到整盘T2排布:针对这般不可多得的自然条件,项目采用半围合布局,规划11栋洋房及小高层,整盘T2纯板式布局,近半数楼栋采用独栋独单元设计。
其中,5栋南北朝向的10F低密洋房,全部定位为115㎡;围合在项目西、北侧的6栋小高层全部定位为135㎡。
◎国贸臻原总平效果图
这也是项目不可多得的优势之一,毕竟,在诸多“货值优先”的高端项目,都还迈不过T3这道坎的时候,这个主打初级改善的项目,已经以整盘T2布局的底气,走在了市场前端。
135㎡户型可瞰双公园、LDKGS空间容纳其中:独立电梯入户、全南向主卧系统,兼具居住仪式感与宜居度;临近客厅房间打通,并与7.5*1.5m的奢阔阳台连通,一个开间7.5m、进深最宽处达7.2m、面积约56㎡的LDKSG社交空间由此成型。
◎国贸臻原135㎡户型图(改造示意)
值得一提的是,135㎡户型大部分围合于项目西侧,与洋房形成景观错位排布,双面直面巨幅景观,东观大尺度楼间中庭、西赏市政公园的格局形成。
用135㎡的空间做出市面上180㎡以上豪宅才有的尺度感与舒适感,可见,国贸在成都的产品力试炼,进化神速。
115㎡户型开间达7m:且不论135㎡户型改造后可拥有“高改”才会配备的LDKSG社交空间这一产品力亮点,单把115㎡这个户型拎出来,就已经足够惊艳。
◎国贸臻原115㎡户型图
业内皆知,120㎡以下户型想要做出“豪宅感”非常难,而国贸臻原却在115㎡这般有限的空间内,设置了开间7m的超大横厅以及主卧独立采光衣帽间,不得不说是一次创新与突破。
这也让业内不得不重新审视国贸的“造物水平”,这个新进房企的实力的确不容小觑。
据悉,国贸臻原展示区将于12月11日开放。
首入成都便能以销量、产品力成为市场话题焦点,国贸实力已毋庸置疑。
而在板块纯住宅地块稀缺、商品房市场几近“空窗”、功能与品质兼具的产品力多重优势加持下,市场有理由相信,国贸臻原一旦入市,必将会成为继国贸鹭原之后,青羊新城中心的又一爆款。
文| 婧哥哥
图片来源| 国贸臻原 环球网 四川知道自制 网络
*本文为广告资讯,文中观点及数据仅供参考,不构成购买交易建议。
·END·
本文来自微信公众号“四川知道”(ID:SCZD-THKJ)。大作社经授权转载,该文观点仅代表作者本人,大作社平台仅提供信息存储空间服务。










