Lost Lindenberg
度假酒店设计
「Lost Lindenberg」是德国法兰克福酒店集团 LINDENBERG 最新完成的度假项目,也是该集团的第五家酒店,位于印度尼西亚巴厘岛一个宁静的乡村,这里人迹罕至,被丛林和寺庙所环绕,面朝大海,是一处绝美的丛林秘境,更是一处令人神往的世外桃源。
该项目占地面积为 8,440㎡,建筑由 Alexis Dornier & Studio Jencquel 设计 ,室内和景观由 Studio Jencquel 打造。
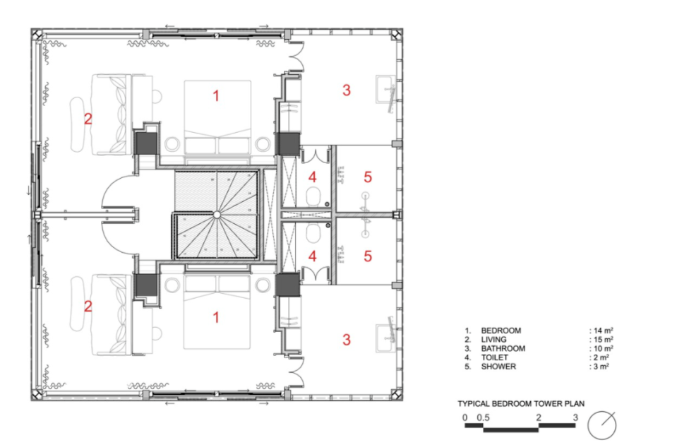
整个民宿由 5 个房子相连,交错的塔楼建在高大的椰子树旁边,可以瞥见前面的大海。
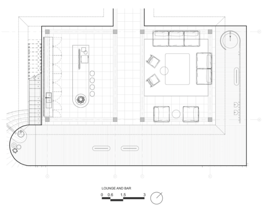
一楼接待处平面图▽
酒吧和餐厅剖面图▽
一层平面图▽
二层平面图▽
三层平面图▽
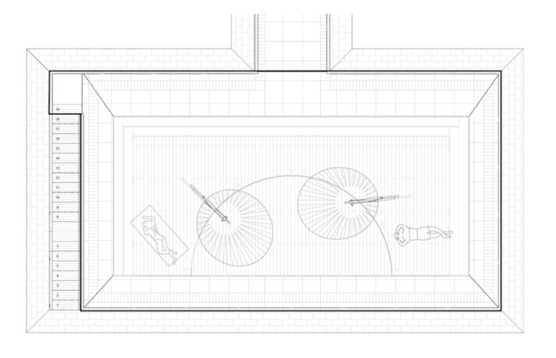
四层平面图▽
# VILLA N #
# VILLA WYSE #
# THE TRIAD #
# VILLA D #
点个赞
点在看
本文来自微信公众号“一起设计”(ID:together-design)。大作社经授权转载,该文观点仅代表作者本人,大作社平台仅提供信息存储空间服务。










