ASICS全新旗舰店,在历史建筑里打造一站式零售空间
本项目位于上海最发达的淮海中路一带,1921年建成的西班牙巴洛克式历史建筑群中,运动品牌ASICS决定在这里开旗舰店,我们通过竞标获得了提名。上海里的大都市,民国时代的西式建筑,来自日本的运动品牌。在多种价值观的混合中寻求普遍性,我们对项目的理解是创造一个持久生命力的空间。
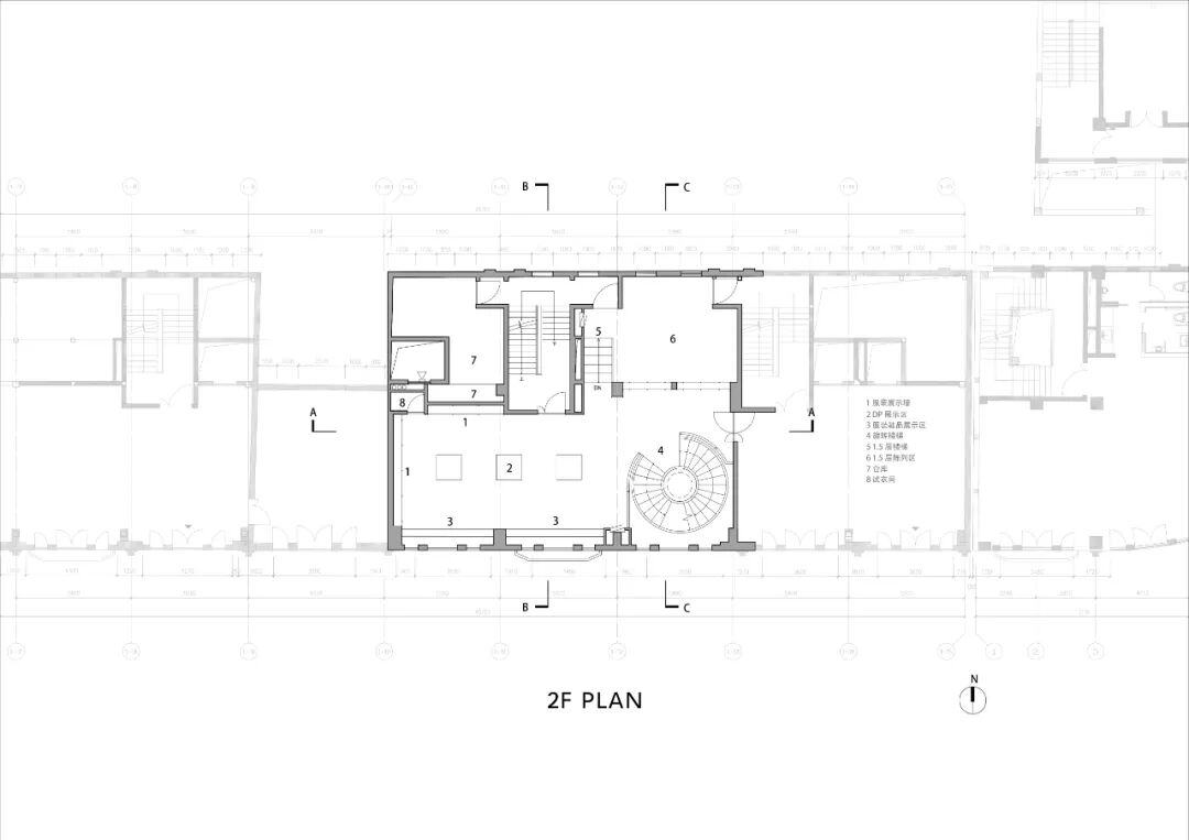
现存建筑为三层,内部二次分隔,结构复杂,前后高低不一。我们专注于如何吸引大众至商铺和楼上的休闲空间,我们拆除了所有分隔前后的墙壁,做成大的敞开空间以便可以四处活动。
一楼以鞋子展示为主。意识到以科技为后盾的产品适合的工业空间,我们采用了水磨石、木丝水泥板、镜面不锈钢、木纹印花铝百叶等工业产品,并在墙上安装了LED显示屏。鞋柜部分由木丝水泥板制成的半圆形墙壁覆盖,产品展示在发光的亚克力板上。发光的亚克力面板在镜面不锈钢制成的天花板上重复出现,营造出未来感的销售区。后面有一个试衣间,压纹不锈钢被蓝白色的灯光照亮,让人有一种置身于大海中的神秘体验。
二楼是与生活方式相匹配的服装楼层,所以我们的目标是一个相对平静的空间。天花采用木丝水泥板和木纹铝材制成的格子天花,在天花附近安装线条灯,营造运动品牌活力又时尚的形象。半层区域是一个活动空间,每个季节都有不同的主题,并通过带有玻璃架子的透明固定装置与销售区域隔开。
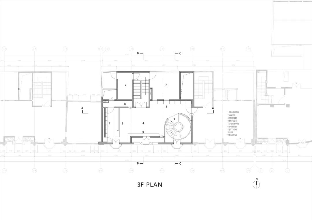
三楼是利用现有建筑结构的VIP活动体验空间。与一楼和二楼不同,该空间结合了胡桃木和黄铜,营造出平静的氛围。黄铜色的金属格栅被拉伸在天花板上、螺旋楼梯周围、显示器的背板上等,灯光给人一种柔和、奢华的感觉。这是一种怀旧的空间,与西班牙巴洛克风格的外观相协调。
项目信息
PROJECT INFO
地址 | 上海市黄浦区淮海中路358弄
面积 | 621㎡
功能 | 运动品牌店
室内设计 | 堤由匡建筑设计工作室+北京鸣意品牌设计有限公司
设计团队 | 堤由匡、明达、洪秀秀、肖阳
灯光设计 | HDA (石冈真己子)
建筑施工 | 上海住安建设发展股份有限公司
装饰施工 | 上海晨一装饰工程有限公司
道具 | 上海冬承道具制作有限公司
机电设计 | 北京炎黄设计院
结构设计 | 北京炎黄设计院
摄影 | 朱润资
竣工 | 2022年9月21日
隐匿在北京二环里的美学茶店藏着5㎡最小美术馆
日本涩谷一家集办公、画廊和活动的复合咖啡店
用废弃物做装置,长坂常操刀KOLON品牌概念店
青岛风格日料店:用老榆木和石板造出侘寂风
本文来自微信公众号“Hi设计”(ID:Hisheji)。大作社经授权转载,该文观点仅代表作者本人,大作社平台仅提供信息存储空间服务。










