择录标准
包含着日常的琐碎,它可以是动人的场所、惊奇的空间、温暖的材料。拒绝宏大图像,符号堆砌、虚情假意。
案例分析
NO.02
名称:盘旋而上的SOHO
设计:Hideki Takayanagi
面积 : 109 m²
项目年份 : 2012
位置:日本,东京
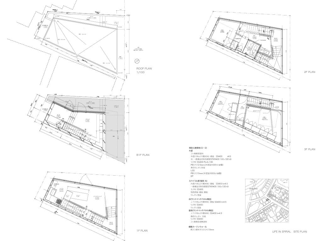
▍业主是一名设计师,他将这个房子用作SOHO,办公和住宅,建筑一共四层,地下一层是办公,楼上三层是住宅。建筑在周围环境中是一个明显的存在,外表皮是玻璃的,业主可以通过窗帘和调整百叶窗的方向获得隐私或者外面的全视野。
▍门廊是传统日式建筑不可或缺的一部分,也是最让人怀旧的部分。因东京的建设土地昂贵,建筑师不得不放弃门廊这一概念,在极其狭窄的场地上创建一个盘旋而上的螺旋结构,所用到的钢板只有4.5毫米厚。因此这个房子的重量很轻,但是足够抵抗地震。该建筑结构由造船工人使用自己的纯熟技艺搭建而成。
▍立面的划分在横向上暗示楼层数,竖向上的划分使每一列的间距都有所不同变化富有韵律。底层部分架空和玻璃的透明性缓解对街道的压迫。
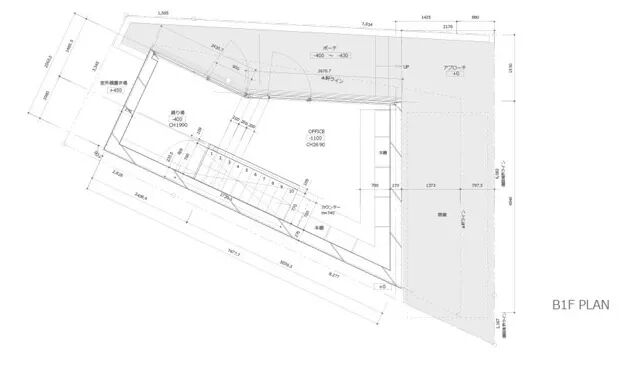
▍地下一层是办公空间,在地面基础上下沉建设,中部空间充分利用做为工作室,室内室外各设置几层台阶形成工作室的充足纵向空间。北面墙体向内一折让出入口空间,门口是紧贴墙面的排水做法。
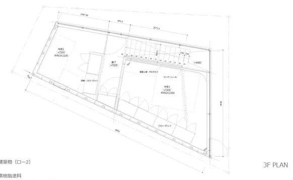
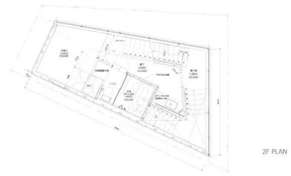
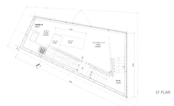
▍一到三层是住宅空间,一层的空间为厨房餐厅以及客厅空间。二层为浴室、盥洗室以及卧室空间。三层空间用于居住和阅读。
一至三层平面图
一层厨房以及客厅空间
二层空间
三层空间
▍屋顶找坡排水
屋顶边缘下凹汇水,通过管道汇至底层。
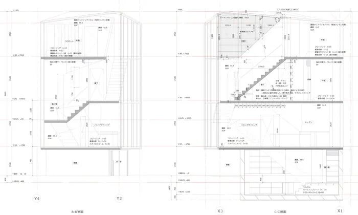
▍楼梯空间
楼梯没有完全贴墙布置,缝隙的阴影起到了引导作用,也缓和了狭小空间的压抑。
▍清晰的剖面空间
楼梯延建筑边缘环绕螺旋爬升,对空间也起到一定分隔作用。超薄的墙体结构增加了使用空间,玻璃墙保证充足的采光。
▍不需要厚柱,所有部件配置柔软性强且有很强的单体构造体。
本文来自微信公众号“建筑手记”(ID:DongXiXiaoYuanStudio)。大作社经授权转载,该文观点仅代表作者本人,大作社平台仅提供信息存储空间服务。










