案例分析 NO.04
Architectural Case Analysis
层层打开的画卷
位置:山西兴县
设计:WAU建筑事务所
材料:混凝土
项目类型:图书馆 教学楼 教育建筑
建筑面积:8690㎡
项目设计:2013
完成年份:2021
项目介绍
项目位于离山西兴县120师学校大约一公里的友兰中学内,场地南北高差约6米,立于教学区与生活区之间的校园中轴线上,包含图书馆及专业课室。
建筑师希望建筑形成一个村落意象,意在营造多层次的游走空间体验及一个可穿越的多孔性场所,与原有刻板的教学楼形成对比。
案例分析
▲概念图
建筑师将折叠的墙体依地势顺延,图书馆、美术、音乐地理等专业课室及展厅分别置于墙体之间,形成一个建筑与庭院相间的布局形式。
▲ 从操场看向建筑
▲ 操场与建筑之间的休闲平台
▲ 主入口
▲ 入口平台
▲ 北侧入口广场
建筑室内外相互交融,为师生提供多样的交流空间,东侧结合体育场地成为看台或者午后阴影下的体育活动场所;西侧面对宿舍区分别形成图书馆及艺术楼的入口广场。
▲ 混凝土墙体后的建筑立面
连续的折墙使用粗糙混凝土与围合其中的白色建筑体块进行区分,创造内与外的围合特征,建筑立面效果丰富且有层次。窗外栽种树木形成对景,使建筑内部具有良好的景观视线。
▲ 南侧广场
▲ 西侧广场
▲ 连续的室外楼梯
直跑楼梯有较强的引导性,连续的直跑楼梯可以为使用者提供漫游空间
▲ 西广场与建筑之间的视觉联系
连续曲折的墙体把室内视线导向不同景色,人们在场地内很难一览建筑全貌,犹如村落的空间体验,步移景换,画卷被层层打开。
▲ 室外架空层
架空层的处理能够将地面空间归还给使用者,同时形成灰空间,衔接建筑内部与外部
▲ 门厅
天窗顺应混凝土折墙开设,为室内提供静谧的阅览空间及光线稳定的作品展示空间,同时可减少墙体开窗面积,较好地适应当地严寒的气候特点。高低错落、粗粝木纹质感的混凝土折墙,与周边雄伟的山脉取得协调。
▲ 读者沙龙一侧的活动空间
内部空间的塑造使用木材、混凝土以及白色抹灰墙面,冰冷沉静中不乏温暖柔和,用材简单而不单调
▲ 明亮的空间
▲ 带有露台的阅览室
▲ 窗边的阅览空间
▲ 天窗下的阅览空间
建筑顶面开设天窗,磨砂玻璃与框料使自然采光更加柔和,且形成良好的光影效果
▲ 音乐教室
▲ 天文实验室
技术图纸
▲ 总平面图
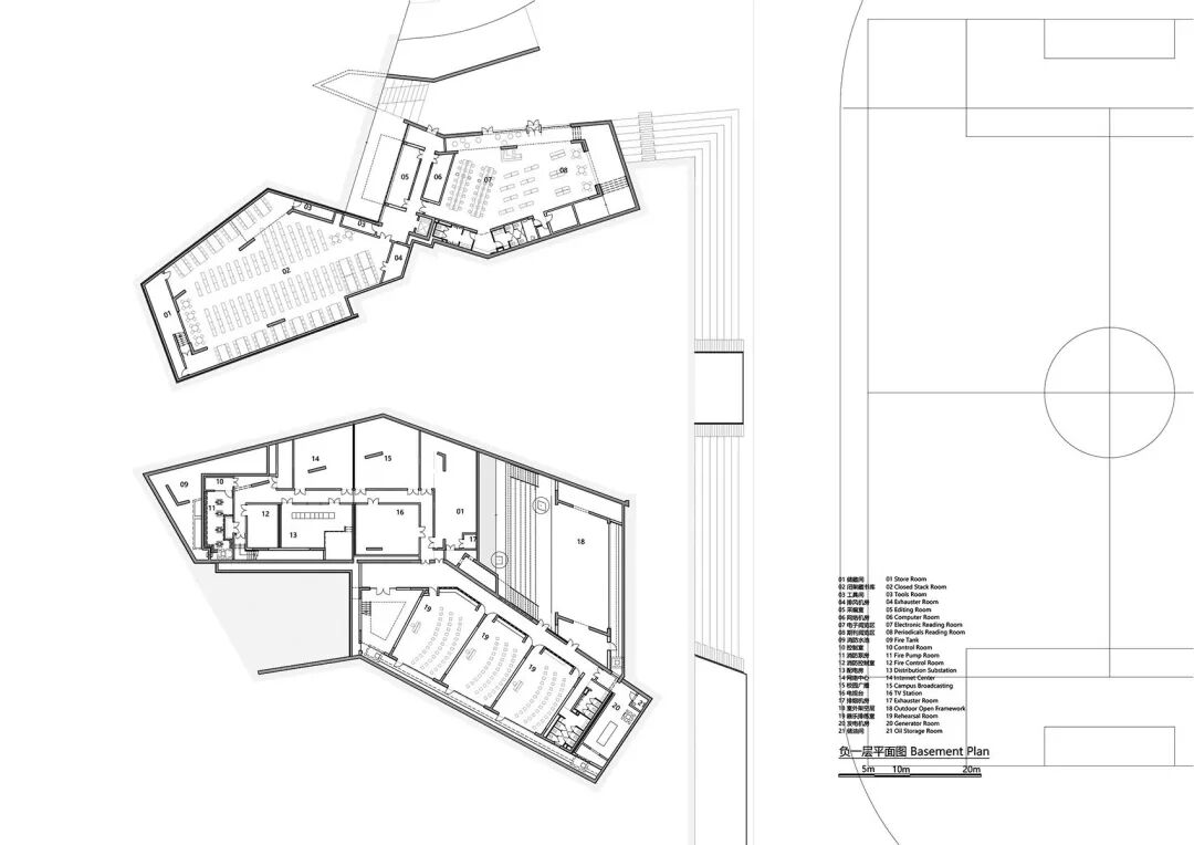
▲ 负一层平面图
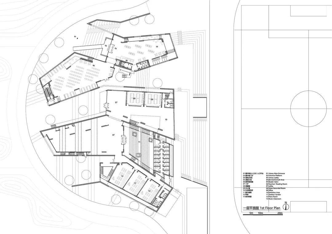
▲ 一层平面图
▲ 二层平面图
▲ 三层平面图
▲ 立面图和剖面图
本文来自微信公众号“建筑手记”(ID:DongXiXiaoYuanStudio)。大作社经授权转载,该文观点仅代表作者本人,大作社平台仅提供信息存储空间服务。










