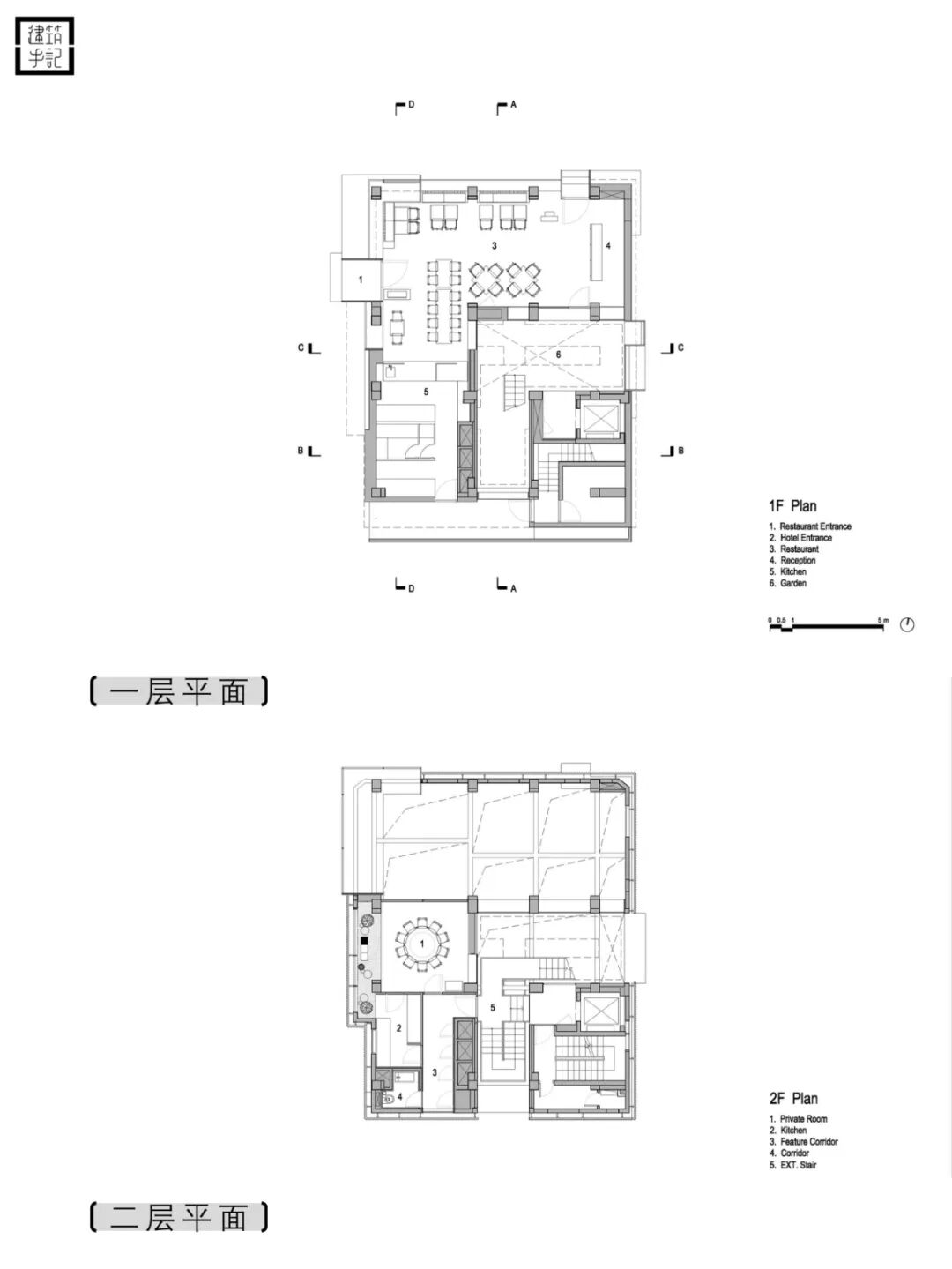
作品集2023-11-09 城中村里的万科文旅酒店 编辑:饿 饿 排版:筱十九 本文来自微信公众号“建筑手记”(ID:DongXiXiaoYuanStudio)。大作社经授权转载,该文观点仅代表作者本人,大作社平台仅提供信息存储空间服务。 TAGS: 万科建筑电影空间 相关文章Kleoniki Andr…这是大王Day.281获奖作品《2020最佳图书…精选头像|搞怪来袭!安东尼奥·布埃诺 作品配色清新梦幻的场景插画,充…美国Jennifer Mc…【小鹏设计】设计小改/动力…【首发】地点空间丨打破空间…谢商家不坑之恩!只骗有钱人…