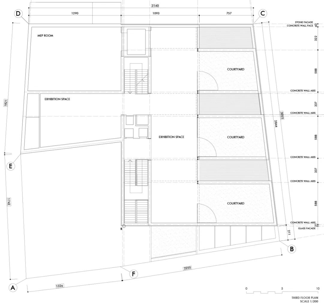
▲庭院平面图
▲白色庭院
▲镜面庭院
▲屋顶视角
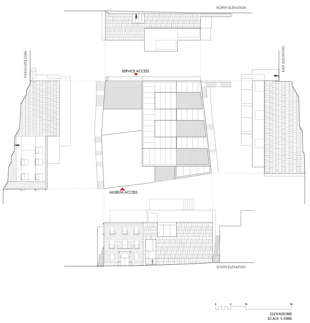
方案从一开始就认为必须考虑到博物馆所在的阿利坎特市中心的位置,其中,起到决定性作用的因素包括:不同的街道海拔(>10 米)、周边建筑的某种语言、它所在的环境、朝向,除此之外还有山上的城堡、海平面、邻近的小广场还有前方的圣玛丽亚教堂,它们都共同营造出了某种氛围。
在这层意义上,不论是各种物质或感知层面的参考,还是阿利坎特市中心的环境,都暗示出了理解和发展这个项目的最佳思路,包括如何处理布局、空间以及感知等。
▲室内空间
▲同时看向三个庭院
编辑:匠山
本文来自微信公众号“匠山行记”(ID:gh_d836161f0f54)。大作社经授权转载,该文观点仅代表作者本人,大作社平台仅提供信息存储空间服务。










